MISAWA DESIGNERS' CODE MARGE(ミサワ デザイナーズ コード マージ)
時間とこころの余白をデザインした新モデルを発売
○ ミサワホームが共感するバウハウスの理念を次世代へ広く周知すべく、プロモーション活動を展開
○ 「ミサワ バウハウス コレクション」に所有するバウハウス関連作品などを美術展へ出展し、教育・普及活動にも取り組む
○ ミサワホームのデザインを具現化した象徴的な住まい「MARGE」を「MISAWA DESIGNERS' CODE」にラインアップ

ミサワホーム株式会社(代表取締役社長執行役員 作尾徹也)は、2025年に迎えたデッサウ・バウハウス100周年を機に、そのデザイン思想を広めるべく、「MISAWA DESIGNERS' CODE」に木質系工業化住宅「MARGE」をラインアップに加え、全国(沖縄県を除く)で2026年3月16日に発売しました。
ミサワホームは、ドイツの造形学校バウハウスの「人が主役」となるデザイン思想に深く共感し、その理念をミサワホームのデザイン思想「シンプル・イズ・ベスト」として住まいづくりに取り入れています。単なる造形の模倣ではなく、工業化社会における「真に豊かな暮らしとは何か」という問いに対し、合理的かつ普遍的な美しさを追求するバウハウスの教育思想そのものを無形の資産として、日本の住宅設計へと具現化させてきました。
また、ミサワホームは1989年にバウハウス関連作品などの収集をはじめ、1996年に日本で唯一のバウハウス専門美術館「ミサワ バウハウス コレクション」を開設しました。現在は作品約1,500点、資料約1,200点、芸術関連の蔵書約13,000冊を所蔵し、日本最多のバウハウス関連物を所有。同館ではこれまで独自の企画展を開催し、バウハウスの造形教育やデザイン理論を多角的に紹介してきたほか、2025年には国立新美術館や兵庫県立美術館で開催された「リビング・モダニティ展」へ所蔵する作品を出展するなど、教育・普及活動にも取り組んでいます。
2025年にバウハウスがデッサウに移転して100周年を迎えたことを機に、ミサワホームではこの色褪せることのない有形・無形の資産を次世代まで広く伝えるべく、プロモーション活動を展開しています。特設サイトの開設やテレビCMを通じた情報発信を強化するなか、その思想を具現化した象徴的な住まいとして誕生したのが、「MISAWA DESIGNERS' CODE MARGE」です。
「MARGE」は、ドイツ語で「余白・ゆとり」を意味します。共働きで多忙な毎日をおくる30~40代のファミリーをターゲットに、年々過酷さを増す気候変動や社会的ストレスから離れ、時間とこころに「余白」を生み出す住まいを提案します。住む人に寄り添い、長く愛される家であってほしいという願いを込めた、シンプル・イズ・ベストのデザインを実現しました。
ミサワホームは「MISAWA DESIGNERS' CODE MARGE」を通じて、住む人がそれぞれ自分らしい暮らしを描ける、心身を豊かにする新しいスタンダードを提案していきます。
バウハウス×ミサワホーム 特設サイト:https://www.misawa.co.jp/bauhaus/
モダンデザインの源流・バウハウスについて、「ミサワ バウハウス コレクション」から代表的な作品、テレビCM「バウハウス×ミサワホーム」などをご紹介しています。
■MISAWA DESIGNERS' CODEについて
シンプル・イズ・ベストの思想のもと、ミサワホームがこれまでに培ってきたノウハウや設計思想をベースとして、デザインテーマごとにあらかじめ外観デザインの基本となる「作法のコード」、質感や色合いなどを決める「素材のコード」、ディテールにこだわる「造りのコード」の3要素から構成する「MISAWA DESIGNERS' CODE」としてパッケージ化。住まいの検討に費やす時間や労力は極力抑えながらも、思い描いたとおりのデザインを再現できる手法を採用しています。

■「MISAWA DESIGNERS' CODE MARGE」プロダクトコンセプト
【空間デザイン】 家族の心身の健康を守り、おおらかに暮らせる
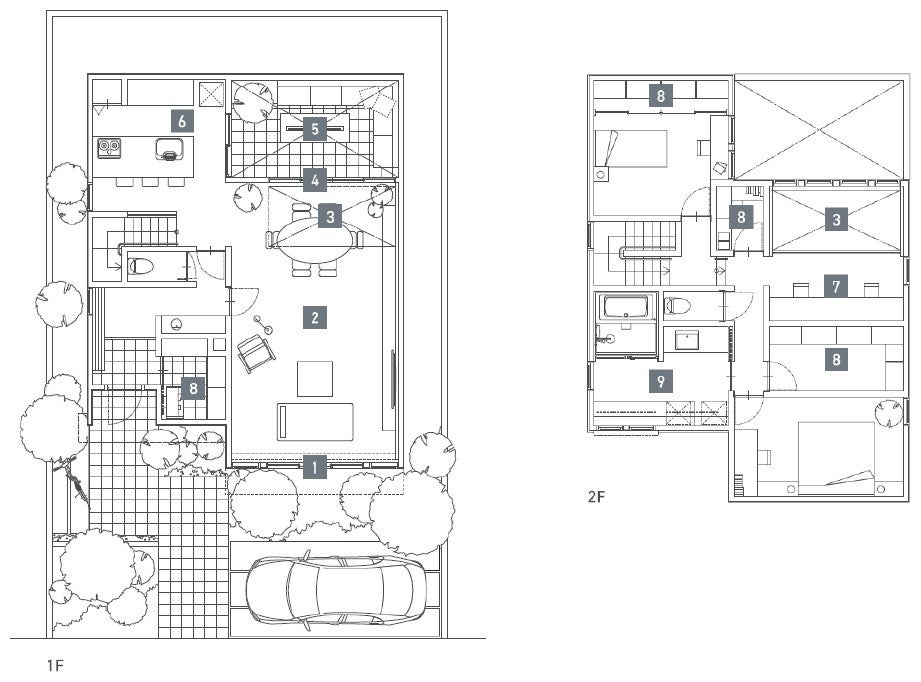
本プランの最大の特徴は、北側に大きく開いた窓と、外構パネルで囲まれた「ノースガーデン(北庭)」です。北向きの大開口は直射日光を避け、暑さ・眩しさを防ぐことができるため、カーテンを開けたまま一日を快適に過ごすことができます。南向きの開口でカーテンを併用する場合と同等の健康的な明るさ※1を、北向きの大開口でも十分に得られるというシミュレーション結果も出ています。※2また、外構パネルが周囲からの視線を遮るため、カーテンを閉めずに開放的に過ごせるプライベートな外部空間を実現。夏でも日陰で涼しく、子どもの遊び場としても最適です。相対する南側の窓はあえて低く抑え、2階のボリュームを張り出して強い日射を遮ります。さらに、南の下方から風を取り込んで北の高い窓へと風を抜く、微気候設計を採用しました。また、室内から室外への視線をコントロールして電線や街灯などのノイズをカットすることで、住まいに視覚的な静寂をもたらします。

※1:等価メラノピック照度(mEDI、体内時計を整える日中の曝露光量)250lx以上。
※2:千葉工業大学望月悦子研究室とミサワホーム総合研究所の共同研究(2025年)。
【生活デザイン】 家族の気配を感じ、自分らしく描く「余白」の空間
1階は大きなワンルームのパブリックスペース「パラレルレスLDK」。大開口に面して吹き抜けを設け、ノースガーデンともフラットにつながり、垂直・水平方向に広がりを感じさせる空間です。リビング・ダイニングには方向性を持たせず家具を自由にレイアウトすることで、住まい手が自分好みの居場所をつくることができます。
吹き抜け越しにLDKとつながる位置には「ファミリーライブラリー」を設置しました。ストレスなく在宅ワークに集中しながらも家族に声をかけられるなど、ほどよい距離感でつながることが可能です。
キッチンやランドリールームは複数人でもスムーズに作業しやすいよう、広さを確保しました。シューズクロゼット、納戸、ファミリークロゼットなど、大型の収納スペースを各所に設けたことで片付けのストレスを軽減。住む人が主役となるよう、生活動線の効率化と空間の広がりを追求しました。

【意匠デザイン】 究極のシンプルを追求した「デザインコード」
リビング・ダイニングは開口を南北のみに絞り、東西面は壁を広く残すように設計しました。建具や枠材は新規色「Haku(=白)」を採用することで境界のない白い壁面を演出しています。お気に入りの家具や照明、グリーンをコーディネイトして暮らしを楽しめる、ホワイトインテリアが特徴です。
外観もまた、清潔な白い箱をイメージしています。前面のボリュームを地面から浮かすように作ったオーバーハングで、建物に軽さを演出。屋根の縁の厚みを数ミリまで薄くすることで建物の輪郭を無くし、壁面をよりシンプルに美しく見せることができます。

■商品概要
商品名 :MISAWA DESIGNERS' CODE MARGE(ミサワ デザイナーズ コード マージ)
構造・工法 :木質パネル接着工法
運用 :自由設計
販売エリア :全国(沖縄県を除く)
発売日 :2026年3月16日(月)
商品サイト :https://www.misawa.co.jp/kodate/syouhin/marge/
【参考資料】コンセプトモデル「39-2SW-1」39坪 南入りタイプ


このプレスリリースには、メディア関係者向けの情報があります
メディアユーザー登録を行うと、企業担当者の連絡先や、イベント・記者会見の情報など様々な特記情報を閲覧できます。※内容はプレスリリースにより異なります。
すべての画像
