いちご神宮前ビルにおいてセットアップオフィスを実施!(入退去時の内装工事期間短縮、コスト・CO2削減)
当社は、人々の豊かな暮らしを支える「サステナブルインフラ企業」です。
いちごでは、オフィスビルの資産価値を高める取り組みの一つとして、貸室にあらかじめ一定の内
装や設備を揃えて貸し出す「セットアップオフィス」を展開しています。
「セットアップオフィス」は、入居時の内装設計期間・工事期間の短縮とテナント様の造作工事費用負担を削減し、退去時の原状回復工事による廃棄物を削減することができる、サステナブルで新しいオフィスの形であり、当社では、テナント様のニーズを細かく分析し、デザイン性に留まらず、将来を見据えた実用性に配慮した最適なレイアウトプランを実現することで、高い入居率を達成しています。
このたび、いちごグループが運用する、J-REIT「いちごオフィスリート投資法人(8975)」の運用物件である「いちご神宮前ビル」5階において、セットアップオフィスを導入いたしました。

■ セットアップオフィスの概要
いちご神宮前ビルは、明治神宮前駅から徒歩5分、原宿・表参道と渋谷を結ぶ明治通り沿いに位置する地下1階、地上6階建ての中規模オフィスビルです。本物件は、2022年に建築環境総合性能評価システム(CASBEE)でSランクを取得しています。前テナント様が退去されたことにより2025年7月よりセットアップオフィスの内装工事を進め、同年9月に完成しました。
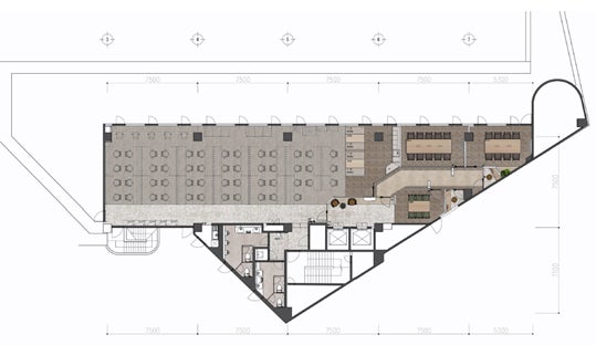
本物件は、セットアップオフィスとしては比較的大きい約95坪の広さがあり、会議室を3室、オンラインミーティング等に利用できる個室を2室、その他にもカジュアルな打ち合わせで使用しやすいファミレス席や、ドライパントリーなどを備えました。また、照明には調光機能を採用しており、時間帯やシーンに応じてボタンひとつで明るさを調整できます。
従業員用の執務デスクはあえて用意せず、ご入居者様にご用意いただくようにすることで、従業員の増加などに柔軟にご対応いただけるハーフセットアップオフィスです。




なお、1階のエントランスは、2021年にリニューアル工事を実施いたしました。シンプルでありながら高級感を感じさせるデザインにより、清潔感と洗練さを兼ね備えた空間となっています。

エントランスやレセプションでは、当社オリジナルブレンドのアロマを噴霧。「誠実・成長」をキーワードに制作した、いちごオリジナルブレンドのアロマです。

10月22日に開催した内覧会では、お土産としていちごオリジナルブレンドのアロマをプレゼントしました。さらに、ご来場いただいた皆さまに無料で参加いただける「アロマブレンド体験会」を実施し、ご自身の気分や体調に合わせたオリジナルアロマを制作していただきました。


■ フロアレイアウトイメージ

■ エリアについて
いちご神宮前ビルは、原宿・表参道から渋谷へとつながる明治通り沿いに面しており、人や情報が行き交うエリアに位置する、高い視認性と発信力を備えたオフィスビルです。原宿・表参道の洗練されたカルチャー、代々木公園や明治神宮の緑、渋谷へのスムーズなアクセスなど、ブランド力を高めつつ、快適に働ける希少なセットアップオフィスです。
■ 物件概要
物件名:いちご神宮前ビル
所在地:東京都渋谷区神宮前六丁目25番16号
交通:東京メトロ明治神宮前駅 徒歩5分、JR渋谷駅 徒歩8分、JR原宿駅 徒歩9分
延床⾯積:5,218.72㎡
⽤途:オフィス、店舗
構造・階層:RC 地下1階/地上6階
竣工:1985年6月


本物件は、100%再生可能エネルギーを使用しています。
※ 本リリースに関するお問合せ先 いちご広報担当 03-4485-5515
すべての画像
- 種類
- 商品サービス
- ビジネスカテゴリ
- 商業施設・オフィスビル建築・空間デザイン
- ダウンロード
