AQ Groupトップデザイナーが厳選した豊富なプランバリエーション!100プランの「AQコレクション」先着150棟を限定価格でモニター募集
消費者ニーズに応える「AQダイナミック構法」発売記念キャンペーン実施中!

AQ Group(本社:埼玉県さいたま市西区、代表取締役社長:宮沢俊哉)は11月30日(土)まで、シルバーウィークフェアとして「AQダイナミック構法※特許申請中」発売記念キャンペーンを開催中。「AQダイナミック構法」とは、AQ Groupが創業から46年の積み重ねで開発した木造住宅の最新技術。無駄な壁や柱などをなくし、広い空間を実現。かつ、耐震性や耐風性を確保した強固な構造を実現させています。今回は、「AQダイナミック構法」で建てる先着150棟限定のモニター募集や、1,000万円の建築資金券などが当たる大抽選会を展開。不景気、物価高、建築資材高騰といった厳しい社会情勢の中で、少しでも消費者の負担を軽減し、安心できる理想的な住まいを届けるキャンペーンとなっております。



不景気に加え4号特例も縮小。マイホーム購入のハードルが上がる社会情勢の中、
企業努力によって誕生した「AQダイナミック構法」
近年の不景気、物価高、金利上昇などの影響で、戸建市場は縮小傾向にあります。1996年の市場全体における販売戸数64.3万戸に対し、2023年は22.4万戸で3分の1程度となっています※住宅産業研究所「住宅着工の変遷」より。マイホーム購入離れが進む大きな要因として、住宅販売価格や土地の高騰が挙げられるでしょう。また、2025年4月には建築基準法が改正。建築基準法で定められた建築確認における審査の一部を省略できる「4号特例」が縮小となり、構造計算のコストが割高になると予測されます。
ハウスメーカーにとって厳しい社会情勢の中、AQ Groupは1978年の創業以来「自由な木造住宅を適正価格で」をモットーに企業努力を続けてきました。約10年前から、ビルやマンションなどの中大規模木造建築の研究開発をスタート。そのターニングポイントとして2024年3月には、日本初※1となる純木造8階建てビルが完成しています。
たゆまぬ技術研磨と研究開発の集大成として、木造ビル建築技術を注文住宅に活かした「AQダイナミック構法」が誕生。さらに、全棟で構造計算を実施しており、4号特例縮小にも対応済み。耐震性に優れたオリジナル耐力壁を保有するAQ Groupは、より一層のコスト削減も実現させました。マイホームに対して消費者の購買力が低下する昨今ですが、AQ Groupは4年連続で過去最高売上高を更新しています。特に2023年度は資料請求と総来場合わせて80,000件超を獲得し、年間売上高は689億円となりました(住宅建築事業における前期比約35%増)。今回のキャンペーンは「AQダイナミック構法」を多くの人に体感していただき、今後も木造建築企業として飛躍していけるよう企画しています。
これまで多彩な自由設計プランを手掛けてきたAQ Groupトップデザイナーが厳選。
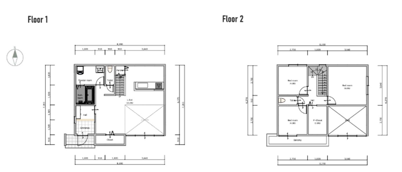
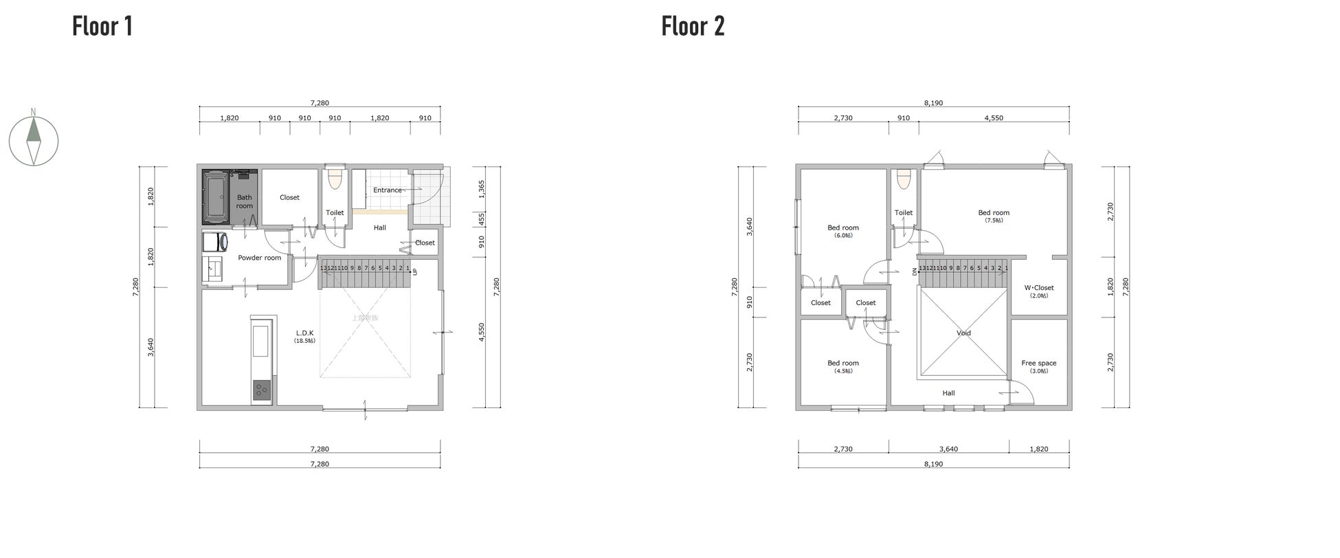
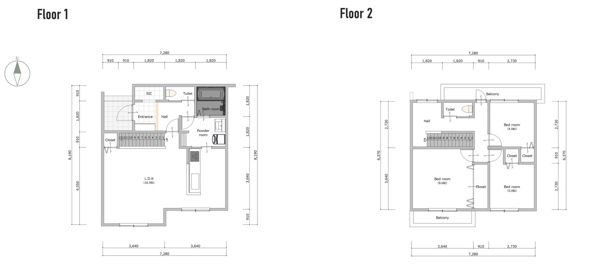
2階建て3LDK(32坪)1,780万円、先着150棟限定モニターキャンペーン開催
これまで数多くの木造注文住宅を手掛け、耐震耐風実験などを繰り返し、木造ビル建築にまで着手してきたAQ Groupの「AQダイナミック構法」は、従来の木造住宅より壁や柱が少なく、地震にも強い構造を実現。より自由な空間、間取りを可能にしたAQ Group独自の新構法です。今回のフェアでは「AQダイナミック構法」で建てる先着150棟限定のモニターキャンペーンを開催。多彩な自由設計を手掛けたAQ Groupトップデザイナーが厳選した全100プランの「AQコレクション(リマスター新築一戸建て)」から選ぶことができます。
「AQコレクション」はAQ Groupの総合力で品質、価格、保証をワンパッケージにした強固な構造の新築一戸建て。耐震等級3、高断熱に加え地震建替保証などを付帯。また、全棟で構造チェックも実施します。



総額3,000万円建築資金券プレゼント大抽選会
申し込みは10月2日(水)まで、抽選日は10月5日(土)
「AQダイナミック構法」発売記念キャンペーンでは、期間中にご応募いただいた方の中から抽選で新築注文住宅購入時に使える「建築資金券1,000万円分(税込)」が1名様に、「建築資金券200万円分(税込み)」が10名様に当たる「建築資金券1,000万円プレゼント大抽選会」も同時開催。応募期間は10月2日(水)まで。当選発表は10月5日(土)。対象は「超空間の家」、「超空間の家スマート」、「超空間の平屋」、「超断熱の家プレミアム」の4商品です。




■「AQダイナミック構法」発売記念キャンペーン特設サイト
建築資金券1,000万円プレゼント大抽選会◆キャンペーン概要◆期間中に応募いただいた方の中から抽選で新築注文住宅購入時に使える“建築資金券1,000万円分(税込)”を1名様、“建築資金券200万円(税込)”を10名様、合計11名様に進呈します。※建築資金券の使用について建物本体価格の8割までに充当でき、上限が1,000万円(税込)となります。<応募期間>2024年9月1日(日)~2024年10月2日(水)・当選発表:2024年10月5日(土)<応募条件・注意事項>●当選者様本人が2024年10月31日(木)までにAQ Group(アキュラホーム・FC加盟店・関連会社)※以下「AQ Group」と建築請負契約の締結かつ2025年8月31日(日)までに着工可能な方●AQ Groupが建築可能な場所に居住用途の建物を建てることが可能な土地を所有するか、ご用意いただける方。※土地取得予定および借地も可●建物本体工事価格は、施工地域・プラン・仕様などにより異なります。仕様は予告なく変更される場合があります。また、寒冷地など一部地域によって仕様が異なるか対応できない場合がございます。防火地域、準防火地域、旗状敷地、高低差のある土地、傾斜地、立地条件、プラン等によっては工事費に差額が生じる場合がございます。土地費用や建物外構工事・建物外付帯工事・諸手続費用・実費費用・諸費用等など標準設計以外の工事費や提案費用、設備仕様等費用は含まれておりません。●建物建築中から完成、引き渡し後にもAQ Groupのアンケートの回答やホームページ、SNSや実例集カタログ等のメディア媒体への掲載や撮影許可にご協力いただきます。●応募は1家族・1世帯・1敷地に1口のみで、建築し居住する20歳以上の本人に限ります。また、WEBとAQ Groupのモデルハウスにて受付となります。●契約者以外の方への適用権利の譲渡、金銭及び物品への引き替えはできません。●建築資金券が額面に満たない場合でも差額の支払いはできません。●建築資金券は一時取得として税金がかかる場合がある為、管轄の税務署に確認をお願いいたします。●AQ Groupが実施する他のキャンペーン特典及び紹介や提携割引等との併用はできません。●該当敷地に建築可能か否かは、敷地調査の上、判断させていただきます。敷地条件や法的制約、その他の理由で建築が不可能な場合、適用できない場合があります。※詳しくは、AQ Groupの担当営業までお問い合わせください。【個人情報の取り扱いについて】AQ Groupは、応募されたお客様の個人情報はプライバシーポリシー(https://www.aqura.co.jp/privacy/)に掲げる利用目的の達成に必要な範囲で取得・利用をします。
※1
①純木造8階建の耐震工法(免振装置を使わない)②構造体を木のあらわしで使用している面積割合③工期最短:6000㎡超えの純木造で17ヵ月④価格最小:今までの木造ビル建設費の1/2の費用(坪145万円)2024年4月 自社調べ
<本件について報道関係の皆様からのお問い合わせ先>
株式会社AQ Group 広報課 青木 佐藤
TEL:048-620-4536
Email:aqura_pr@aqura.co.jp
AQ Group Website:https://www.aqura.co.jp/
このプレスリリースには、メディア関係者向けの情報があります
メディアユーザー登録を行うと、企業担当者の連絡先や、イベント・記者会見の情報など様々な特記情報を閲覧できます。※内容はプレスリリースにより異なります。
すべての画像

