TKP、東京駅直結に「TKPガーデンシティPREMIUM東京駅丸の内中央」を5月9日オープン!
株式会社ティーケーピー(本社:東京都新宿区、代表取締役社長:河野 貴輝、以下TKP)は、2023年5月9日(火)に「TKPガーデンシティPREMIUM東京駅丸の内中央」をオープンいたします。

当施設は金融・商社・情報産業等、国内外の一流企業が集まる日本のビジネスシーンの中心地、丸の内エリアに位置しています。車でのアクセスはもちろん、東京駅新幹線改札口からもすぐの場所にあり、羽田空港から約30分と陸路・空路でのアクセスも良いことから、国内外からお客様が集まるビジネスイベントや研修、セミナーなど、あらゆるビジネスシーンに対応できる施設となっております。ビル内や駅のコンコースにはコンビニエンスストアや飲食店も多く立ち並んでおり、周辺には複合商業施設や銀行、郵便局等の施設も充実しています。
昨今の新型コロナウイルス感染症の影響により、対面での会議やイベントが減少しておりましたが、感染症法上の分類が5類に引き下げられることが決まり、その需要の回復基調が強まっています。このような状況の中、今後の本格的なリアルスペースの需要回復を見据え、積極出店の一環として今回利便性の良い当施設の出店を決定いたしました。
TKPは今後、好立地で利便性の高いエリアへの出店を積極的に進めるとともに、コロナ禍で見直された対面需要の付加価値を高め、お客様にとって便利でより良いサービスを提供してまいります。
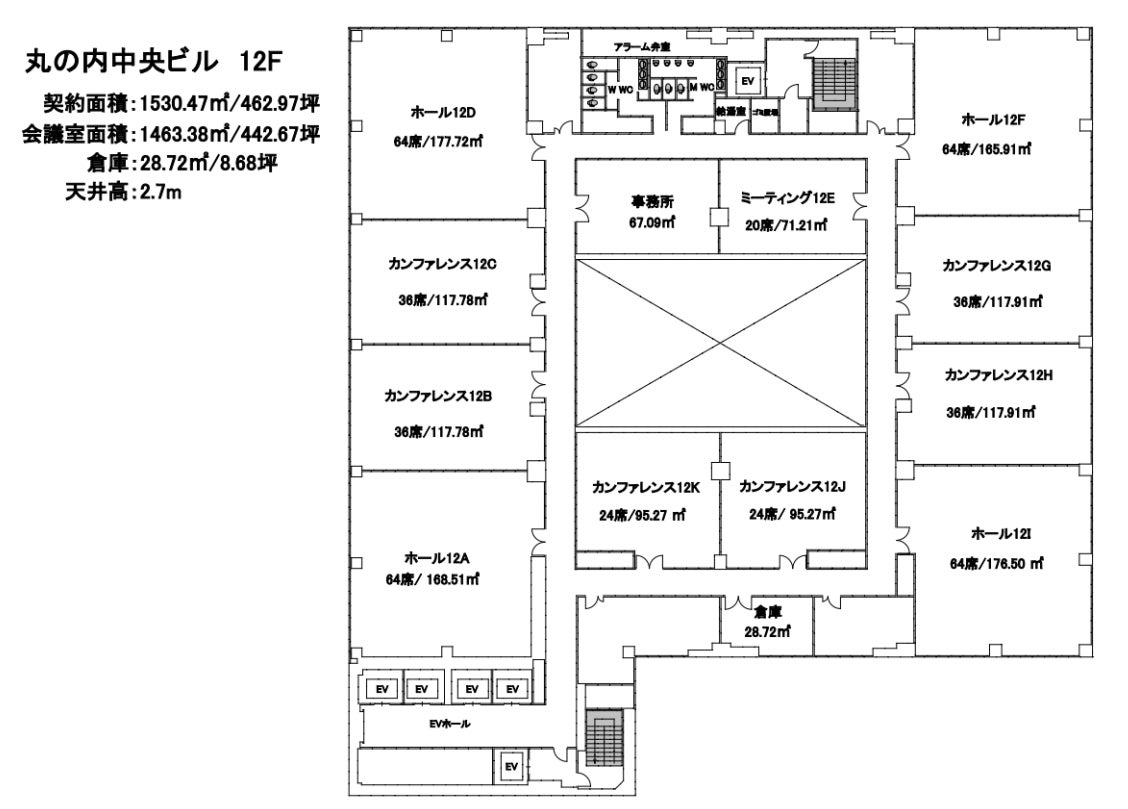
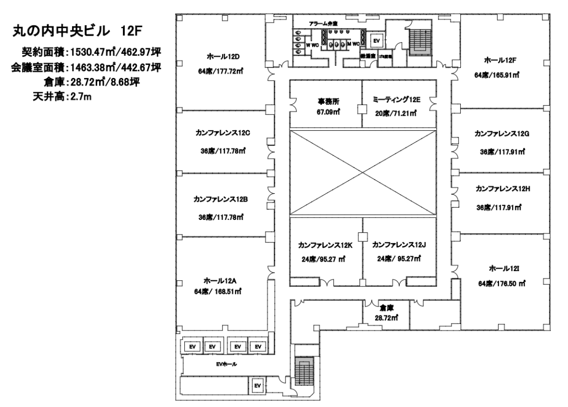
【フロア図】

施設名:TKPガーデンシティPREMIUM東京駅丸の内中央
ビル名:丸の内中央ビル
住所:東京都千代田区丸の内1丁目9-1
アクセス:JR 東京駅日本橋口直上、東京メトロ 日本橋駅徒歩7分、大手町駅徒歩8分
契約面積:1,559.28㎡(471.68坪)
サイトURL:https://www.kashikaigishitsu.net/facilitys/gcp-tokyo-marunouchi-chuo/
会議室概要:

【株式会社ティーケーピー会社概要】
代表者 :代表取締役社長 河野 貴輝
本社所在地 :東京都新宿区市谷八幡町8番地 TKP市ヶ谷ビル2F
設立 :2005年8月15日
資本金 :162億円
決算期 :2月
売上高 :446億円(2022年2月期連結)
従業員数(連結):883名(契約社員・時給社員・パート等臨時雇用者除く) 2023年2月現在
事業内容 : ・フレキシブルオフィス事業
(貸会議室・レンタルオフィス・コワーキングスペース運営)
・ホテル・宿泊研修事業
・イベントプロデュース事業
・BPO事業
・料飲・バンケット事業
URL :https://www.tkp.jp/
このプレスリリースには、メディア関係者向けの情報があります
メディアユーザーログイン既に登録済みの方はこちら
メディアユーザー登録を行うと、企業担当者の連絡先や、イベント・記者会見の情報など様々な特記情報を閲覧できます。※内容はプレスリリースにより異なります。
すべての画像
