不動産投資支援事業を展開するフェイスネットワーク 周辺環境の魅力を取り込んだ賃貸マンション『GranDuo(グランデュオ)経堂19』が完成!
東京の城南3区エリア(世田谷区、目黒区、渋谷区)を中心に、主に新築一棟RCマンションによる不動産投資支援事業を展開する株式会社フェイスネットワーク(本社:東京都渋谷区、代表取締役社長:蜂谷 二郎、以下「当社」という。)は、『GranDuo(グランデュオ) 経堂19』(東京都世田谷区、地上5階建て 総戸数14戸)が2025年10月31日(金)に完成したことをお知らせいたします。

本物件は、小田急小田原線「経堂」駅、「豪徳寺」駅から徒歩7分の閑静な住宅街に位置しています。周辺には、緑道や緑溢れる公園が点在しており、自然に恵まれた落ち着きのある住環境が広がっています。
そんな自然豊かな街並みを活かし、外からの視線や直射日光に配慮しながら豊かな環境を切り取る「額のある住まい」を計画いたしました。この「額」が外と内を繋ぐ中間領域となり、周辺の景色、光、風を引き込みます。
また、バルコニーは奥行きや幅を十分に確保することで、小さなテーブルを置いてコーヒーを楽しんだり、ヨガなどの軽いストレッチをしたり、住み手によってさまざまな利用方法をお楽しみいただけます。
◆『GranDuo経堂19』特徴
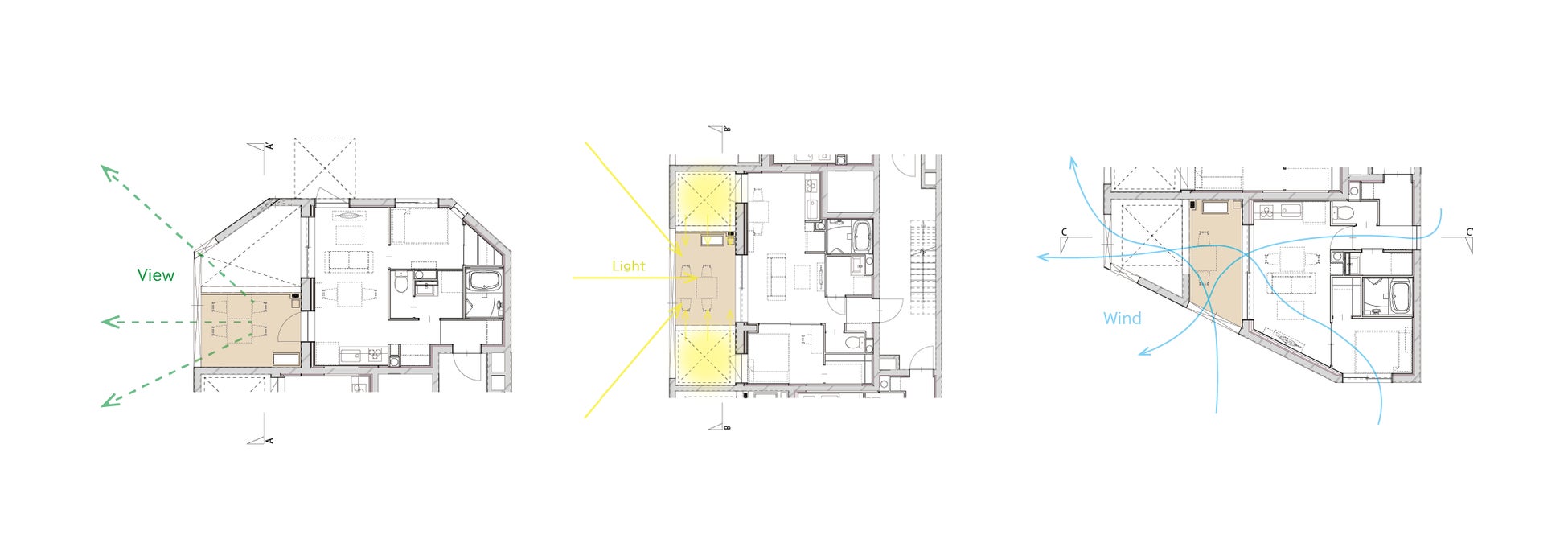
◇豊かな環境を切り取る「額のある住まい」

本計画地は、西側には山下公園がある開けた土地に位置しています。眺めの良い眺望や自然光、木々を揺らす風が通り抜ける豊かな環境である反面、外からの視線や真夏日の直射日光、直接的に入る雨風等の好まれない要素も含まれています。本計画では、それらの要素のコントロールをデザインコンセプトとし、豊かな環境を切り取る「額のある住まい」といたしました。
◇敷地の魅力を引き込む中間領域

「額」を設けた壁が外と内を繋ぐ中間領域のような場所を生み出しており、この中間領域では、景色、光、風の要素をピックアップして、敷地の魅力を引き込みます。景色の要素は、フロアをまたぐ大きな開口を設け、視線が通り抜けるよう計画することで、視界が抜ける感覚を生み出します。光の要素は、吹抜けを設け、住戸内に自然光が降り注ぐよう工夫いたしました。風の要素は、バルコニーサッシを大きく設置し、部屋と屋外空間を繋げることで、風が通り抜けるような空間設計となっております。
また、バルコニーは奥行きや幅を十分に確保し、小さなテーブルを置いてコーヒーを楽しんだり、ヨガなどの軽いストレッチをしたり、住み手によってさまざまな利用方法が生まれるよう計画しました。
◇見る場所で表情を変えるファサードデザイン

外壁にはさまざまな大きさの開口がランダムに設けられ、公園、墓地、前面道路のどこから見ても違った表情のファサードをお楽しみいただけます。また、階をまたぐ大きな開口がプライバシーを確保しつつ、柔らかな光を取り込みます。
◇ニュアンスカラーでまとめた内装

内装は、光の当たり方によって見え方が変わる、自然に近いニュアンスカラーで統一しました。ニュアンスカラーは、全体がくすみがかったグレー寄りの色味で、柔らかさや落ち着き、上品さを感じさせます。また、ポイントとなる建具や金物等には黒系の色を持ってくることで、引き締まった空間を演出しております。
◆『GranDuo経堂19』物件概要
所在地 :東京都世田谷区宮坂2丁目24-16
アクセス :小田急小田原線 経堂駅 徒歩7分
小田急小田原線 豪徳寺駅 徒歩7分
構造 :鉄筋コンクリート造 地上5階建
敷地面積 :266.27㎡
延床面積 :679.43㎡
設計・監理:株式会社フェイスネットワーク
建築・施工:立建設株式会社
詳細情報 :https://faithnetwork.co.jp/project/p13789/
◆『GranDuo経堂19』賃貸情報
入居可能戸数 :14戸(1LDK×14戸)
賃貸専有面積 :住居/33.72㎡~41.45㎡
敷金/礼金 :1ヶ月/なし(契約期間:2年間)
備考 :ペット相談可(「小型犬~中型犬」または「猫」合計2匹まで ※総体重15Kg以内)
物件情報サイト:「3区MIRAIE」 https://3kumiraie.jp/rent/304
募集状況 :入居申込受付中(満室になり次第終了)
◆株式会社フェイスネットワークについて https://faithnetwork.co.jp
住みたい街として人気の東京 城南3区エリア(世田谷区、目黒区、渋谷区)を中心とした、主に新築一棟RCマンションによる不動産投資支援事業を展開。土地の仕入・設計・施工・物件販売から賃貸の入居者募集・物件管理に至るまで、全てを自社で管理するワンストップサービスを提供。独自ブランド「GranDuo(グランデュオ)」を展開している。現在までに合計250棟以上の新築一棟マンションをプロデュースし、城南3区エリアでの新築一棟RCマンション竣工棟数は No.1。(㈱建設データバンクのデータを基に自社調べ (2025年9月末時点))
投資用不動産の活用を通じてオーナー様の夢の実現をサポートするとともに、デザインと居住性を両立させたマンション開発を通じて、城南3区エリアでの入居者様の理想のライフスタイルを叶え続けている。

住所 :東京都渋谷区千駄ヶ谷3-2-1 FaithBldg.
代表者 :代表取締役社長 蜂谷 二郎
事業内容 :不動産業/建設業/一級建築士事務所
証券コード:東証スタンダード市場3489
このプレスリリースには、メディア関係者向けの情報があります
メディアユーザー登録を行うと、企業担当者の連絡先や、イベント・記者会見の情報など様々な特記情報を閲覧できます。※内容はプレスリリースにより異なります。
すべての画像
