広大な敷地に建つ約100㎡の広々とした平屋建て貸別荘「スイートヴィラ 九十九里 SURF HOUSE」が3月3日開業<サーファーにも嬉しい屋外シャワー付き!>
九十九里海岸から近く、広大な庭を見渡すウッドテラスが魅力。<リソル不動産>
リソルグループ(グループ本社:東京都新宿区)のリソル不動産株式会社(以下、リソル不動産)は、「スイートヴィラ 九十九里 SURF HOUSE」(千葉県旭市)を2023年3月3日(金)に開業しました。


この度新しくオープンする「スイートヴィラ 九十九里 SURF HOUSE」は、広大な庭を見渡すウッドテラスが魅力の平屋建て貸別荘で、日本最大級の砂浜として知られる九十九里浜(千葉県旭市)からほど近く、サーフィンなどのマリンスポーツを楽しみたい方に最適な施設です。
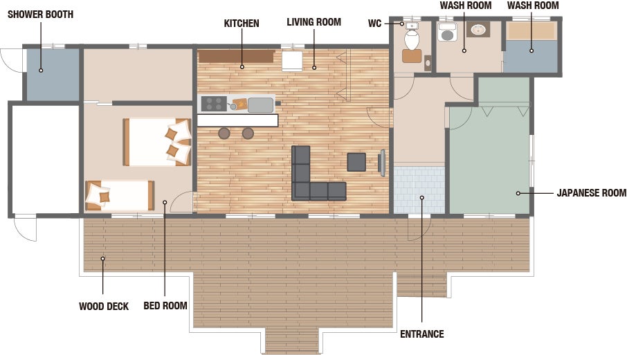
別荘の外観は九十九里の美しい砂浜を思わせる白を基調とし、232坪ある敷地の芝庭を見渡せるウッドテラスでは、日常から離れたシーサイドリゾートらしい雰囲気がお楽しみいただけます。屋内は約96㎡の2LDKで、リビング・ダイニング・キッチンスペースは、天井が高く広々とした空間でスローライフを楽しむサーフハウスの開放感を演出しています。2室の寝室は和室(6畳)と洋室(8畳)で、最大7名様までの宿泊が可能です。洋室には大きなウォークインクローゼットを備えており、荷物が多くなる長期の滞在でも快適にお過ごしいただけます。また、外流しシャワーが備わっているので、サーファーの方にとっては利便性が高く、特におすすめな施設となります。
密を避ける傾向や休暇の分散長期化、ワーケーションなどで貸別荘需要が高まる中、リソル不動産では、別荘所有オーナーに開業から運営・集客をワンストップで行う仕組みを提案し、多様なスタイルの貸別荘の新規開拓を推進します。同時に、様々な宿泊ニーズに対応しながら新しい別荘の過ごし方を提案し、今後も「リソルステイ」事業の拡大を図ります。
- 「スイートヴィラ 九十九里 SURF HOUSE」の特徴
 
■リビング・ダイニング・キッチンスペース
高い天井が開放的な空間を演出。



寝室は、6畳の和室[布団×4]と8畳の洋室[ダブル×1・エキストラベッド×1]の計2室で、最大で7名様までご利用可能です。



屋外にもシャワールームを備えているので、海水浴後でも綺麗にお部屋に戻ることができます。


■ウッドテラス・庭
広々とした敷地にはウッドテラスと庭を備えており、体を動かす遊びも楽しむことができます。


- 【施設概要】
 

■所在地 :千葉県旭市駒込905-87
■交通
<自動車利用の場合>
・東京駅より、約140分
<電車利用の場合>
・JR総武本線「旭駅」から車で14分
■建物構造 :木造ストレート葺平屋建て
■客室数 :1棟[2LDK]最大7名様まで
■駐車場 :3台
■料金 :お一人様9,500円~
■周辺情報 :九十九里浜
【宿泊予約】
■受付開始日:2023年2月21日より公開中
■予約方法:リソルステイ公式HP ▶ https://www.resolstay.jp/details/kujyukuri/
【リソルステイ事業について】

リソル不動産では、「暮らすように泊まる。」をコンセプトに滞在を楽しむ旅のスタイルをリソルステイと名付け、その憧れの時間にふさわしい空間をスイートヴィラと呼び、施設拡大を図っています。
自社施設の運営だけでなく、利用頻度の低い別荘オーナーと提携し、開業準備から運営・管理、集客に至る業務をワンストップで代行することで、別荘のホテル化を実現。別荘の有効活用による収益化で空き家化を防ぎ、別荘のサステナビリティを向上につなげます。
リソルステイ公式サイト(貸別荘利用者向け)
▶https://www.resolstay.jp/
リソルステイオーナーズサイト(別荘オーナー向け)
▶https://www.resol-fudousan.jp/
リソルホールディングスコーポレートサイト
▶https://www.resol.jp/
<本リリースに関する問い合わせ先>
リソルホールディングス株式会社(RESOLグループ)
広報室/高橋 弘毅・長田 和将
TEL:03(3342)0331(直通)
E-mail : press@resol.jp
URL : https://www.resol.jp
公式 Facebook ▶ https://www.facebook.com/RESOLHOLDINGS/
[リソルグループは、「3つのやさしい」を推進しています。]
▶ https://www.resol.jp/csr/
このプレスリリースには、メディア関係者向けの情報があります
メディアユーザーログイン既に登録済みの方はこちら
メディアユーザー登録を行うと、企業担当者の連絡先や、イベント・記者会見の情報など様々な特記情報を閲覧できます。※内容はプレスリリースにより異なります。
すべての画像
