「三田小山町西地区第一種市街地再開発事業」権利変換計画認可のお知らせ
~約2.5ha、住宅・商業・オフィスのミクストユースプロジェクト~
三井不動産レジデンシャル株式会社(本社:東京都中央区、代表取締役社長:嘉村 徹)、日鉄興和不動産株式会社(本社:東京都港区、代表取締役社長:今泉 泰彦)、三菱地所レジデンス株式会社(本社:東京都千代田区、代表取締役 社長執行役員:宮島 正治)、一般財団法人首都圏不燃建築公社(本社:東京都港区、理事長:荒川 光弘)の4社は、東京都港区三田一丁目にて権利者の皆様と推進しております「三田小山町西地区第一種市街地再開発事業(以下、本プロジェクト)」が、2022年12月21日に権利変換計画について東京都知事の認可を受けましたことをお知らせいたします。
三田小山町西地区は、東京メトロ南北線・都営地下鉄大江戸線「麻布十番」駅からほど近い港区三田一丁目に位置した約2.5haの区域です。本プロジェクトでは、細分化された土地の集約化や建物の不燃化、適切な道路等の基盤施設の整備・拡充、公園や古川沿いの親水広場・歩道状空地等の整備により、防災性の向上を図り、安全・安心で快適な魅力ある複合市街地の形成を図ります。
本プロジェクトは3棟から構成される約1,400戸の共同住宅をはじめとし、オフィスや店舗、保育園、公園を一体で開発することでにぎわいを創出します。近傍の麻布十番エリアへつながる動線を設け、エリア全体の回遊性・利便性を高めることに加え、地域の方が憩い、交流できるような緑あふれる広場や歩行者空間も整備します。
引き続き、権利者の皆様とともに、2028年度の竣工を目指し事業を推進してまいります。
今後も多様化するライフスタイルに応える環境をご提供するとともに、安全・安心で末永くお住まいいただける街づくりを推進することで、持続可能な社会の実現・SDGsに貢献してまいります。
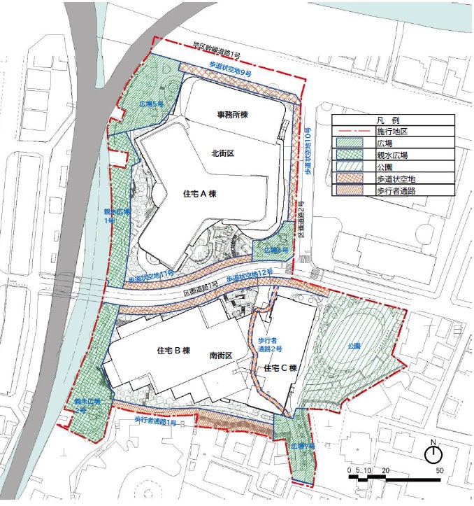
✔東京メトロ南北線・都営地下鉄大江戸線「麻布十番」駅至近、約2.5haの第一種市街地再開発事業。
✔地上42階建ての住宅A棟を中心とし、3棟から構成される約1,400戸の共同住宅と、オフィス・店舗・保育園等のミクストユースプロジェクト。古川沿いの広場や約2,500㎡におよぶ公園の整備等、地域に開かれた緑豊かなオープンスペースを創出。
✔本プロジェクト内を横断する区画道路を整備することで、近傍の麻布十番エリアとの回遊性と利便性を向上。
✔共同住宅には多様なライフスタイルを叶え、日々のくらしをより豊かにする多彩な共用施設を配置予定。
■敷地配置図
■これまでの経緯と今後のスケジュール
1994年7月 :「三田小山町第3・5地区市街地再開発準備組合」設立
2016年6月 :都市計画決定告示
2020年9月 :「三田小山町西地区市街地再開発組合」設立
2022年12月 :権利変換計画認可
2024年度 :本体工事着工(予定)
2028年度 :竣工(予定)
■事業概要
事業名 :三田小山町西地区第一種市街地再開発事業
施行者 :三田小山町西地区市街地再開発組合
所在地 :東京都港区三田一丁目3番 他(地番)
区域面積:約2.5ha
建築面積:約10,890㎡
延床面積:約177,640㎡
規 模 :(北街区 住宅A棟)地上42階 地下1階建
(北街区 事務所棟)地上8階 地下1階建
(南街区 住宅B棟)地上31階 地下1階建
(南街区 住宅C棟)地上16階 地下1階建
高 さ :(北街区 住宅A棟)約165m
(北街区 事務所棟)約37m
(南街区 住宅B棟)約124m
(南街区 住宅C棟)約64m
主要用途:共同住宅、事務所、店舗、保育園
事業推進コーディネーター/施設建築物設計者:株式会社アール・アイ・エー
参加組合員:三井不動産レジデンシャル株式会社、日鉄興和不動産株式会社、
三菱地所レジデンス株式会社、一般財団法人首都圏不燃建築公社
特定業務代行者:戸田建設株式会社、大成建設株式会社
■位置図
■三井不動産グループのSDGsへの貢献について
https://www.mitsuifudosan.co.jp/esg_csr/
三井不動産グループは、「共生・共存」「多様な価値観の連繋」「持続可能な社会の実現」の理念のもと、人と地球がともに豊かになる社会を目指し、環境(E)・社会(S)・ガバナンス(G)を意識した事業推進、すなわちESG経営を推進しております。当社グループのESG経営をさらに加速させていくことで、日本政府が提唱する「Society 5.0」の実現や、「SDGs」の達成に大きく貢献できるものと考えています。また、2021年11月には「脱炭素社会の実現」、「ダイバーシティ&インクルージョン推進」に関し、下記の通りグループ指針を策定しました。今後も、当社グループは街づくりを通じた社会課題の解決に向けて取り組んでまいります。
【参考】
・「脱炭素社会実現に向けグループ行動計画を策定」
https://www.mitsuifudosan.co.jp/corporate/news/2021/1124/
・「ダイバーシティ&インクルージョン推進宣言および取り組み方針を策定」
https://www.mitsuifudosan.co.jp/corporate/news/2021/1129_02/
■三井不動産レジデンシャル「カーボンニュートラルデザイン推進計画」について
https://www.mfr.co.jp/content/dam/mfrcojp/company/news/2022/0315_01.pdf
すまいの高性能・高耐久化による省エネルギーの実現や、再生可能エネルギーの導入を促進するとともに、ご入居後のくらしにおいても、楽しみながら省エネルギー行動等の環境貢献に取り組んでいただけるようなサービスの提供を推進し、すまいとくらしの両面からカーボンニュートラルの実現を目指していきます。
■三菱地所グループの取組みについて
当社は、「長期経営計画2030」において、社会価値向上戦略として「三菱地所グループのSDGs 2030」を策定し、4つの重要テーマ「Environment」「Diversity & Inclusion」「Innovation」「Resilience」についてKPIや個別のアクションプランを定めて取り組んでいます。社会の実現に向けて新たなCO2等温室効果ガス削減目標を制定し、SBTiが発表したネットゼロ新基準に基づき、2050年ネットゼロ宣言をいたしました(2022年6月「SBTi」よりSBTネットゼロ認定取得)。今後も、重要テーマに関する取り組みを着実に実践することで、長期経営計画に掲げる「社会価値の向上」、ならびに持続可能な社会の実現を目指したサステナブルなまちづくりを推進してまいります。
【参考】
・三菱地所グループのサステナビリティサイト
https://mec.disclosure.site/j/sustainability/
・「新たなグループ全体のCO2等温室効果ガス削減目標制定と、SBTiが新たに制定した基準に則り2050年ネットゼロを宣言」
https://www.mec.co.jp/j/news/archives/mec220309_netzero.pdf
・CO2等温室効果ガス排出削減目標について 日本初 SBTネットゼロ認定を取得
https://www.mec.co.jp/j/news/archives/mec220726_SBT.pdf
■三菱地所レジデンス「CO2排出量削減戦略」について
https://www.mec-r.com/news/2022/2022_0112_02.pdf
三菱地所レジデンスでは、脱炭素社会の実現に向けた取り組みを加速させるため、CO2排出量を2030年までに2019年比50%削減を目指し、様々な取り組みを推進しております。
※なお、本リリースの取り組みは、SDGs(持続可能な開発目標)における1つの目標に貢献しています。
目標11 住み続けられるまちづくりを
三田小山町西地区は、東京メトロ南北線・都営地下鉄大江戸線「麻布十番」駅からほど近い港区三田一丁目に位置した約2.5haの区域です。本プロジェクトでは、細分化された土地の集約化や建物の不燃化、適切な道路等の基盤施設の整備・拡充、公園や古川沿いの親水広場・歩道状空地等の整備により、防災性の向上を図り、安全・安心で快適な魅力ある複合市街地の形成を図ります。
本プロジェクトは3棟から構成される約1,400戸の共同住宅をはじめとし、オフィスや店舗、保育園、公園を一体で開発することでにぎわいを創出します。近傍の麻布十番エリアへつながる動線を設け、エリア全体の回遊性・利便性を高めることに加え、地域の方が憩い、交流できるような緑あふれる広場や歩行者空間も整備します。
引き続き、権利者の皆様とともに、2028年度の竣工を目指し事業を推進してまいります。
今後も多様化するライフスタイルに応える環境をご提供するとともに、安全・安心で末永くお住まいいただける街づくりを推進することで、持続可能な社会の実現・SDGsに貢献してまいります。
【完成予想CG】
✔東京メトロ南北線・都営地下鉄大江戸線「麻布十番」駅至近、約2.5haの第一種市街地再開発事業。
✔地上42階建ての住宅A棟を中心とし、3棟から構成される約1,400戸の共同住宅と、オフィス・店舗・保育園等のミクストユースプロジェクト。古川沿いの広場や約2,500㎡におよぶ公園の整備等、地域に開かれた緑豊かなオープンスペースを創出。
✔本プロジェクト内を横断する区画道路を整備することで、近傍の麻布十番エリアとの回遊性と利便性を向上。
✔共同住宅には多様なライフスタイルを叶え、日々のくらしをより豊かにする多彩な共用施設を配置予定。
■敷地配置図

■これまでの経緯と今後のスケジュール
1994年7月 :「三田小山町第3・5地区市街地再開発準備組合」設立
2016年6月 :都市計画決定告示
2020年9月 :「三田小山町西地区市街地再開発組合」設立
2022年12月 :権利変換計画認可
2024年度 :本体工事着工(予定)
2028年度 :竣工(予定)
■事業概要
事業名 :三田小山町西地区第一種市街地再開発事業
施行者 :三田小山町西地区市街地再開発組合
所在地 :東京都港区三田一丁目3番 他(地番)
区域面積:約2.5ha
建築面積:約10,890㎡
延床面積:約177,640㎡
規 模 :(北街区 住宅A棟)地上42階 地下1階建
(北街区 事務所棟)地上8階 地下1階建
(南街区 住宅B棟)地上31階 地下1階建
(南街区 住宅C棟)地上16階 地下1階建
高 さ :(北街区 住宅A棟)約165m
(北街区 事務所棟)約37m
(南街区 住宅B棟)約124m
(南街区 住宅C棟)約64m
主要用途:共同住宅、事務所、店舗、保育園
事業推進コーディネーター/施設建築物設計者:株式会社アール・アイ・エー
参加組合員:三井不動産レジデンシャル株式会社、日鉄興和不動産株式会社、
三菱地所レジデンス株式会社、一般財団法人首都圏不燃建築公社
特定業務代行者:戸田建設株式会社、大成建設株式会社
■位置図

■三井不動産グループのSDGsへの貢献について
https://www.mitsuifudosan.co.jp/esg_csr/
三井不動産グループは、「共生・共存」「多様な価値観の連繋」「持続可能な社会の実現」の理念のもと、人と地球がともに豊かになる社会を目指し、環境(E)・社会(S)・ガバナンス(G)を意識した事業推進、すなわちESG経営を推進しております。当社グループのESG経営をさらに加速させていくことで、日本政府が提唱する「Society 5.0」の実現や、「SDGs」の達成に大きく貢献できるものと考えています。また、2021年11月には「脱炭素社会の実現」、「ダイバーシティ&インクルージョン推進」に関し、下記の通りグループ指針を策定しました。今後も、当社グループは街づくりを通じた社会課題の解決に向けて取り組んでまいります。
【参考】
・「脱炭素社会実現に向けグループ行動計画を策定」
https://www.mitsuifudosan.co.jp/corporate/news/2021/1124/
・「ダイバーシティ&インクルージョン推進宣言および取り組み方針を策定」
https://www.mitsuifudosan.co.jp/corporate/news/2021/1129_02/
■三井不動産レジデンシャル「カーボンニュートラルデザイン推進計画」について
https://www.mfr.co.jp/content/dam/mfrcojp/company/news/2022/0315_01.pdf
すまいの高性能・高耐久化による省エネルギーの実現や、再生可能エネルギーの導入を促進するとともに、ご入居後のくらしにおいても、楽しみながら省エネルギー行動等の環境貢献に取り組んでいただけるようなサービスの提供を推進し、すまいとくらしの両面からカーボンニュートラルの実現を目指していきます。
■三菱地所グループの取組みについて
当社は、「長期経営計画2030」において、社会価値向上戦略として「三菱地所グループのSDGs 2030」を策定し、4つの重要テーマ「Environment」「Diversity & Inclusion」「Innovation」「Resilience」についてKPIや個別のアクションプランを定めて取り組んでいます。社会の実現に向けて新たなCO2等温室効果ガス削減目標を制定し、SBTiが発表したネットゼロ新基準に基づき、2050年ネットゼロ宣言をいたしました(2022年6月「SBTi」よりSBTネットゼロ認定取得)。今後も、重要テーマに関する取り組みを着実に実践することで、長期経営計画に掲げる「社会価値の向上」、ならびに持続可能な社会の実現を目指したサステナブルなまちづくりを推進してまいります。
【参考】
・三菱地所グループのサステナビリティサイト
https://mec.disclosure.site/j/sustainability/
・「新たなグループ全体のCO2等温室効果ガス削減目標制定と、SBTiが新たに制定した基準に則り2050年ネットゼロを宣言」
https://www.mec.co.jp/j/news/archives/mec220309_netzero.pdf
・CO2等温室効果ガス排出削減目標について 日本初 SBTネットゼロ認定を取得
https://www.mec.co.jp/j/news/archives/mec220726_SBT.pdf
■三菱地所レジデンス「CO2排出量削減戦略」について
https://www.mec-r.com/news/2022/2022_0112_02.pdf
三菱地所レジデンスでは、脱炭素社会の実現に向けた取り組みを加速させるため、CO2排出量を2030年までに2019年比50%削減を目指し、様々な取り組みを推進しております。
※なお、本リリースの取り組みは、SDGs(持続可能な開発目標)における1つの目標に貢献しています。
目標11 住み続けられるまちづくりを
すべての画像
