【東京都町田市】市庁舎の食堂運営再開に向け、事業者見学会を開催します!
食堂ホール部分だけでなく、厨房設備も見学可能
町田市では、来庁者や職員の利便性向上に加え、市内農産物等の地産地消の促進や市内産業の活性化に寄与することを目的として、市庁舎2階の食堂運営再開を予定しています。そこで、食堂運営を希望する市内飲食事業者等を対象に施設見学会を開催します。
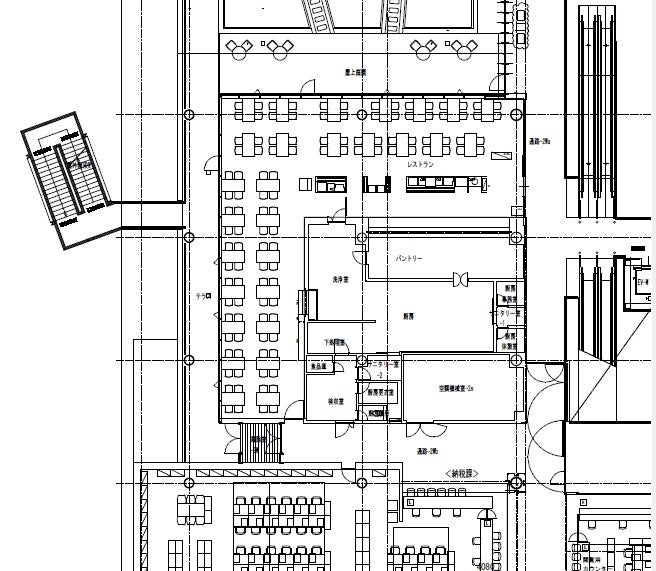
食堂ホール(255.4㎡)
日程
2024年5月24日(金)
時間
①10時から ②13時から ③15時から
申込方法
希望日時、参加人数等を予め市有財産活用課へご連絡ください。
※食堂ホール部分だけでなく、厨房設備についてもご覧いただけます。
厨房(145.4㎡)
今後の予定
2024年7月 公募型プロポーザルにより事業者を決定
10月 飲食の提供開始
市庁舎2階旧食堂配置図
町田市について
人口約43万人、東京都の南部に位置し、都心から電車で30分程度の場所にある町田市。町田駅周辺は大型商業施設が立ち並び、古くから栄えてきた商店街も健在。駅から少し離れると、里山の風景、緑いっぱいの公園、地場野菜を作る農地など、自然も多くあります。街の便利さと自然のどちらも味わえるまちです。

■町田市HP
https://www.city.machida.tokyo.jp/
■まちだ子育てサイト
https://kosodate-machida.tokyo.jp/index.html
■まちだシティプロモーション(町田市公式)@machida_cp
Instagram https://www.instagram.com/machida_cp/
このプレスリリースには、メディア関係者向けの情報があります
メディアユーザーログイン既に登録済みの方はこちら
メディアユーザー登録を行うと、企業担当者の連絡先や、イベント・記者会見の情報など様々な特記情報を閲覧できます。※内容はプレスリリースにより異なります。
すべての画像
- 種類
- その他
- ビジネスカテゴリ
- 政治・官公庁・地方自治体その他
- ダウンロード
