渋谷の人気ダンススタジオ「Studio Mission」が10月1日より移転リニューアルオープン。ホームページよりスタジオの予約も開始!
壁紙、床、照明などにこだわり、他にもないスタジオへ。


渋谷最大級のレンタルスタジオとして、ダンサーだけではなく舞台・演劇・ミュージカルの稽古場にヨガなどのワークショップなど数多くの方々にご利用いただいている『studio mission』。
この度、入居している新大宗ビル4号館が「渋谷区道玄坂二丁目南地区第一種市街地再開発事業の施行」の開発地域である為、現スタジオの道路を挟んで真向かい側のビル(元カラnet)に移転することとなり、『studio mission DOGENZAKA』として10/1より移転・リニューアルオープンいたしました。
6Fから10Fが先行オープンとなり、現在スタジオミッションのホームページ内、予約フォームより予約を承っております。
ご新規の方もホームページより新規会員登録をしていただければ、移転先の予約・予約状況が確認できますので、ぜひこの機会にご登録&ご利用ください。
HP: http://studio-mission.com
移転先住所: 東京都渋谷区道玄坂2-28-5 秀永道玄坂ビル2-10F 03-6823-4800
- 部屋紹介
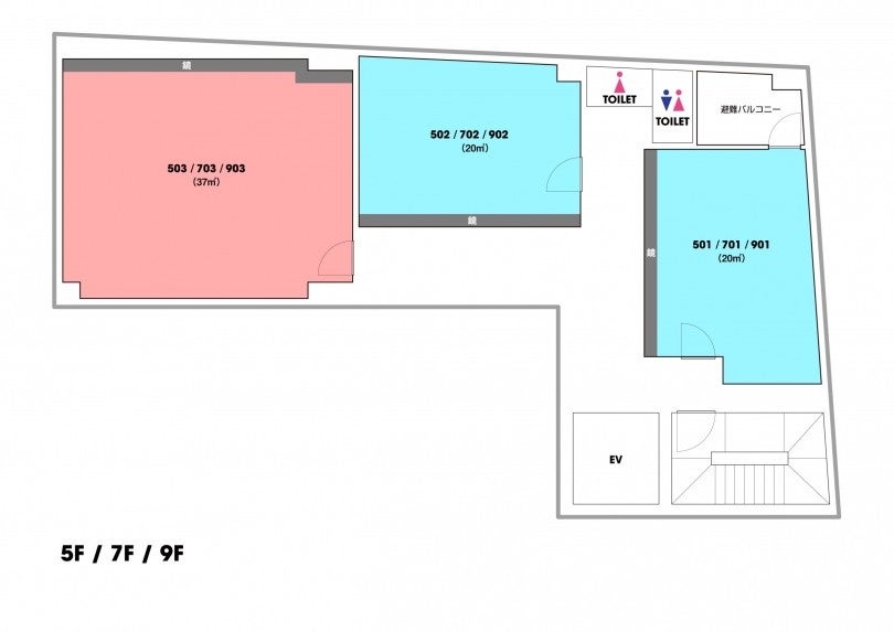
床材5階リノ 、7・9階塩ビ
床材塩ビ、フロントは6階となります
床材リノ
無料オプション付スタジオ別途オプション追加可能、床材リノ
床材に関してリノは薄いグレー無地(現場所地下のスタジオと同じもの)
塩ビは茶色ベースの木目調デザインとなります。
全部屋基本、壁は白の無地ですが、各部屋1面のみ遊び心ある柄の面を設けました。
撮影時など是非ご活用いただきたく存じます。(柄の面は鏡に対して背面ではなく、左右どちらかの面になります)また、各スタジオ鏡下にLEDカラーテープライトを設置致します。こちらも演出の際是非ご利用くださいませ。
全部屋無線wifiの他に有線LAN常設予定、配信利用に是非ご活用ください!
- 価格表
□301,501,502,601,701,702,801,802,901,902
- 平日10-17:00 30min/¥825
- 平日17-24:00, 土日祝9-24:00 30min/¥913
- 深夜24-翌6:00 ¥3498
□201,202,401,1001,1002
- 平日10-17:00 30min/¥836
- 平日17-24:00, 土日祝9-24:00 30min/¥924
- 深夜24-翌6:00 ¥3498
□503,703,903
- 平日10-17:00 30min/¥1232
- 平日17-24:00, 土日祝9-24:00 30min/¥1320
- 深夜24-翌6:00 ¥4664
□602
- 平日10-17:00 30min/¥1397
- 平日17-24:00, 土日祝9-24:00 30min/¥1496
- 深夜24-翌6:00 ¥4499
□803
- 平日10-17:00 30min/¥1529
- 平日17-24:00, 土日祝9-24:00 30min/¥1650
- 深夜24-翌6:00 ¥4994
□203
- 平日10-17:00 30min/¥1650
- 平日17-24:00, 土日祝9-24:00 30min/¥1760
- 深夜24-翌6:00 ¥4994
□1003
- 平日10-17:00 30min/¥1694
- 平日17-24:00, 土日祝9-24:00 30min/¥1793
- 深夜24-翌6:00 ¥4994
□302
- 平日10-17:00 30min/¥2398
- 平日17-24:00, 土日祝9-24:00 30min/¥2497
- 深夜24-翌6:00 ¥9493
□402
- 平日10-17:00 30min/¥2497
- 平日17-24:00, 土日祝9-24:00 30min/¥2596
- 深夜24-翌6:00 ¥10494
皆様のご利用をお待ちしております。
このプレスリリースには、メディア関係者向けの情報があります
メディアユーザー登録を行うと、企業担当者の連絡先や、イベント・記者会見の情報など様々な特記情報を閲覧できます。※内容はプレスリリースにより異なります。
すべての画像
