伊東市と東急株式会社が「コワーキング機能を有する交流拠点に関する連携協定」を締結
伊東市と東急株式会社は、デジタル技術を活用した地域資源の循環と、環境・社会経済の両立による地域課題の解決を目的として、令和8年2月13日に「コワーキング機能を有する交流拠点に関する連携協定」(以下、本協定)を締結いたしました。
本協定は、静岡県「ふじのくにフロンティア地域循環共生圏形成事業」の一環として、伊豆高原駅直結の「やまもプラザ」を改修・活用し、企業や学生が先進技術に触れ、新たなビジネスを創出する交流拠点を整備するための枠組みを定めるものです。
-
背景と目的
伊豆東海岸4市町(下田市、河津町、東伊豆町、伊東市)で構成する「伊豆東海岸広域地域循環共生圏協議会」の事業計画が、令和6年3月に静岡県の「ふじのくにフロンティア地域循環共生圏形成事業」に採択されました。
本計画では、「豊かな自然環境の中で、いつでも誰でも安全で快適な生活を享受でき、働き住み続けられる先進技術実証・実装都市先進技術実証・実装都市」を掲げており、伊東市においては、交通の結節点である伊豆高原駅周辺を拠点とした、新たな産業・技術の創出と企業誘致の促進を目指しております。
-
協定の主な内容
伊豆高原駅「やまもプラザ」の改修・運営計画に基づき、以下の項目について連携を図ります。
・先進技術の実証・実装に向けた環境整備:企業や学生による実証実験や学びの場の提供。
・交流による新ビジネスの創出:地域内外の企業、住民、観光客が交わる拠点の運営。
・地域課題の解決:デジタル技術等を活用した地域資源の活用と循環の促進。
・補助金活用:補助金交付要綱等に基づいた適正な事業執行。
-
今後の展望
本協定の締結により、伊東市に伊豆東海岸全体の広域的な連携拠点が生まれ、単なる交通の通過点ではなく、新たな価値が生まれる「目的地」となることを目指します。これにより、関係人口の創出や若年層の定住促進、持続可能な地域経済の発展を推進してまいります。
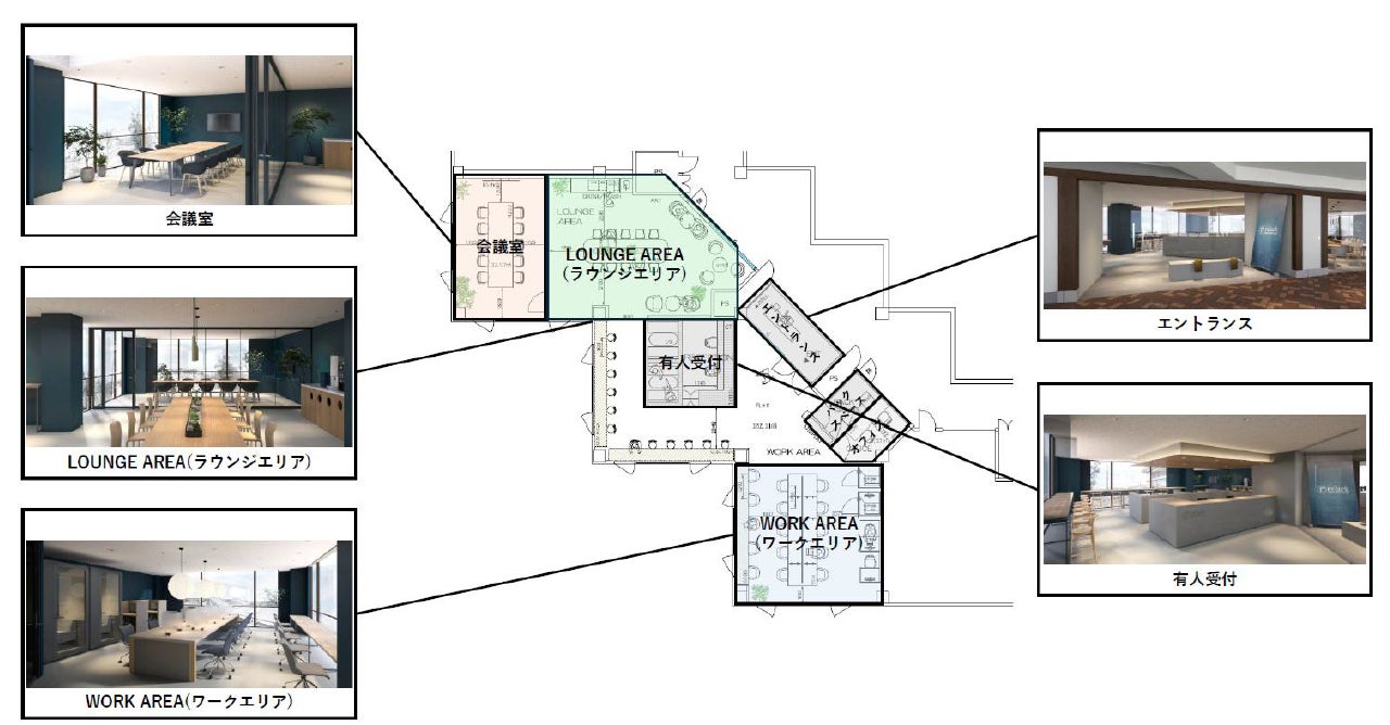
伊豆高原駅「やまもプラザ」の改修・運営計画概要について
1.施設概要
(1)施設名称:relark伊豆高原(リラーク伊豆高原)
(2)開業日 :2026年7月(予定)
(3)アクセス:やまもプラザ1階(伊豆急行線伊豆高原駅直結)
(4)座席数 :約50席
2.施設イメージ

このプレスリリースには、メディア関係者向けの情報があります
メディアユーザー登録を行うと、企業担当者の連絡先や、イベント・記者会見の情報など様々な特記情報を閲覧できます。※内容はプレスリリースにより異なります。
すべての画像
- 種類
- 経営情報
- ビジネスカテゴリ
- 政治・官公庁・地方自治体
- ダウンロード
