日本人バンブー建築士誕生!インドネシア・ロンボク島で大型バンブーレストラン「Milky Wave」グランドオープン間近
大型バンブーレストラン「Milky Wave」はロンボク島観光経済特区「マンダリカ」エリアまで3分圏内の好立地エリアからはマンダリカが一望できるオーシャンビューレストランとなっております。
インドネシア国の第二のバリ島と呼ばれる島がある。そこは「ロンボク島」
バンブー建築では珍しい大型のレストランが 「Milky Wave」オープン
世界でも珍しいBambooで造られた大型のレストラン施設です。建物の構造からディテール全てをBamboo技術を駆使し造られたBamboo建物は通常の建築物とは大幅に異なり、唯一無二の存在、一つのアート作品とした大型Bamboo建築物です。
Milky Waveは、このロンボク島に竹産業をもたらした大きな存在であり、今後はロンボク島から世界へメッセージ性をもつBambooアート作品として運営される施設となります。
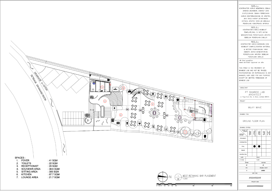
● Milky Wave 建築概要
総面積: 800㎡ (土地)
バンブー建築エリア: 1F 453㎡ 2F 223㎡ エントランス 63㎡ 総バンブー本数:5000本
地域の環境資源を活かし、リゾート地として開発されるロンボク島の観光産業へも大きな役割も担っている。
バンブー建築を日本の沖縄に確立することを目指す
日本で成長したバンブーを現地の工場で加工し建材にしたものを、日本の建築に幅広く利用してもらうために、ここロンボク島で得たノウハウと経験を日本の中でも確立していく想いがあり、そのスタートとして2024年には沖縄エリアでのバンブー建築実績を目指しております。
運営会社 PT. Bamboo Lab Architect
Jl. Mawun, Sengkol, Kec. Pujut, Kabupaten Lombok Tengah, Nusa Tenggara Bar. 83573
satoki@bamboolab-arch.com
情報提供:株式会社ロンボク島
https://lombok-landbanking.com/

バンブー建築では珍しい大型のレストランが 「Milky Wave」オープン

世界でも珍しいBambooで造られた大型のレストラン施設です。建物の構造からディテール全てをBamboo技術を駆使し造られたBamboo建物は通常の建築物とは大幅に異なり、唯一無二の存在、一つのアート作品とした大型Bamboo建築物です。

Milky Waveは、このロンボク島に竹産業をもたらした大きな存在であり、今後はロンボク島から世界へメッセージ性をもつBambooアート作品として運営される施設となります。

レストランメニューは日本人シェフによる日本食をベースとしたジャパニーズフュージョン食のオリジナルメニューを創作しております。

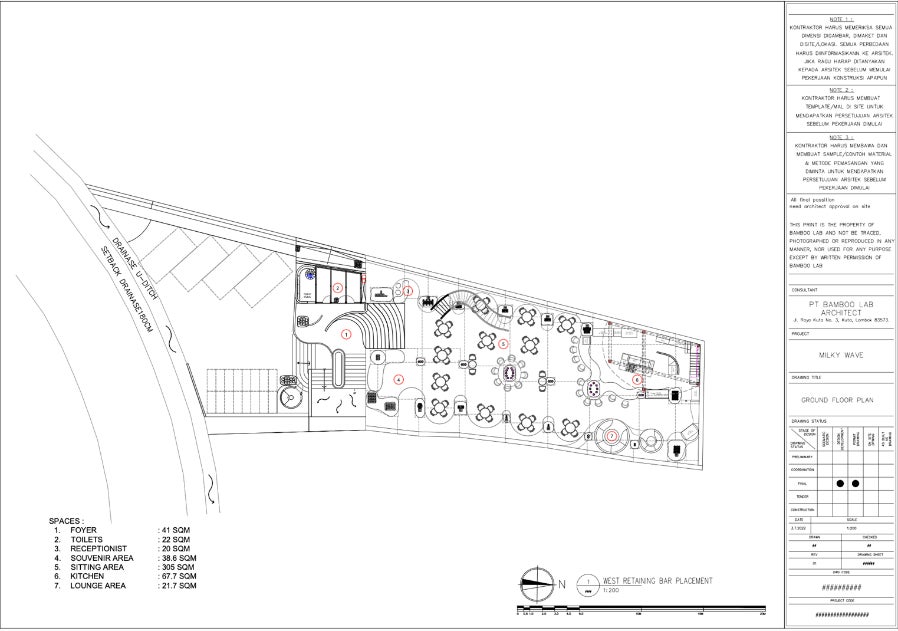
● Milky Wave 建築概要
総面積: 800㎡ (土地)
バンブー建築エリア: 1F 453㎡ 2F 223㎡ エントランス 63㎡ 総バンブー本数:5000本


地域の環境資源を活かし、リゾート地として開発されるロンボク島の観光産業へも大きな役割も担っている。



バンブー建築を日本の沖縄に確立することを目指す
日本で成長したバンブーを現地の工場で加工し建材にしたものを、日本の建築に幅広く利用してもらうために、ここロンボク島で得たノウハウと経験を日本の中でも確立していく想いがあり、そのスタートとして2024年には沖縄エリアでのバンブー建築実績を目指しております。
運営会社 PT. Bamboo Lab Architect
Jl. Mawun, Sengkol, Kec. Pujut, Kabupaten Lombok Tengah, Nusa Tenggara Bar. 83573
satoki@bamboolab-arch.com
情報提供:株式会社ロンボク島
https://lombok-landbanking.com/
すべての画像
