宿泊、インテリアサロン、ショップを備えた 約170坪のカーペット体感施設「CARPETLIFE BASE」創設
来年夏頃グランドオープン、今年4月メルマガ「ひつじばこ」発行開始

当社では、カーペットの気持ち良い暮らしを未来に残すべく、さまざまな試みを行なっています。ファッションのエッセンスをインテリアに取り入れたウールラグ「COURT」、簡単に床をつくれるDIYカーペット「WOOLTILE」といった気軽にカーペットを楽しめるブランドを立ち上げ、直接手に取っていただける機会の創出、公式サイトでのWEB連載「CARPET LIFE」などを通して、カーペットがある暮らしの魅力を積極的に発信してまいりました。
しかしながら、カーペットは「体感」してこそ、初めて魅力が伝わるもの。この度スタートするプロジェクトでは、私たちのカーペットの魅力である「気持ちよさ」や「空間における質感」を感じていただける取り組みを行なっていきます。
第一弾として来年4月オープンの「CARPETLIFE BASE」では、カーペットの体感にとどまらず、暮らしを構成する建築材料や商品との出会い、そして、そこから様々なインスピレーションを得られる3つのサービス(宿泊、インテリアサロン、ショップ)をご提供。その完成に先駆けて、工事進捗やそこで得られる体験や魅力をお伝えするメールマガジン「ひつじばこ」の発行を今年4月に開始します。8つの形容詞をもとにお届けしていくこのメルマガは普通のものとは少し違い、音声やビジュアルだけの回、小説が届く回もあるかも知れません。開けるまでは何が入っているか分からない、お楽しみボックスのように、ワクワクしながら到着をお待ちいただける内容を目指しています。
CARPETLIFE BESE 概要

・開業予定:2024年夏頃
・ご提供するサービス
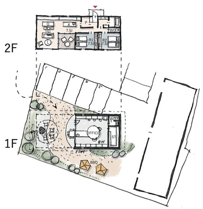
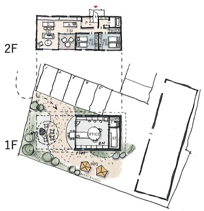
宿泊(2階)、インテリアサロン(1階)ショップ(別棟)*詳細は次項ご参照
・所在地:大阪府和泉市阪本町162
・面積: 土地 約170坪、建築面積 約40坪、既存倉庫 約42坪
・建築家: MMA.,inc 工藤桃子氏
・メールマガジン「ひつじばこ」2023年4月より2ヶ月に1回程度発行
登録フォーム(https://hdc.co.jp/carpetroom/)
CARPETROOM BASE でご提供するサービス
1. 宿泊(2階)
一面にウールカーペットを敷き込んだお部屋(約90m2/ 1室・1名~6名宿泊可能)に宿泊いただけます。
見て、踏んで、寝転んで、カーペットのある暮らしを体感できるのはもちろん、そこで使用するカーペット以外のさまざまな建築材料についても、お部屋を通してその味わいを感じていただけます。食器、家電、水回りの消耗 品などの日用品から空間を彩るアートワークまで、いわゆるホテルとしての佇まいだけでなく、より「暮らし」に近い場所を目指したスタイリングとなる予定です。
2. インテリアサロン(1階)
インテリアサロン、そして、宿泊場所で使用する建材を中心としたショールームをご用意。施主様が、インテリアコーディネーターや建築家・工務店に話をする前に、ご自身の目指すイメージの具体化をお手伝いする場を目指しています。これから空間づくりを始められる施主様に、「マテリアルとカラーボード」の作成サービスを行ないます。「物」として「見る」だけのショールームにとどまらず、各素材について深く学んだ専門スタッフが「施工」に関して細かいアドバイスを提供いたします。
3. ショップ(別棟)
宿泊を通して実際に手に取りご体感いただいた食器や水回り用品を販売いたします。また、カーペット端材を「生地」として販売し、その場でご要望のサイズにカット、ラグ加工を施しお持ち帰りいただくこともできます。
その他
定期的にワークショップやカーペットの工場見学ツアー、大阪南部に製造背景をもつ包丁や注染(ちゅうせん)手ぬぐいの見学ツアーなども準備中です。
建築家プロフィール

工藤桃子(くどうももこ)/ 一級建築士 / MMA Inc. 代表取締役
東京生まれ、スイス育ち。多摩美術大学環境デザイン学科卒、松田平田設計勤務のち工学院大学藤森照信研究室修士課程修了。2016年MMA Inc. を設立。建築設計のほか、ショップやレストランなどのインテリアデザイン、展覧会の会場構成も手掛けている。2020-2022年多摩美術大学非常勤講師。
堀田カーペット株式会社について
1962年創業。繊維産業の街として栄えてきた大阪府の泉州地域に本社工場を持ち、現在では国内に数社しか残っていないウィルトン織機にて高品質のウールカーペットを製造しているウールカーペットメーカーです。
高級ホテルやラグジュア リーブランド店舗、個人住宅などの敷き込みカーペットを製造し、敷き込み用ウールカーペット 「woolflooring」、ウールラグ「COURT」、DYI カーペット「WOOLTILE」などを展開。カーペットの市場が減少する中、「カーペットを暮らしの文化の一部にする!」をビジョンに、ものづくりを続けるとともに、カーペットの暮らしを伝える活動をしています。

・代表取締役社長:堀田将矢
・所在地
本社工場 〒594-0065 大阪府和泉市観音寺町 531 番地
中津工場 〒644-1111 和歌山県日高郡日高川町船津 1211
・従業員:33 名
・オフィシャルサイト:https://hdc.co.jp
このプレスリリースには、メディア関係者向けの情報があります
メディアユーザー登録を行うと、企業担当者の連絡先や、イベント・記者会見の情報など様々な特記情報を閲覧できます。※内容はプレスリリースにより異なります。
すべての画像
