Grow Community、多様なコミュニティが共存できる新オフィスへ移転
”自由と多様性”をコンセプトに社内で新しいイノベーションを起こし続けられる持続可能な空間づくり。
リスキリング(再教育)サービス「Tech Grow Up」等を運営するGrow Community株式会社(愛知県名古屋市、代表取締役:加藤真太郎)は、事業拡大に伴い名古屋市中区丸の内の新オフィスへ移転し、2022年9月1日より営業を開始したことをお知らせいたします。


- 新オフィス空間、3つのテーマ
また、当社は年齢や役職等に関係なく、一人ひとりプロフェッショナルであることを求めるフラットな組織(コミュニティ)であるとともに、自由や多様性をとても大切にしています。デジタル技術の進展で物理的な距離や言語の壁を越えて、さまざまな方達との交流も容易になりました。一方でデジタル技術は、フィルターバブルやエコーチェンバーといった現象を引き起こしコミュニティ間のつながりを断ち、コミュニティの分断を深める方向にも作用しうることだと思います。こうした時代の中でオフィスや働き方を業務効率だけで考えたり、デジタル技術だけに頼るのではなく、一人ひとりが自由に創造性を高められ多様な考えを持ち当社のミッションの実現に向けて歩んでいける組織になることを目指します。
この目的を達成するため、新オフィスのテーマを次の3つに設定いたしました。
1.オープン&フラット
フリーアドレスのオープンなスペースはコミュニケーションを促進させ、一人ひとりにとっても組織にとっても知識を獲得する大切な下地になります。また、年齢や役職に関係なくフラットであることは、組織の成長スピードを加速させます。
2.多様性(ダイバーシティ)
フェイス・トゥ・フェイスの対話から共感が生まれたり意識的に交流を生み出しやすいワークスペースで、各事業間の業務関連度や物理的距離を超えた異属交流を推奨し、組織が活性化する状態を導きます。全社員がそれぞれ双方向のコミュニケーションの頻度を高め、相互協力が行われている状態を目指してまいります。
3.健康(ウェルネス)
健康という枠の中でも当社は特にウェルネスという考え方を意識し大切にしています。ウェルネスとは『輝くように生き生きとしている状態』のことを言います。心身の健康は、生活の質に直結します。心身のどちらか、あるいは両方に不調があれば満足できる活動が難しくなり、仕事面への影響が出る方もいるかもしれません。新オフィスでは働く社員一人ひとりが輝くように生き生きと働ける状態を目指します。社員同士の接点を多目的につくり、所属意識や居場所を感じられる空間であることで個々の価値観の共有や信頼が相互に生まれ、働きがいの土台となる健康を心身ともにサポートします。
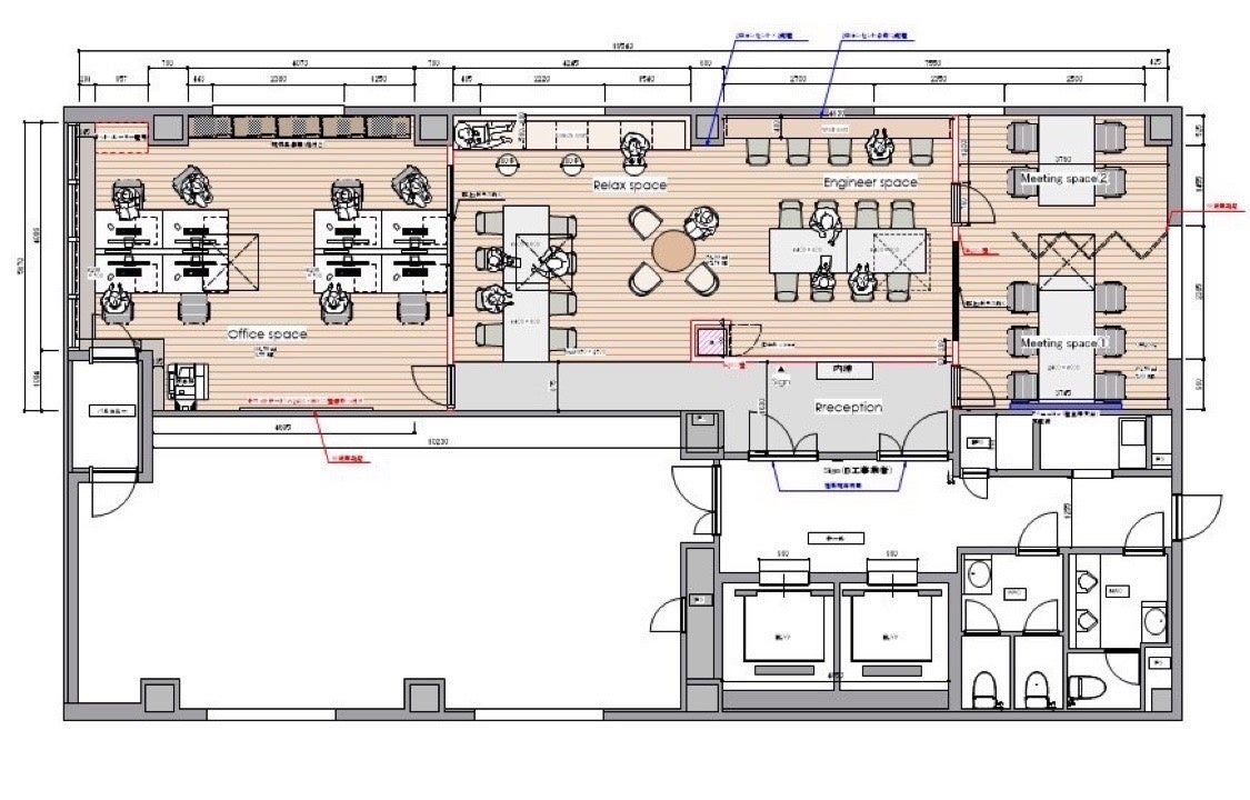
- テーマに沿ったエリア設計

フリースペース
フリースペース
会議室&ミーティングルーム
会議室&ミーティングルーム
- グロウコミュニティの見据える未来
このプレスリリースには、メディア関係者向けの情報があります
メディアユーザーログイン既に登録済みの方はこちら
メディアユーザー登録を行うと、企業担当者の連絡先や、イベント・記者会見の情報など様々な特記情報を閲覧できます。※内容はプレスリリースにより異なります。
すべての画像
