若手クリエーター限定・制作スペース付シェアハウス「三鷹ヴィレッジ・森のアトリエ」第一期メンバー(入居者)募集を開始(2026年4月入居)
若手クリエーターのスタートアップを支援します!

特定非営利活動法人三鷹ネットワーク大学推進機構(所在地:東京都三鷹市、理事長:鈴木典比古、以下「三鷹ネットワーク大学」という。)は、三鷹市が寄贈を受け、現在、改修整備中の土地・建物を活用し、シェアハウスと地域交流施設が一体となった「三鷹ヴィレッジ・森のアトリエ」を開設します。
この施設は、若手クリエーター限定の制作スペース付シェアハウス(全6室、3棟×各2室)で、今回、その第一期メンバーとなる入居者の募集を開始します。
応募期間は2026年2月17日(火)から3月22日(日)まで。家賃は月額27,000円〜30,000円、共益費13,000円(水道光熱費・インターネット代含む)で、仲介手数料は貸主である三鷹ネットワーク大学が負担し、また、2026年4月分は家賃・共益費が無料となります(入居開始は4月18日~)。
この事業は、若手クリエーターのスタートアップ支援とクリエーターや地域住民の交流等を通じた地域活性化を目的とし、三鷹市が所有する土地・建物を、貸主となる三鷹ネットワーク大学が無償で借り受け、市からの公的支援を受けて運営するものです。
「三鷹ヴィレッジ・森のアトリエ」の特徴・魅力
「暮らす」「つくる」「つながる」をコンセプトに、若手クリエーターの住環境・創作環境と地域交流施設を備えるスタートアップ支援の拠点です。
■立地
JR三鷹駅徒歩15分、JR・京王井の頭線吉祥寺駅徒歩17分と新宿や渋谷へのアクセスが良く、井の頭恩賜公園にほど近い閑静な住宅地
■家賃
クリエーターの経済的負担を軽減するリーズナブルな家賃
■交流
次世代を担う若手クリエーター同士の居住者交流や、併設する地域交流施設での地域との交流
■日常支援
コミュニティ・コーディネーター(管理人)が、併設の地域交流施設に週5日常駐し、入居者からの相談対応やシェアメイト・地域とのコミュニケーションを支援するなどシェアハウス生活をサポート
■活動支援
各シェアハウス棟に、創作活動で汚しても良い共用の創作活動室を用意するとともに、一定の条件下で併設の地域交流施設を創作活動や作品発表等に利用可能




説明会・OPEN HOUSE・個別内見のご案内
いずれも特設サイトからのお申し込みとなります。※日時は全て2026年
■説明会
【日時】
2月14日(土)13:30〜15:00
【会場】
三鷹ネットワーク大学(三鷹市下連雀3-24-3三鷹駅前協同ビル3階)
【定員】
30名(事前申込制)
※工事中のため物件の内見はできません。
■OPEN HOUSE
開催期間中(10:00〜16:00)は予約なしでも内見可能
【日時】
3月13日(金)・14日(土)10:00〜16:00
【会場】
現地(三鷹市下連雀1-31-21・22)
【案内ツアー】
スタッフが併設の地域交流施設等も含めてガイドします。
10:00〜11:00/14:00〜15:00
※各回定員5名程度、事前申込制
■個別内見
【期間】
3月7日(土)〜21日(土) ※日・祝日を除く
【時間】
個別に調整
入居申込方法
原則として、説明会に参加又は物件見学(内見)を終えた方に、入居申込方法を個別に案内します。
物件概要・募集概要

|
名称 |
三鷹ヴィレッジ・森のアトリエ |
|---|---|
|
所在地 |
東京都三鷹市下連雀一丁目31番21号・22号 |
|
種類 |
シェアハウス(全3棟) |
|
募集室数 |
全6室(各棟2室×3棟/1室1名)※部屋指定不可/部屋割りは貸主が決定 |
|
アクセス |
JR三鷹駅 徒歩15分、JR・京王井の頭線吉祥寺駅 徒歩17分 |
|
家賃 |
月額27,000円〜30,000円(部屋により異なる) |
|
共益費 |
月額13,000円(水道光熱費・インターネット利用料含む) |
|
初期費用 |
【保証金】30,000円 ※退去時にクリーニング費用として全額償却 【敷金・礼金】なし 【仲介手数料】なし(貸主負担) |
|
フリーレント |
2026年4月分の家賃・共益費は無料 |
|
契約形態 |
定期借家契約(3年間)※更新なし/再契約はヒアリング審査の上1回まで |
|
主な設備 |
【共 用 部】創作活動室、キッチン、浴室、温水洗浄トイレ、エアコン、電子 レンジ、照明、冷蔵庫、洗濯乾燥機、インターネット 【専用個室】鍵、クローゼット、エアコン、照明、ベッド、インターネット |
|
応募資格 |
・年齢が30代前半までの単身の方 ・クリエーティブな活動を生業とすることを目指している方 ・ポートフォリオなど活動実績が確認できる資料を提出できる方 ・地域活動(町会などの地域団体が主催する活動)への参加意欲がある方 等 |
|
入居者選定 |
先着ではなく選考により入居者を選定 |
|
応募期間 |
2026年2月17日(火)〜3月22日(日) |
|
入居可能日 |
2026年4月18日(土)以降(〜5月31日(日)までの期間内に入居) |
|
その他 |
その他、詳細については特設サイトをご覧ください。 |
■施設の配置イメージ

■シェアハウス棟の間取り A棟(左側・1F 右側・2F)


■シェアハウス棟の間取り B棟(左側・1F 右側・2F)
※B棟は同じ間取でもう1棟あります。


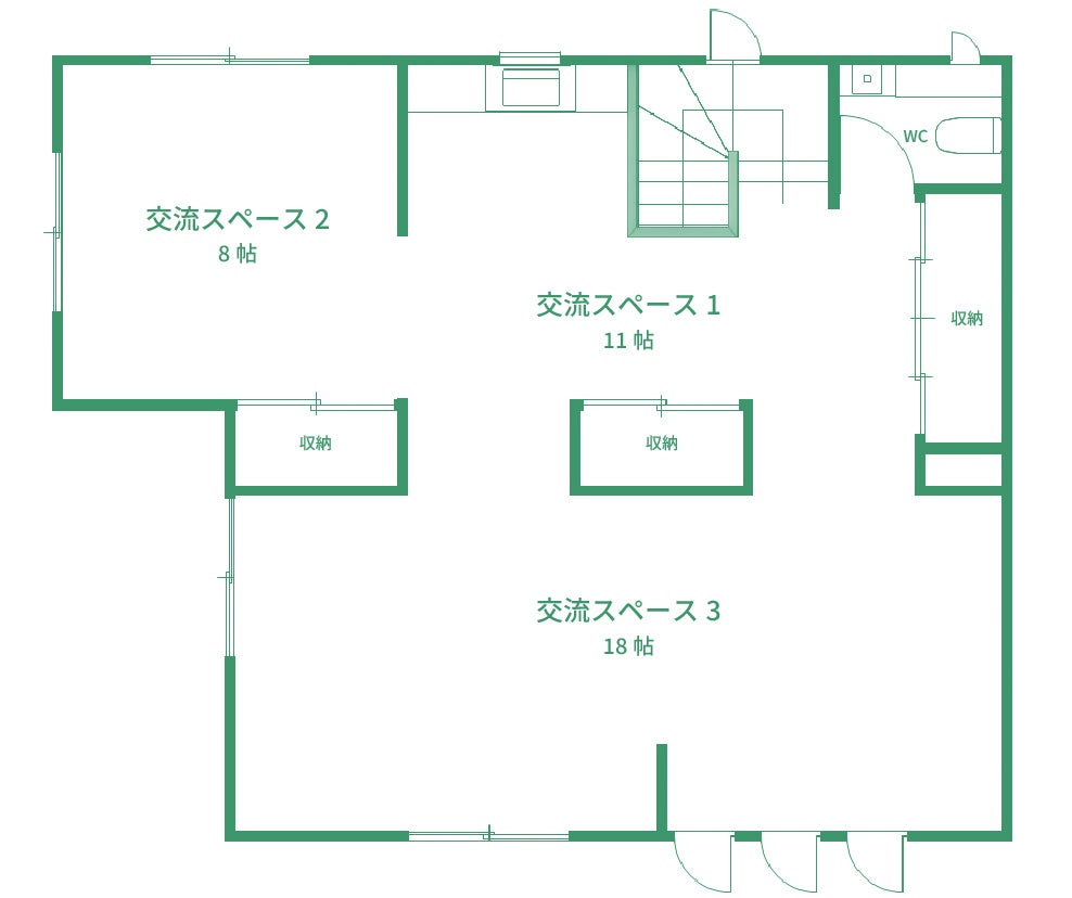
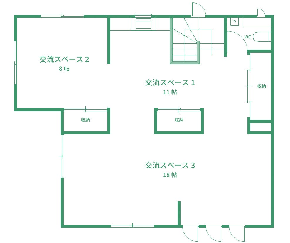
■併設の地域交流施設の間取り(左側・1F 右側・2F)


本事業の背景・経緯
三鷹市は2023年に、以前市に住んでいた方から「地域のために活用して欲しい」との意向で土地と家屋の寄贈を受けました。
周辺エリアには、三鷹市立アニメーション美術館(三鷹の森ジブリ美術館)や山本有三記念館をはじめ芸術・文化関連施設等が数多く所在していることなどから、将来を担う若手クリエーターを支援し、地域との交流を通してまちの活性化につなげることを目的とし、寄贈を受けた物件を、若手クリエーターのスタートアップを支援するシェアハウスと地域交流の場としての機能を持つ施設として整備することとしました。
施設の運営に当たっては、三鷹市が所有する土地・建物を三鷹ネットワーク大学が無償で借り受け、事業の運営主体及び貸主となって、市からの公的支援を受けて運営します。
本事業は「共に創り、共に育てる」を合言葉に、地域住民や居住者となる若手クリエーターが主体的に施設運営や事業に関わりながら、日々の交流と活動を積み重ねて成長していく場を目指します。
団体概要
【団体名】
特定非営利活動法人 三鷹ネットワーク大学推進機構
【代表者】
理事長 鈴木 典比古
【所在地】
〒181-0013
東京都三鷹市下連雀3-24-3三鷹駅前協同ビル3階
【電話】
0422-40-0313
【開館時間】
火曜日~土曜日 9:30~21:30(入館は21:00まで)
日曜日 9:30~17:00
【休館日】
月曜日、祝日、年末年始
【設立】
2005年8月
【事業内容】
民学産公の協働の取組による高度な学びの提供、地域に根差した産業の支援・創出、協働のまちづくりの推進
【公式HP】
本リリース、および当団体に関するお問い合わせは、下記メールアドレスへお願いいたします。
【問い合わせメールアドレス】
mvma@mitaka-univ.jp
このプレスリリースには、メディア関係者向けの情報があります
メディアユーザー登録を行うと、企業担当者の連絡先や、イベント・記者会見の情報など様々な特記情報を閲覧できます。※内容はプレスリリースにより異なります。
すべての画像