災害や脅威に備える暮らしの「防犯」・「防災」にシェルター付地下室住宅『SAFeREE MODEL』(セーフリーモデル)発表
当社の注文住宅ブランド「フローレンスガーデン」では、今日まで1,200戸以上の地下室付き住宅をお引渡ししてきました。その豊富な経験と特殊な施工技術を活かし、今回ご提案する「SAFeREE MODEL」は、従来からの「快適さ」はそのままに、新たに「安心・安全」という要素を融合させた新しい住まいのかたちです。

SAFeREE MODELは、単なる住まいではなく、マイホームをより安心で安全な場所として暮らせるよう自助(自己防衛)能力を高めた居住空間として考えられた住まいです。いつ起こるかわからない災害や犯罪に備えるために、私たちが提案するライフスタイル、それが「在宅避難」。地下階や、屋上階を含めて住宅全体で自己防衛していくという考え方です。

特徴①「SAFEゾーン」 災害時でも慌てることなく、安全を確保。
当社が供給してきた「地下室」はもとより耐震性に優れ温度の変化が少なく、避難所に適していることから、シェルター機能を取り入れることで危険を回避する独立したスペースを確保することができます。
大雨などの災害時には、屋上を一時的な避難スペースとして活用。お子様やお年寄りでも移動しやすいため、災害の経過を見ながら適切な対応ができます。
地下室(シェルタースペース含む)イメージ
耐震性、耐風性、気密性に優れたフローレンスガーデンで採用している2×6(ツーバイシックス)工法に加えRC構造の地下階を取り入れ、また屋上階を設置し、あらゆる避難方向を確保することで、住まい全体の災害対応力を高めます。
また、ドライエリア部分においては、陽当たりや風の通り道となることで、通常時の地下部分の快適性を高め、また有事の際の避難経路として利用することができます。
また、防犯に対する備えとして、ホームセキュリティ機能(オプション)を加えることで、不意の侵入者などから大切な財産や命を守ります。
空気ろ過フィルター

特徴②「FREEゾーン」 日々の暮らしは愉しく、多彩に演出。 ☆当社最大の特長
日常生活から独立した空間を生み出す地下のプラスα空間は防音性に優れ、ホームシアター、仕事部屋、音楽室、書斎、また一定温度が保てる事からワインセラーなどに最適です。家族のライフスタイルに合わせて様々な活用が出来ます。1200戸以上の実績を誇る当社ならではの経験で、あらゆる空間提案を実現いたします。

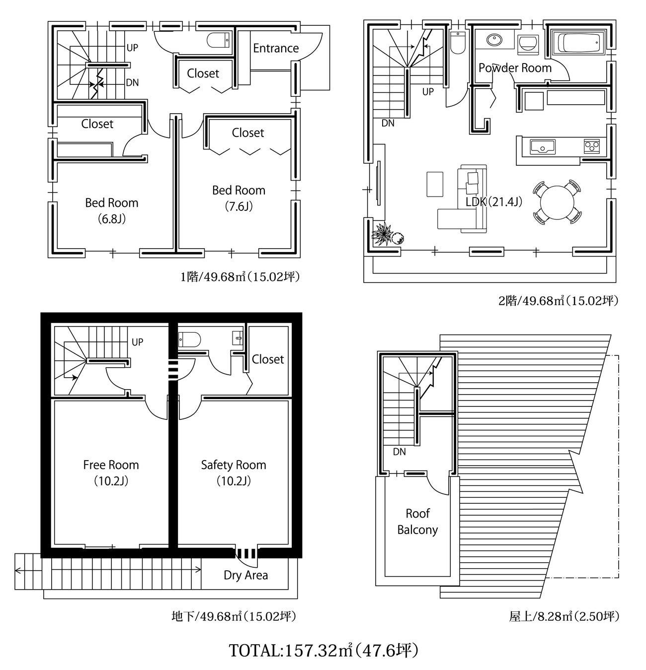
「SAFeREE MODEL」の基本設計(地上2階建+防災シェルター付地下室プラン)
■地上2階建+防災シェルター付地下室参考プラン
風当りの良い2階リビングを基本設計として、1階のLDKは家族のプライベート空間に。そして地下室を+αのゆとり空間と災害に対応したシェルター空間を設ける基本設計を構築しています。

■地下シェルター基本スペック参考プラン
フリーゾーンとセーフゾーンが続く基本プランです。テレワークやホビールームなど+αの空間でありながら、厚いコンクリート壁や扉、空気ろ過フィルターも装備し、もしもの災害の事態に対応するセーフゾーン(シェルター部)を設置します。


地上設置型防災核シェルター「CRISIS-01」を展示中。
当社では、屋外でも有事に備えるための地上設置型防災核シェルター「CRISIS-01」を展示中です。屋外に設置するシェルターで自動車1台分程度のスペースがあれば設置可能です。特殊ろ過フィルターの搭載や鉛板で覆われた構造により、放射性物質やウイルス感染症などから身を守る事が可能です。普段は書斎やテレワークスペース、離れの子供部屋として使用できます。当商品は弊社敷地内にて随時、ご見学いただけます。


様々な災害・防犯対策が注目される昨今、日常の暮らしにより安心・安全な空間をご検討されてはいかがでしょうか。
【会社概要】
会社名 工藤建設株式会社(東証スタンダード市場)
住所 神奈川県横浜市青葉区新石川4-33-10
アクセス 田園都市線・横浜市営地下鉄ブルーラインあざみ野駅から徒歩15分
東急バス新石川2丁目バス停から徒歩3分
TEL 045-911-5300 (代表)
営業時間 8:30〜17:30
資本金 8億6,750万円
設立 1971年7月
事業内容 建設事業、注文住宅事業、建物管理事業、介護事業
ホームページ https://www.kudo.co.jp/(コーポレートサイト)
https://www.florence-garden.com/(注文住宅「フローレンスガーデン」サイト)
このプレスリリースには、メディア関係者向けの情報があります
メディアユーザー登録を行うと、企業担当者の連絡先や、イベント・記者会見の情報など様々な特記情報を閲覧できます。※内容はプレスリリースにより異なります。
すべての画像
