海と空に溶け込む空間体験 MAAD株式会社が設計デザインを手掛ける「鎌倉Attention」開業
~築18年の木造住宅をハウススタジオにアップデート~
「外の世界や環境とのリズム 流れる空気や光 空間で得られる体験」を提案するMAAD株式会社(本社:東京都豊島区 代表取締役 村木 計)は、神奈川県鎌倉市七里ガ浜に「鎌倉Attention」を設計デザインいたしました。湘南の海を一望し、日常、非日常さまざまなシーンで活用できる撮影用ハウススタジオとして、利用を開始しています。

「鎌倉Attention」 -海と空に溶け込む空間体験-
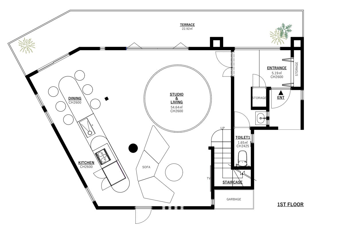
七里ヶ浜の砂浜から徒歩1分。一見無機質な白い箱のようにみえるこのスペースは、窓が海に向かって大きく開き、目の前に広がる青い海や空とのつながりを感じる空間です。
早朝の静かな時間帯は、空間に優しい青が広がり、夕暮れ時には、夕陽の柔らかな金色に包み込まれます。太陽が沈み明かりを灯せば、ふんわりと眠りを誘うような温かみのある空間となります。
スタジオとしての機能を兼ね備える為、全体に光が回る白色と、シチュエーションに合わせられる照明を計画しました。
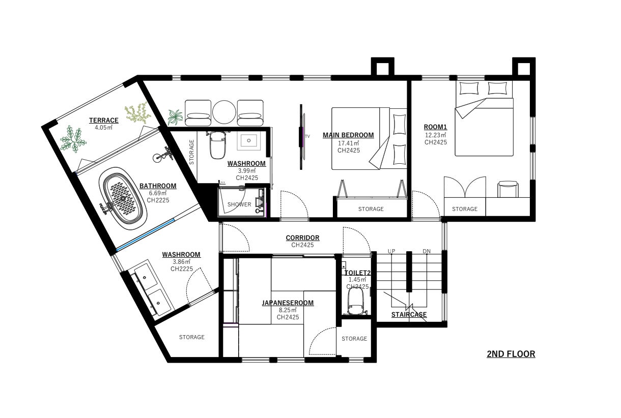
鎌倉の初夏の象徴であるあじさいの小道のような青い部屋や、歴史ある鎌倉の神社仏閣を連想できる和室空間も備えています。多くの人が訪れる七里ヶ浜の場所で、豊かな時間や季節の移ろい、日本の伝統文化を感じながら過ごす時間を提案します。







▼物件概要
住所:神奈川県鎌倉市七里ガ浜2丁目
アクセス:江の島電鉄「鎌倉高校前駅」より徒歩3分



「鎌倉Attention」のご予約やお問い合わせは、下記リンクよりご連絡ください
HP:https://www.attention-studio.com/
Instagram:https://www.instagram.com/attention.st/?igsh=MXVibHE3dHRxdmthMg%3D%3D
▼物件詳細はこちら(MAAD株式会社 WORKS)
https://maad.co.jp/works/KA
▼オーナーコメント
この物件は、鎌倉・七里ヶ浜という立地がとても好きだったため購入しました。物件の魅力である「採光の良さ」と「ロケーション」を活かすため、ハウススタジオにしました。
MAAD株式会社にお願いした理由は、過去の事例の雰囲気がとてもよかったからです。また、初回打ち合わせの印象がとてもよく、費用も明確でしたので、安心感がありました。契約後の対応も、スムーズかつスピーディーでした。仕事というより、ひとつの作品として仕上げようとする姿勢を感じました。工事が終わった後も、色々な面で相談に乗ってもらえており、感謝しています。
▼MAAD株式会社とは
外の世界や環境とのリズム 流れる空気や光 空間で得られる体験
2012年に建築家・一級建築士である村木計の個人事務所として創業。2023年11月、MAAD株式会社を設立しました。「外の世界や環境とのリズム 流れる空気や光 空間で得られる体験」をコンセプトに、様々な角度からイメージを広げ、ありたい姿を建築として表現し、そこで過ごす人や地域、社会と共にあり続ける空間を提供しています。これまでに、商業施設、飲食の店舗、ホテル、オフィス、投資ビルから、個人宅、別荘等の企画、デザイン、設計、ブランディングなど450件を超える案件を手掛けており、近年では国内のみならず海外からのオファーも増加しています。
▼企業概要
株式会社MAAD
代表取締役(建築家・一級建築士):村木 計
創業:2012年4月
設立:2023年11月
公式HP:https://maad.co.jp
Facebook:https://www.facebook.com/people/MAAD_Muraki-Architecture-and-Design/100057239867996
Instagram:https://www.instagram.com/maad.incjp
LinkedIn:https://www.linkedin.com/company/maadincjp
note:https://note.com/keimuraki
▼建築家・一級建築士 村木計の略歴
1983年神奈川県生まれ、幼少期はメキシコやスペインに在住。慶應義塾大学大学院在籍中に隈研吾研究室に所属、師事。2008年、WORLD Space Creators Awards 2008 優秀賞を受賞。修士論文のテーマは、ポストモダンを考える - 建築家 ジャン・ヌーベルの詩学に関する分析 “A to Z” -。慶應義塾大学大学院 修士課程修了後、2012年村木計建築計画事務所を創業。2023年11月に法人化、MAAD株式会社を設立し、代表取締役に就任。
本リリースに関するお問い合わせ先
MAAD株式会社 E-mail:pr@maad.co.jp TEL:03-6914-1217
すべての画像
