Klasel(クラゼル) 狭いお部屋でも充実【122cmのペニンシュラキッチン】お料理を楽しめる新しいキッチン
創業から60年以上キッチンの販売をしているイースタン工業㈱(埼玉県戸田市)から狭小住宅向けペニンシュラキッチンが発売されました。
2025年9月17日18日に開催されたリフォーム産業フェア2025にて出展したペニンシュラキッチンを紹介いたします。

対面式のペニンシュラキッチンは比較的大きなLDKなどに採用されることが多く、狭いお部屋=I型のコンパクトキッチンを設置せざるをえませんでした。そこ当社では、そのコンパクトキッチンに合わせた対面式のワークトップを合わせる事で狭いお部屋でも設置可能なペニンシュラキッチンを製作いたしました。

Klasel-122(R/L) 定価535,200円+税
※本体、シングルレバー混合栓、2口IH、レンジフードを含みます。
〇広々ワークトップ
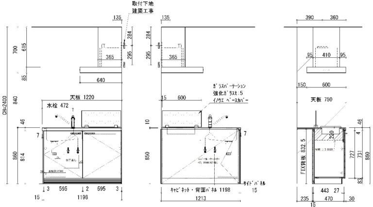
ワークトップは間口122cm奥行き75cmでシンクスペース、IHスペース、テーブルスペースを備えます。

シンクスペース⇒洗い物
調理スペース⇒お料理や下拵え
テーブルスペース⇒食事、下拵え
テーブルスペースも「おまけ」の奥行きではなく、約23cmの深さを持つスペースを空けています。


足を置くまで入れてもこぶし一つ分が空きますので(180cmの男子です)二人が並んで入っても調理はもちろん。デスクとしてもお使いいただけます。
13インチのノートPCを置けて、ノートを広げても余裕があります。


ただお料理をするだけの場所ではなく、生活の中で過ごす一つのスペースを提供します。
〇少し大きめシンク
コンパクトサイズキッチンは狭いお部屋にお勧めですがシンクは少し小さめ・・・幅40m奥行き30cmくらい。

単身世帯であればこれでも大丈夫かもしれませんが、お皿の他にもコップなどを入れたらあっという間にいっぱいに・・・
クラゼルのシンクは幅43cm奥行き36cmで少し大きめにしました。
お皿を置いても少し余裕があります。

洗い物がしやすいちょうどいい大きさに仕上げました。
〇横型2口IHクッキングヒーター搭載
コンパクトキッチンの加熱機器はあたりまえのように1口IHです。これは通常の2口では最低でも奥行きが55cm必要な為、致し方ない事・・・

お湯を沸かしながら調理を楽しむことは不可なので、一つの作業しかできません。
クラゼルのIHはもっと調理を楽しんでもらうために横型のIHを標準装備しました。

一つはお湯を、もう一つで調理も可能ですが、IHなので使っていないところにも置いておけます。
IHをしっかり覆えるガラスパーテーションを備えておりますので、テーブルスペースに汚れが行きません。

〇広々収納スペース

観音扉にすることで、キッチン内部はとても広々。
4本差しの包丁差しを備えております。

〇対面式専用レンジフード

フジオー社製レンジフードで、高さ70cmと55cmをご用意してます。
2口IHの場合は十分な排気能力を要求されますが、パワフルな排気で室内を清潔に保ちます。
本体高さ86cm+レンジフードの離隔距離80cm(仮定)+レンジフード高さ70cmで総高さ236cmの他に、レンジフード高さ55㎝仕様もございますので総高さ221cmに対応しております。
※離隔距離は設置予定の自治体でご確認ください。

イースタン工業は埼玉県戸田市を中心に関東圏のアパートやマンション、非住宅向けにキッチンや家具を製造販売している会社です。
<お問合せ先>
イースタン工業株式会社
埼玉県戸田市美女木北3-10-5
問い合わせフォーム https://www.eastern-k.com/contact/
ホームページ(2025年4月更新予定)
すべての画像
