沖縄・石垣市 “泥”をコンセプトにした高級一棟貸し別荘「deigo-泥娯-」|2022年9月1日(木)グランドオープン
LIBLES HOUSE × goyemon による宿泊施設プロジェクト。
LIBLES GROUP株式会社(本社:東京都千代田区、代表取締役:平間 健太)は、宿泊施設事業LIBLES HOUSEを発表。第一弾として「日本の伝統×最新技術」をコンセプトに商品を創りだすブランドgoyemon(ごゑもん)とコラボし、沖縄県石垣島に一棟貸し別荘「deigo-泥娯-」を2022年9月1日(木)にグランドオープン致します。
- LIBLES HOUSE
2020年に発足し、以降ライフスタイル事業を展開するLIBLES GROUP inc. による宿泊施設事業。その他、飲食店事業やスポーツジム事業を運営。
建築業界とあまり関わりの少ないアパレルブランドやアーティストなどと共創し、新たな価値を創造する宿泊施設ブランドです。
本プロジェクトが第一弾コラボとなり、今後その他アーティストとのプロジェクトも進行中です。

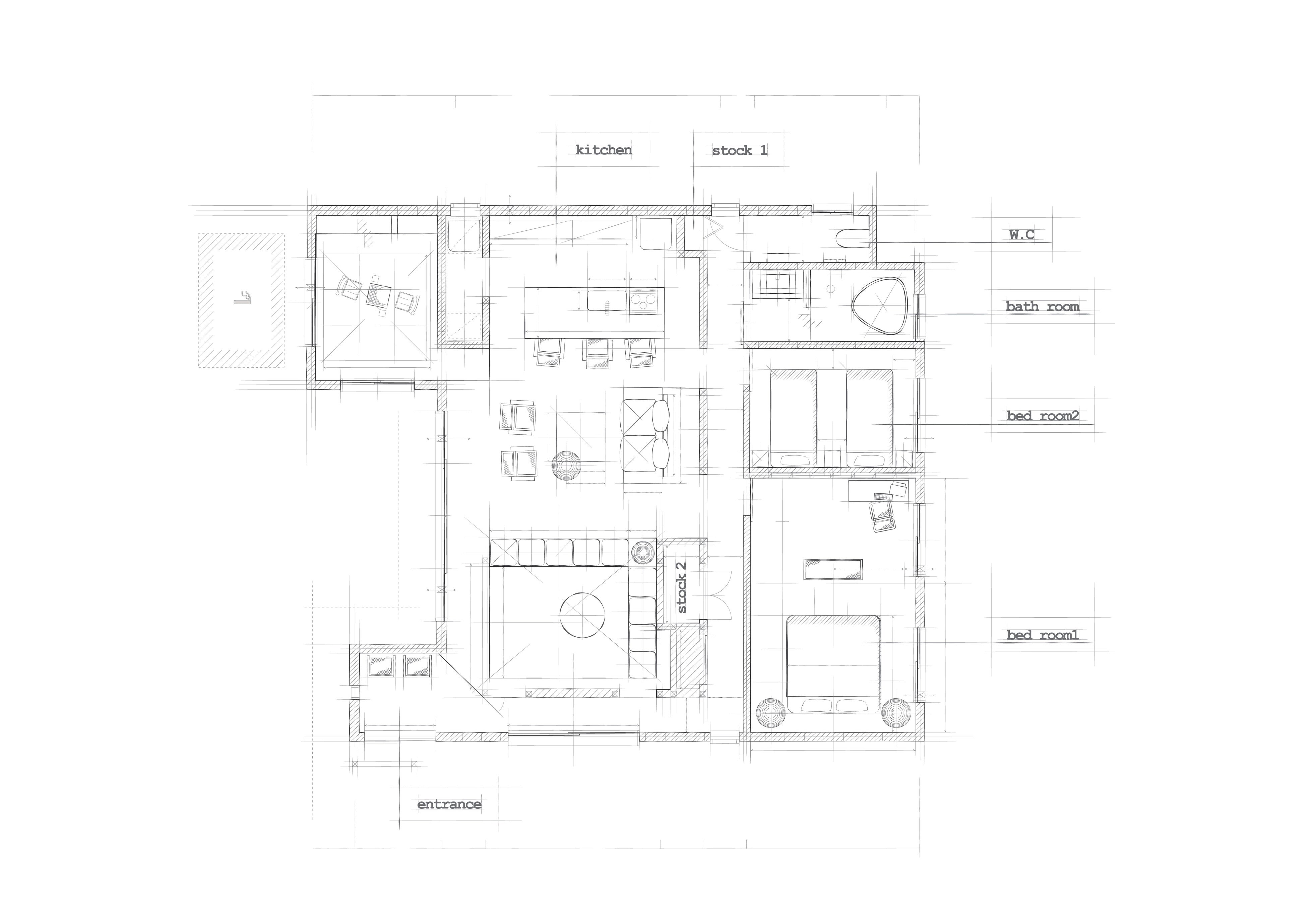
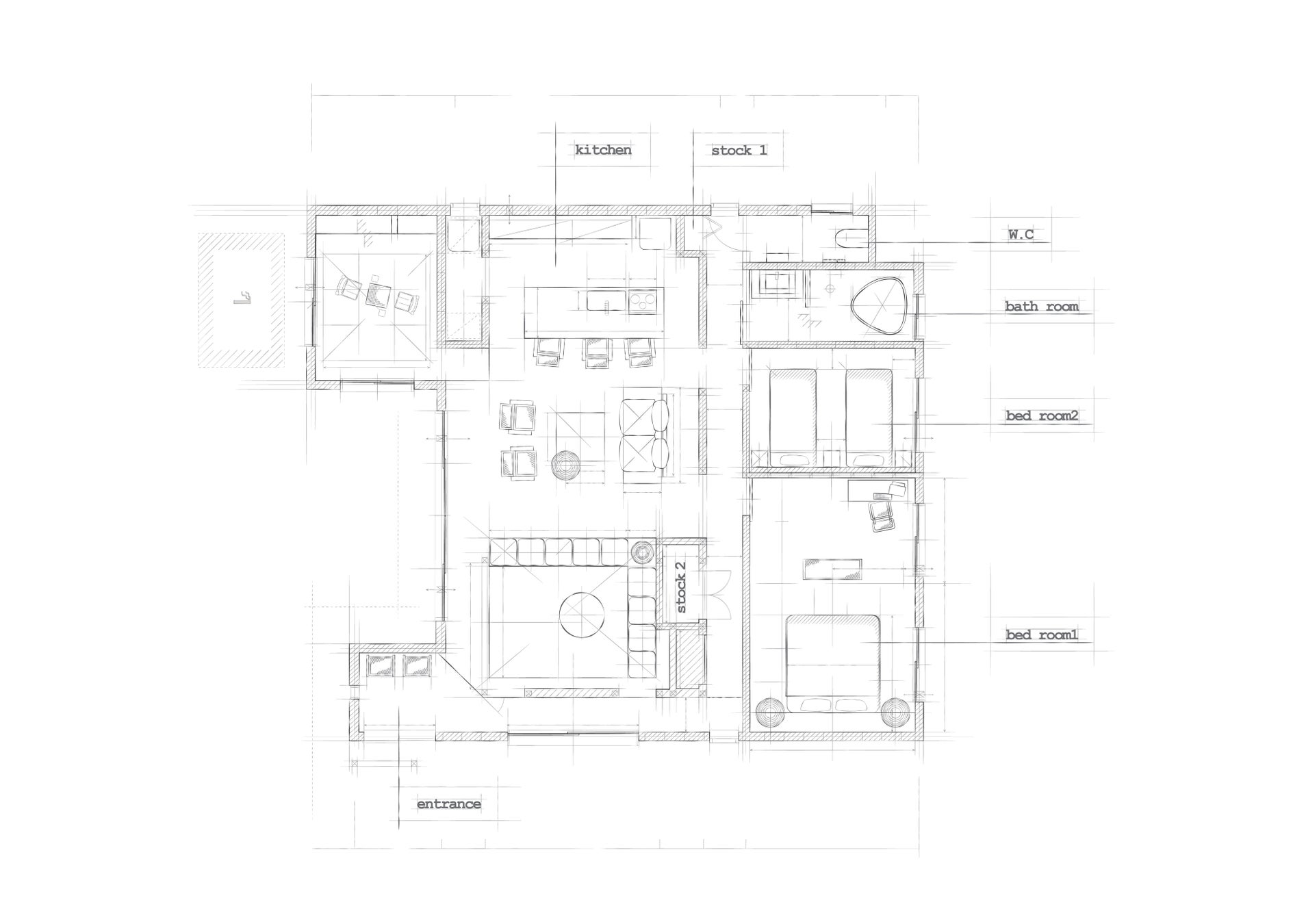
一棟貸し宿「 deigo -泥娯- 」
市街地のほど近くに位置する琉球造りの平家を改装した一棟貸し宿。
海を見ながらのんびりするのも良いけれど、宿にこもってこだわりの家具や建築を楽しみながら “時間” を体感する。そんな新しい石垣の歩き方の提案します。
琉球王国時代に現在の様式に発展したとされる沖縄の伝統的琉球建築。
様式や素材・技術などで他地域の日本建築との類似点が多く見られるが、風土・社会・資源等の面で異なる為に独自の発展が見られます。そんな琉球建築をgoyemon流に解釈し、再定義。
紐解くと「土(泥)」に行き着きました。
“ 泥を娯しむ。”
17世紀後半から作られ、今日まで用いられる沖縄の伝統的な赤瓦。
南部一帯で取れる「クチャ」という泥岩を使ってつくられています。柔らかく扱いやすいクチャは、泥パックなどの化粧品としても使われるほど。
そんな沖縄の人には馴染みの深い「泥」を旗印とし、現在の建築様式になぞらえ落とし込みを図りました。

- goyemon™️
2019年にリリースした、雪駄×スニーカー「unda-雲駄-」をはじめ、切子×ダブルウォールグラス「Fuwan-浮碗-」など、『日本の伝統×最新技術』を融合させた商品を創りだすことで、現代の生活にフィットした、伝統を身近に感じられる商品を展開しています。
- Living room / リビングルーム


- Kitchen / キッチン
昼間はリビングでゆっくりしていたけれど、夜は自然とここが会場の場に。


- Japanese room / 和室
お風呂あがりは琉球畳にダイブ。 開放感のある天井を見上げ、 “泥娯” と一体となっていく。


- Bathroom / お風呂
扉を開けると浴室いっぱいに広がるヒノキの香り。 goyemon流の現代版「五右衛門風呂」をご体感ください。


- Bedroom 1
10畳の広々主寝室。 電源 / WiFi完備でデスク仕事もなんのその。( キングサイズベッド 1台 )


- Bedroom 2
東向きの窓でアラーム要らずの生活を。 ( シングルベッド 2台 )

- Entrance / エントランス

- 「 deigo -泥娯- 」概要名称:「deigo -泥娯- 」/ deigo ISHIGAKI
開業日:2022年9月1日(木)
プレオープン期間: 2022年8月1日(月)ー 2022年8月31日(水)
電話番号:非公開
Instagram:@deigo_ishigaki
チェックイン:15:00、チェックアウト:11:00
アクセス:コンビニ(徒歩8分)、市街地(徒歩約10分)、南の島展望台(車16分)、石垣空港(車20分)、川平湾(車25分)
階数:地上1階(平家造り)
間取り:3LDK
敷地面積:362.80m² / 建築面積:132.04m² / 延床面積:131.54m²
【Website】https://www.liblesgroup.com/deigo
【instagram】https://www.instagram.com/deigo_ishigaki
【twitter】https://mobile.twitter.com/deigo_ishigaki
運営:LIBLES GROUP inc. ( LIBLES HOUSE )
デザイン企画:NEWBASIC inc. ( goyemon )
建築設計:一級建築士事務所ヤマモトエミ住空間デザイン室
施工:RISE
清掃・管理:株式会社stay MORE
このプレスリリースには、メディア関係者向けの情報があります
メディアユーザーログイン既に登録済みの方はこちら
メディアユーザー登録を行うと、企業担当者の連絡先や、イベント・記者会見の情報など様々な特記情報を閲覧できます。※内容はプレスリリースにより異なります。
すべての画像
