溶接ヒュームの悩みにサヨナラを!溶接工場の空気環境を改善!工場用大型空気清浄機に新オプションが登場!
全体換気と局所換気を切替および併用が可能な工場用大型空気清浄機・ダクトオプション登場

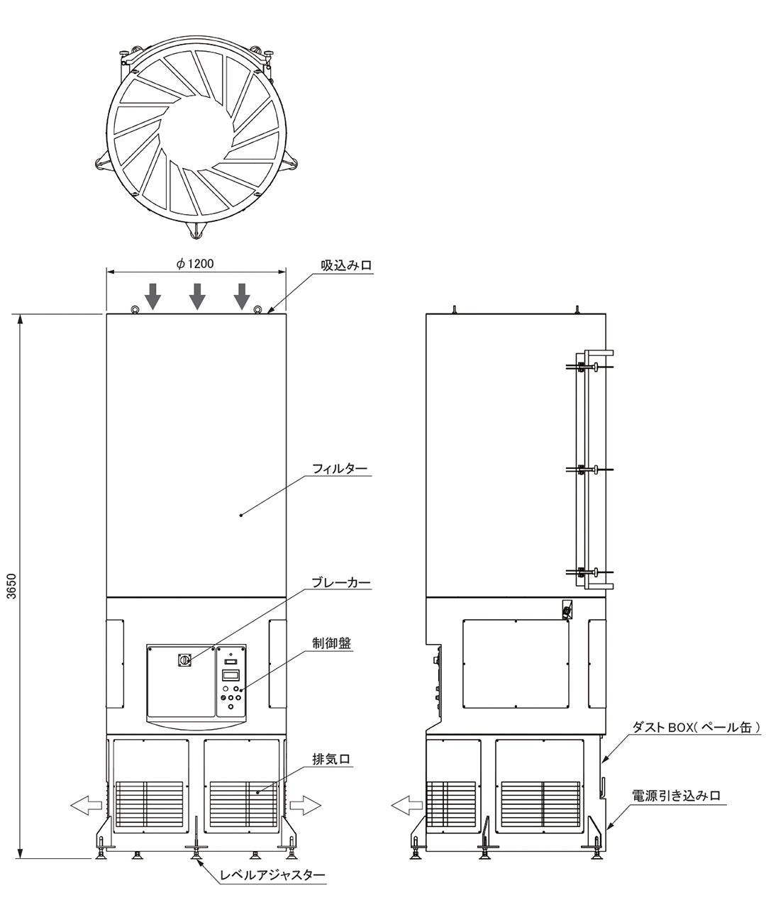
工場用大型空気清浄機とは?
工場用大型空気清浄機は家庭用空気清浄機の工場版とも言える製品です。
工場内で発生した溶接ヒュームを効率よく吸引し、空間全体の溶接ヒューム濃度を低減させます。
(家庭用の空気清浄機が巨大になったものと考えて頂くとわかりやすいかと思います)
有効空間の目安としては6000立米(高さ6m、330坪)の工場なら1台で1時間に1回分の換気に相当する能力になります。

200V電源につなぐ事でどこでも利用する事ができるため、使いたい場所に移動させて利用する事も可能です。
尚、本機は局所集塵等で吸引しきれず、空間全体に拡散した溶接ヒュームの吸引を目的としております。(溶接工場の同じ空間内にいる作業者が、間接的に溶接ヒュームを吸い込む事を防止します)
本機は設置する工場の高さにあわせて2タイプあり、高さ2.7mの低床ボックスタイプ、高さ3.5mのタワータイプがございます。見た目は変わりますが、内部で利用している集塵フィルターやブロアモーター等は同じ性能です。

製品動画
脱炭素、SDGsにも貢献!冷暖房効率を落としません
室外排気をしない本機は従来の集塵・換気装置と比較すると下記のようなメリットがあります。
レイアウト自由:
通常ならダクト工事が必要な同様の設備と比べて設置工事は不要。
さらに設備の移動も容易で取り回し良く利用する事ができます。
室外排気なし:
近くに住宅街がある工場でも安全に利用できます。また冷暖房効率を落とさずエコです。

工場用大型空気清浄機 局所集塵用ダクトオプション
本機は工場全体の溶接ヒュームを吸引用の集塵機で、本機単体では溶接作業者の手元から立ち上る溶接ヒュームから作業者を守る事はできません。
この問題を解決するのが新オプション『局所集塵用ダクトオプション』です。
ダクトと集塵アームを伸ばす事で、作業者の手元からの局所集塵にも対応ができます。集塵アームは集塵スペック的に6~7台まで同時利用が可能。使わない時はダクトの口をふさぐ事で全体吸引に戻す事も可能です。


尚、局所集塵の場面で利用される集塵機の風量は10~20立米(㎥)ほどが一般的です。
例えば、ロボット溶接と局所集塵を併せて利用する場合によくある問題ですが、ロボット溶接と局所集塵アームを近づける事が出来ない場合、溶接ヒュームの発生地点から少し離れた位置で吸引をする事になります。こういったケースの場合は単純に吸引風量が弱い場合、溶接ヒュームを吸引する前に周囲に拡散してしまう問題が発生します。
本機の場合では、本体の風量が100立米(㎥)と強力なため、集塵アームの本数を2~3本ほどに限定して利用する事で1本あたりの風量は33~50立米(㎥)となり、上記の問題に吸引力不足に対して対応可能です。
性能諸元
-
型式 ボックス型 BPFCH-100 / タワー型 BPFCA-100
-
動力 5.5kW
-
処理風量 100立米(㎥/min)
-
集塵方式 ろ過式
-
ろ過面積 101.2㎡
-
払落し方式 パルスジェット
-
製品重量 ボックス型 800kg / タワー型 600kg
-
電源 AC200V(三相) 50A
-
エアー接続口径 Rc1/4
※本製品は予告なく仕様・性能・外観などを変更する場合がありますのでご了承ください。
※爆発性粉塵が堆積すると火花や静電気により発火または爆発する事があります。
ダストBOXはこまめに清掃してください。( アルミニウム、チタンなど危険性の高い粉塵は
集塵しないでください。 )


エアコン併用なら電気代がお得!電気代シミュレーション

エアコン・暖房を利用している6000㎥の工場で1時間に1回分の換気が工場用大型空気清浄機の利用に置き換えた場合、機械スペック上のシミュレーションでは、夏冬5か月の運用だけでも
電気代 260,160 円節約
CO2排出量 3.77 t 削減
という驚きの数字がでました。
この詳細は公式ホームページのコラムよりご覧いただけます。
→ バリ取り機JP 脱炭素コラムはこちら
----------------------------------------------
*計算条件
・空間容量 6000立米
・容積比熱 0.3Wh /立米・ K
・電気代 1kWh=30円
・CO2排出係数 0.000435 t/kWh
夏場(外気温32℃、工場内25℃)が2 か月(1日8時間40日稼働)
冬場(外気温10℃、工場内20℃)が3 か月(60日稼働)
配信者情報
株式会社エステーリンク
住所:〒959-0113 新潟県燕市笈ケ島1365-1
TEL:0256-97-4846
FAX:0256-98-4821
プレスリリース配信:メタルエステ事業部 石山

株式会社エステーリンク
=====================================
国産バリ取り機のパイオニア
”板金屋が追及した板金屋のためのバリ取り機”・集塵機メーカー
=====================================
株式会社エステーリンクは現役の溶接板金加工工場であると同時に、同業者向けに『バリ取り機』『集塵機』などを設計製造するメーカーです。
板金加工業である自社が抱える問題点、悩みを解決するために工夫された『バリ取り機メタルエステ』はおかげ様で全国・海外を問わず多くのお客様よりご利用いただける人気機種として市場の皆様に受け入れて頂く事ができました。
現在は
『バリ取り機』
『集塵機』
『溶接ヒューム対策製品』
『溶接作業用定盤』
など、同業の板金加工工場で役に立つ設備を企画して販売しております。
”同業が歓喜するものづくり”
弊社、エステーリンクは現役の板金加工業者が企画設計する長所を活かし、
これからも同業者の皆様、レーザー加工、溶接作業をされる工場の皆様にとって
役に立ち喜ばれる製品をご提供していきます。
事業内容
■設備部門
・バリ取り機の設計、製造
・集塵機装置の設計、製造
・局所排気装置、塗装ブースの設計、製造
・各種機械設計製作
■販売部門
・溶接作業用3D定盤の輸入販売
■板金加工部門
・精密板金加工
・大型製缶板金加工
・筐体、機械フレーム製作
すべての画像
- 種類
- 商品サービス
- ビジネスカテゴリ
- 鉄鋼・金属・ガラス・土石・ゴム環境・エコ・リサイクル
- ダウンロード
