石川県新築着工棟数9年連続No.1の(株)AXSデザインが「建てた後でも間取りを自由に変えられる」ロングライフ平家住宅『SHIFT』を発表
~ライフステージに合わせて間取りが変えられる「可変性」という特別な性能を持った、地球と家計にやさしい快適な家~

石川・富山・福井の3県で事業を展開するハウスメーカー、株式会社AXSデザイン(本社:石川県金沢市、代表:多江 義教 以下「当社」)は、新工法によりあらゆるライフステージに合わせ、間取りを自由に変えられる新商品、ロングライフ平家住宅『SHIFT』を開発いたしました。
結婚、出産、子どもの独立と変化する家族構成、また、年齢とともに変化するライフスタイルなど、人生で訪れるさまざまな「変化」に合わせ、間取りを「シフト(変化)」できる家です。
『SHIFT』は家を長く快適に使うために重要となる性能(耐震性 耐久性 メンテナンス性 断熱省エネ性)をハイレベルで実現しつつ、間取りを自由に変えられる(可変性)という付加価値の高い特別な住宅性能を持った家となっております。
2024年5月18日、19日に富山県富山市呉羽町西にてモデルハウス内覧会(予約制)を開催予定です。
長く快適に暮らせる家を建てたい方や、平家住宅にご興味のある方は、ぜひお越しください。
■開発経緯
~「ロングライフ住宅 長く快適に暮らせる家」を作らなければ~
開発のきっかけとなったキーワードは 「人生100年時代」「日本の住宅の平均寿命30年」「空き家問題」「持続可能な社会の実現」「カーボンニュートラル」「SDGs」など現代社会の課題を映したものでした。
そして、これらの課題を解決するための家作りを考えた結果、「長く快適に暮らせる家」「長く使われていく家」にたどり着きました。
長く快適な暮らしを実現するために、一般的に考えると、第一に老後を考えれば、その家は平家系であること、 第二に「耐久性」「メンテナンス性」「耐震性」「断熱・省エネ性」という住宅性能を高くすることでした(長期優良住宅仕様)。
しかし、本当にこの二つだけで「長く快適に暮らせる家」であったり、「長く使われていく家」になるのだろうかと疑問がありました。
30年後や50年後、更にその先の世の中の生活スタイルの変化や家族構成を含めたライフスタイルの変化を想像すると、間取りを変えられない家は結局壊すことになったり、空き家(使われない)になるのではと考えたのです。
これは、50年前の間取りと現代の間取りを比べても想像できることです。
残念ながら現在の日本における一般的な木造住宅は、建てた後では間取りを自由に変えられません。この常識を壊し、建てた後でも間取りを自由に変えられる家が当たり前な家作りをしないと、真に「長く快適に暮らせる家」「長く使われていく家」にはならないと考えました。
そして、このような考えのもと第一弾として誕生した一ノ邸という商品に、様々な改良を加え誕生したのが「建てた後でも自由に間取りを変えられる家」平家の家『SHIFT』です。
■SHIFTの特長
~「長く快適に暮らせる持続可能な住まい」に暮らすメリット~
従来の日本の木造住宅では、構造上の制約から間取りを自由に変更することが困難でした。
そのため、ライフスタイルに合わせるには築後20~30年程度で建て替えたり、
大規模なリフォームを行う必要があり、費用や環境の面からも負担は大きいものでした。
一方で可変性を持つ家「SHIFT」は、間仕切り壁を自由に移動・撤去できるため、一般的な木造住宅にある構造壁や柱の制約が最小限になり、年代ごとに訪れる家族構成やライフスタイルの変化にあわせて、自由に間取りを変更できます。
そのため、従来の木造住宅にはない様々なメリットがあります。
●快適性:ワンルームスタイルから3LDK等にライフスタイルに合わせた空間に変えられる
●安心性:家族構成、趣味・趣向、身体的変化などのリスクに備えられる
●経済性:建て替えずに必要な空間へ変化させることで、コストを抑えながら長く暮らせる
●継続性:次世代へも引き継げるだけでなく、売却に有利なため資産価値が下がりにくい
●環境性:壊して建てるサイクルが伸びるため、CO2や資源削減など持続可能な社会へ貢献できる
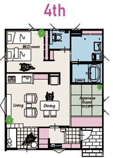
■可変性を活かした間取りの変遷例

【20・30代】~ワンルームで2人の贅沢で貴重な時間を演出~
2人だけの新生活は自由きままに、37帖の大空間を贅沢にシェア。ゆったりとくつろげる広めのLDKを中心に、テレワークのスペースなどもしっかり確保できます。



【30・40代】~部屋数を増やしプライベートな空間を創出~
子どもの誕生や成長にあわせて、2LDK、3LDKと間取りをシフト。家族のコミュニケーションとプライバシーを充実させながら、ほどよい距離感が保てる間取りです。
間仕切りを自由に移動できることで、利用しづらいデッドスペースを失くし、空間を有効活用できます。



【50・60代】~LDKを広げ生活スペースや趣味の空間を充実~
子どもが独立した後は子ども部屋をなくし書斎にしたり、水回りを移動することで、LDKを広げることも可能です。
結婚当初とは異なる2人のライフスタイルに合わせて、間取りを変えることができます。



【70代~】~効率的な生活動線で老後の身体的なリスクに対応~
人生100年時代といわれるなか、年齢を重ねてもバリアフリーで安心して暮らせるのが平家建てのメリットです。
新工法によりバスルームやトイレなど水回りの間取り変更がしやすくなっています。
車いすが必要となった場合でも、広くした水回りを1ヵ所に集めたり、移動しやすいように通路幅を確保したり、身体の変化に合わせた空間と生活動線を実現できます。



このように、ライフステージに合わせて幅広い間取りのニーズに対応できることで、将来まで安心して生活することが可能になるだけでなく、売却や住み替えとなった場合にも、資産価値が維持しやすくなっています。
■バリエーション
~3つの外観デザインと内観バリエーションを用意~
すっきりとした横のラインが特徴的なデザインから、平家建ての重厚感や安定感を感じさせるスタイルまで、3つの屋根形状と3色のカラーから外観を選べます。室内デザインも3つのバリエーションからお選びいただけます。
外観デザイン

内観バリエーション

■「SHIFT」その他の特長
・重力換気機能を備え、夏場には効果的な排熱が期待できる
・調湿性に優れた無垢材を使用した床
・基礎の立ち上がり部分が少なく、床下のメンテナンス性、通風性が向上
■主な住宅性能

■ モデルハウス概要
場所 :富山市呉羽町西1番54
構造 :木造在来軸組工法
階数 :平家建て
間取り :37帖ワンルーム
敷地面積 :214.57㎡(64.90坪)
建築面積 :82.84㎡(25.05坪)
延床面積 :78.66㎡(23.79坪)
断熱性能等級 :等級6 相当
断熱性能 :0.39W/(㎡K)
一次エネルギー消費等級:等級3 相当 (最高等級)
耐震等級 :耐震2相当(標準は耐震3相当)
劣化対策等級 :等級3相当 (最高等級)
維持管理対策等級 :等級3相当 (最高等級)
換気システム :第三種換気システム
基礎耐久設計基準強度 :30N/mm2(補正+6) (計画供用期間 約100年)
■モデルハウス内覧会情報
開始日:2024年5月18日(土)・19日(日)
開催時間:10:00-18:00
開催場所:富山市呉羽町西
備考:完全予約制
■SHIFT概要
名称:「SHIFT(シフト)」
提供エリア:石川県・富山県・福井県
WEBサイト:https://www.axs-inc.jp/products/shift/
問合せ先:https://reserve.sakura-home.co.jp/reserve/10159/
電話番号:0120-130-333
会社概要
商号 : 株式会社AXSデザイン
代表者 : 代表取締役 多江 義教
所在地 : 〒920-0345 石川県金沢市藤江北1丁目380番地
設立 : 平成17年11月1日
事業内容 : 一般住宅・賃貸住宅・商業施設 建築設計(新築・リフォーム)
資本金 : 1,000万円
URL : https://www.axs-inc.jp
すべての画像
