金沢の中心に2~6名用の家具付き小規模オフィス誕生。スタートアップや地方拠点ニーズに対応し、初期費用を抑え即時入居可能。
【2025年11月20日(木)・21日(金) 内覧会開催※事前予約不要】プライバシーとセキュリティを確保した"借りてすぐ働ける"オフィス空間。
株式会社ワキタ(本社:大阪市西区/代表取締役社長:脇田貞二)は金沢市中心部の南町に位置する「WAKITA金沢ビル」にて家具付き小規模オフィスを新たに開設しました。支店・営業拠点、スタートアップやサテライト拠点に最適な新区画の公開にあわせ、2025年11月20日(木)・21日(金)に内覧会を開催します。
■開設の背景
金沢エリアのオフィス需要の特徴として、15坪未満の小規模区画に集中する傾向があります。現在、金沢駅西エリアでは大型ビルの建設が相次いでおり、15坪超の区画は増加していますが、逆に小規模区画は圧倒的に不足しています。これまでWAKITA金沢ビルも、最小区画が約20坪と、この潜在的なニーズに応えられていない状況でした。
そこで当社は、コストを削減したい、すぐに事業を開始したいといったテナント様の声に応えるため、従来の区画を見直しました。単に面積を小さくするだけでなく、「家具付」「光熱費込み」とすることで、初期費用・ランニングコストを抑え、契約後すぐに事業をスタートできる「スモール・即入居オフィス」の提供に至りました。

■家具付き・光熱費込みの「即戦力オフィス」
本区画は、デスク・チェア・キャビネットを標準装備したセットアップオフィスです。
家具搬入の手間や初期コストを省き、ネット回線を引き込むだけで、すぐに業務を開始できます。
1階には入居者専用ラウンジ、1階、8階には貸会議室(有料)を備え、“働く場”と“集う場”の両方を兼ね備えた空間を提供します。利便性とデザイン性を兼ね備えた空間で、「ここから成長していく企業」を応援します。
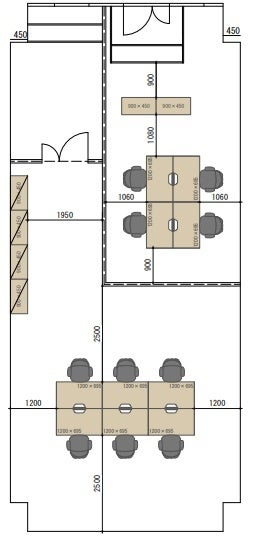
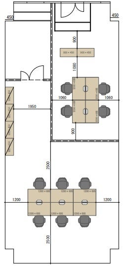
■募集区画 ※2年間の定期建物賃貸借契約(光熱費込み)です。入居時期は12月を予定しています。




【1F】



■内覧会情報

|
日 時 |
11月20日(木)10:00~18:00/11月21日(金)9:00~17:00 |
|
所在地 |
石川県金沢市南町4-55 北陸バス「南町」徒歩1分 北陸本線「金沢駅」徒歩19分 |
|
備 考 |
来場記念として500円QUOカード進呈(お名刺と引き換え) |
■アクセス
石川県金沢市南町4-55 北陸バス「南町」徒歩1分 北陸本線「金沢駅」徒歩19分

■WAKITA金沢ビルについて
金沢のメインストリート「百万石通り」に面した好立地に位置するオフィスビルです。
1Fに共用ラウンジや貸会議室を設け、快適に働ける環境を提供します。
■本件に関するお問い合わせ先
株式会社ワキタ 不動産部 TEL:06-6449-1920 Mail:linfo-jutaku@wakita.co.jp
■会社概要
商 号:株式会社ワキタ
代表者:代表取締役社長 脇田貞二
所在地:大阪市西区江戸堀1丁目3番20号
設 立:1949年5月4日
従業員数:1,842名(連結)※2025年2月28日時点
事業内容:建機事業、商事事業、不動産事業
このプレスリリースには、メディア関係者向けの情報があります
メディアユーザー登録を行うと、企業担当者の連絡先や、イベント・記者会見の情報など様々な特記情報を閲覧できます。※内容はプレスリリースにより異なります。
すべての画像
