【MAAD株式会社】都内に新築戸建を設計 ー安心感と解放感、制約と広がりを両立ー
「外の世界や環境とのリズム 流れる空気や光 空間で得られる体験」を提案するMAAD株式会社(本社:東京都豊島区 代表取締役 村木 計)は、東京都北区に「House SH」を設計デザインしました。

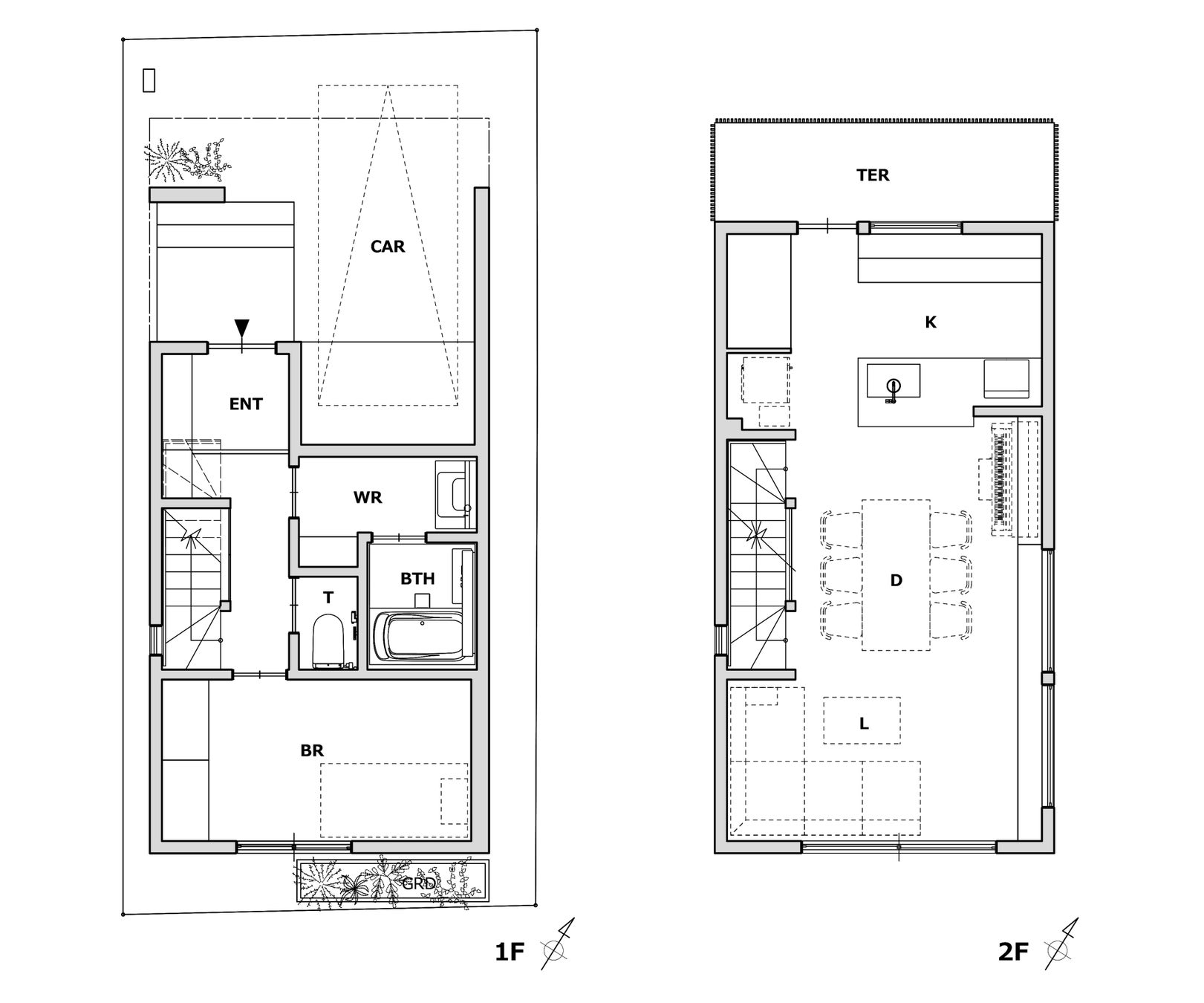
東京の住宅密集地で木造住宅を設計した。
この住宅は、周囲の建物との距離を大切にしつつ、家族の快適な生活空間を確保することを目的とした。限られた土地、空間を最大限に活用し、狭小地でも広がりを感じる設計をした。
設計の手法は、施主家族へのヒアリングから、家族一人ひとりが空間のなかで動くことと留まることのシミュレーションを繰り返した。親子が包まれるような空間で大切な話をする時間、日の入り後に料理と団らんを楽しむキッチン。家族が叶えたい過ごし方を軸に、建物は構成された。
狭小敷地における広がりとプライバシーの両立を目指し、窓の配置をデザインした。家族が集うリビングのある2階には、東側に高窓(ハイサイドライト)とライン照明を配し、晴れた日には気持ちのよい太陽光を取り込み、曇りの日や冬の日でも自然光のようなあたたかな光が食卓やリビングに広がるよう計画した。
2階南側の窓は、構造上最大限配置可能な大窓とすることで、光をたっぷり取り込み、室内の広がりを作り出した。建物北側ルーバーが建物を覆い、外部からの視線を物理的に遮っている。








物件詳細はこちら:https://maad.co.jp/works/HS
▼MAAD株式会社とは
外の世界や環境とのリズム 流れる空気や光 空間で得られる体験
2012年に建築家・一級建築士である村木計の個人事務所として創業。2023年11月、MAAD株式会社を設立しました。「外の世界や環境とのリズム 流れる空気や光 空間で得られる体験」をコンセプトに、様々な角度からイメージを広げ、ありたい姿を建築として表現し、そこで過ごす人や地域、社会と共にあり続ける空間を提供しています。これまで、商業施設、飲食の店舗、ホテル、オフィス、投資ビルから、個人宅、別荘等の企画、デザイン、設計、ブランディングなど、450件を超える案件を手掛けており、近年では、国内のみならず、海外からのオファーも増加しています。
▼企業概要
株式会社MAAD
代表取締役(建築家・一級建築士):村木 計
創業:2012年4月
設立:2023年11月
公式サイト:
Facebook:https://www.facebook.com/people/MAAD_Muraki-Architecture-and-Design/100057239867996
Instagram:https://www.instagram.com/maad.incjp
LinkedIn:https://www.linkedin.com/company/maadincjp
note:https://note.com/keimuraki
▼建築家・一級建築士 村木計の略歴
1983年神奈川県横浜市生まれ、幼少期はメキシコやスペインに在住。慶應義塾大学大学院在籍中に隈研吾研究室に所属、師事。2008年WORLD Space Creators Awards 2008 優秀賞を受賞。修士論文のテーマは、ポストモダンを考える - 建築家 ジャン・ヌーベルの詩学に関する分析 “A to Z” -。慶應義塾大学大学院 修士課程修了後、2012年村木計建築計画事務所を創業。2023年11月に法人化、MAAD株式会社を設立し、代表取締役に就任。
本リリースに関するお問い合わせ先
MAAD株式会社 E-mail:pr@maad.co.jp TEL:03-6914-1217
すべての画像
