"家を買う前に泊まって体験"できる新築の戸建て住宅型宿泊施設、4月1日・福岡に誕生【必要なのはスマホだけ】
~福岡のスタートアップ企業SmartInnが一建設と新たな住宅購入体験を提案~
福岡市のスタートアップ企業、株式会社SmartInn(本社:福岡県福岡市、代表取締役:松木 駿)は、飯田グループホールディングスの中核企業である一建設株式会社(本社:東京都豊島区、代表取締役:堀口 忠美)と協業し、新築の戸建て住宅を活用した体験型宿泊施設「HAJIME STAY KASUGA」を2025年4月1日(火)に福岡県春日市千歳町にグランドオープンいたします。
「見学だけでは分からない戸建て住宅の住み心地を、実際に宿泊しながら体験できる」新しい宿泊スタイルを提供し、将来的に住宅の購入を検討している方の不安を解消します。さらに、テクノロジーを活用した民泊運営に強みを持つSmartInnのプロデュースにより、予約やチェックイン、滞在中のサポートやチェックアウトまで、スマホひとつで旅行スタイルに応じた快適な滞在を実現します。

■体験型宿泊施設「HAJIME STAY KASUGA」オープンの背景と目的
2024年分譲戸建住宅購入者調査によると、一戸建て分譲住宅の物件を探す際に重視した設備や仕様として、「リビングやキッチンの広さ」や「風呂の設備(機能)」など、住み心地に影響する項目が多くあげられています。
しかし、住宅業界では「3回建てて初めて満足のいく家ができる」という言葉があるように、家は一生に一度の大きな買い物にもかかわらず、間取りや生活動線、収納や設備の使い勝手など住み心地は実際に暮らし始めてからでないとわからず、理想と現実のギャップに後悔や不満を持つ方が少なくありません。
また、「HAJIME STAY KASUGA」をオープンする福岡県は、観光庁によると、福岡県の住宅宿泊事業の届出住宅数は2025年1月15日時点で1,092件。これは全国29,325件のうちの約3.7%を占め、47都道府県では東京都、大阪府、北海道、沖縄県に続き5番目に多い件数となっています。※
本施設は、民泊需要が増加する福岡県で、「見学だけでは分からない戸建て住宅の住み心地を、実際に宿泊しながら体験できる」これまでにない新しい宿泊スタイルを提供し、将来的に住宅の購入を検討している方の不安を解消するためにオープンします。
※出典:住宅宿泊事業法の施行状況(国土交通省 観光庁)
https://www.mlit.go.jp/kankocho/minpaku/business/host/construction_situation.html

■体験型宿泊施設「HAJIME STAY KASUGA」について
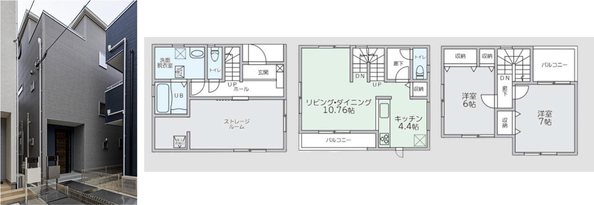
「HAJIME STAY KASUGA」は、戸建て住宅の購入前に実際の住み心地を体験できる宿泊施設です。本施設では、異なるコンセプトの施設を4棟用意し、年間9,000棟を超える分譲戸建住宅を供給する一建設の強みを活かした、見学だけではわからない、「家での過ごしやすさ」「導線の心地よさ」「設備の使い勝手」など、実際に生活する感覚を実感いただけます。また、国内旅行やインバウンド旅行者の方にとっても、大人数での滞在や、ホテルとは異なる日本のリアルな生活を体験できる施設となっています。 さらに、テクノロジーを活用した民泊運営に強みを持つSmartInnのプロデュースにより、予約やチェックイン、滞在中のサポートやチェックアウトまで、スマホひとつで旅行スタイルに応じた快適な滞在を実現します。
「HAJIME STAY KASUGA」概要

|
名称 |
HAJIME STAY KASUGA |
|---|---|
|
所在地 |
福岡県春日市千歳町2丁目25 |
|
グランドオープン日 |
2025年4月1日(火) ※2025年3月14日にプレオープン |
|
棟数 |
4棟(1号棟〜4号棟) |
|
予約方法 |
公式サイト・Airbnb・旅行予約サイト等から受付 |
|
公式HP |
|
|
備考 |
コンビニエンスストア 徒歩2分、Wi-Fi完備、各棟に駐車場あり |
<アクセス>
-
福岡空港 国際線ターミナルから 車で20~25分
-
福岡空港 国内線ターミナルから 車で25分
-
博多駅から JR鹿児島本線・春日駅 徒歩4分(電車と徒歩で15分)、車25分
-
西鉄福岡駅から 西鉄天神大牟田線・春日原駅 徒歩11分(電車と徒歩で25分)、車35分
<お問い合わせ先>
cs@smart-inn.co.jp
主な特徴
①実際に暮らすように泊まれる民泊施設
-
一建設の「ちょうどいい家」の住みやすさを体験
-
長期滞在にも対応する快適な間取りと設備
②4棟の異なるコンセプトで、多様なニーズに対応
-
1号棟:多世代ファミリー向け、大人数でも快適な広々リビング
-
2号棟:グループ旅行向け、開放的なダイニング付き
-
3号棟:カップル・夫婦向け、落ち着いたデザインとプライバシー重視
-
4号棟:子連れファミリー向け、安全設備を完備
③SmartInnのプロデュースによる快適な宿泊体験
-
「待たない・迷わない・煩わしくない」ースマホひとつでスムーズな宿泊体験を提供
-
滞在中のサポートもいつでもスマホから
-
データとAIを活用し、常に最適な宿泊環境を提供
【1号棟】世代を超えた団らんと安心の滞在:大人数対応型宿泊施設

-
3階建 2SLDK
-
延べ床面積93.15㎡
-
最大10名まで宿泊可能な柔軟な間取り
-
世代間のプライバシーに配慮
-
乳幼児向けのハイチェアや食器などファミリー向けのアメニティが充実
-
多用途なスペースを準備
【2号棟】大人のためのリラックスステイ:家族も仲間も楽しめる上質な空間

-
3階建 2SLDK
-
延べ床面積98.82㎡
-
全室シングルベッドや支度スペースなど快適でプライベートな空間を確保
-
6人掛けダイニングテーブルを設置し充実した共有スペースを提供
-
1階寝室や手摺付き階段で安心安全の滞在
【3号棟】友人や家族で過ごす九州旅行の快適拠点

-
3階建 2SLDK
-
延べ床面積101.24㎡
-
4~5名の少人数が快適に過ごせる豪華な空間
-
各寝室にクローゼットや、玄関玄関クロークにスーツケースの収納スペースを完備し長期滞在も可能
【4号棟】子どもが楽しめるロフトベッド付きの特別な空間

-
3階建 2SLDK
-
延べ床面積96.79㎡
-
家族で快適に過ごすための設計と、短期滞在に特化した効率的な動線が特徴
-
お子様が楽しめるロフトベッド付きの大寝室と、親世代用のプライベートな小寝室
【一建設とSmartInnのコメント】
■ 一建設株式会社 執行役員 アセットソリューション事業本部 本部長 佐藤 甲治 様
当社は「良いものをより多くの方に広く普及する」を企業理念として掲げ、多くのお客様が心から満足いただける住まいづくりを追求しています。今回、民泊運営の専門性を持つSmartInn様との協力により、福岡県春日市に「HAJIME STAY KASUGA」をオープンすることで、戸建て住宅の購入をご検討中の方々に対して、“実際に泊まって住み心地を確かめる”というまったく新しい体験を提供できると考えております。
また、当事業は投資用戸建住宅の販売を行う当社の強みを活かし、投資家の皆様にとっても新たな可能性をご提案する場でもあります。近年、国内外からの旅行需要の高まりを背景に、戸建て民泊への注目が一層高まっています。短期滞在やグループ利用、ファミリー層など幅広い宿泊ニーズに応える本プロジェクトを通じて、投資家の皆様には“実物を体感してから投資判断ができる”というメリットを感じていただきたいと考えております。
「HAJIME STAY KASUGA」が、将来的に住宅購入を検討されている方々だけでなく、不動産投資を検討されている方々にとっても、理想の住まいと投資機会を結びつける新たなモデルとなれば幸いです。
■ 株式会社SmartInn 代表取締役 松木 駿
私たちSmartInnは、民泊運営を通じて、人々がより自由に、より快適に滞在できる新しい体験を創り出すことを目指しています。「HAJIME STAY KASUGA」は、住宅の購入前に”泊まって確かめる”という新しい概念を取り入れた画期的な施設であり、私たちの技術と運営ノウハウが活かせるプロジェクトです。一建設様が提供する”ちょうどいい家”と、私たちのスマホひとつで快適ステイを実現するスマートな宿泊管理の融合により、宿泊者の皆様に最高の体験を提供できると確信しています。
【SmartInnが提供する民泊運営】
おもてなしに革命を
当社は、新たなテクノロジーを活用して居心地のいい第三の場所「サードプレイス」を開発・運営しています。社内には民泊領域で経験豊富なエンジニアやデータサイエンティスト、デザイナーなどプロフェッショナルが在籍しており、企画の制作からプロデュース、マーケティング、運営管理まで一気通貫でサービスを提供しています。
SmartInnが提供する「テクノロジー×ホスピタリティ」で、ストレスフリーな滞在を実現。チェックインのストレスゼロ、滞在はもっと自由に。AIとデータを活用した次世代型民泊で、旅の新しい当たり前を創り出します。
自宅のように心地よく、ホテルにはない快適さで新しい旅行体験を提供


データを活用し施設を常に最適化 時代に合ったおもてなしで高い顧客満足度を獲得

【会社概要】
<一建設株式会社>
社名 : 一建設株式会社
設立 : 1967年2月13日
代表取締役 : 堀口 忠美
本社所在地 : 東京都豊島区南池袋2-25-5
事業内容 : 戸建分譲住宅事業、マンション分譲事業、リフォーム事業等
公式サイト : https://www.hajime-kensetsu.co.jp
分譲戸建住宅の供給棟数日本一※を誇る飯田グループホールディングスの中核企業として、分譲住宅、注文住宅・分譲マンション・リースバック事業などを手掛け、住まいに関する事業を中心に発展してきました。主力事業である分譲住宅事業は年間9,000戸を超える新築分譲戸建住宅を供給しています。
※分譲戸建住宅市場におけるシェア(2023年4月1日~2024年3月31日 住宅産業研究所調べ)

<株式会社SmartInn>
会社名 : 株式会社SmartInn
設立 : 2021年4月
代表取締役 : 松木 駿
本社所在地 : 福岡県福岡市中央区平尾2丁目15-4リクラス平尾201号室
事業内容 : 業務系基幹システムの開発・保守・運用、iOS/Androidアプリ開発
HP : https://biz.smart-inn.co.jp
問い合わせ先 : cs@smart-inn.co.jp

このプレスリリースには、メディア関係者向けの情報があります
メディアユーザー登録を行うと、企業担当者の連絡先や、イベント・記者会見の情報など様々な特記情報を閲覧できます。※内容はプレスリリースにより異なります。
すべての画像
