【東伸運輸】関東と関西の物流ハブとなる「中継・集約型センター(約5,500坪)」を愛知県愛西市にリリース
東伸運輸株式会社(本社:愛知県安城市、代表取締役:片桐 徹)は、愛西市(あいさいし)の物流倉庫を東西の物流の「中継拠点・集約型拠点」として活用を始める。
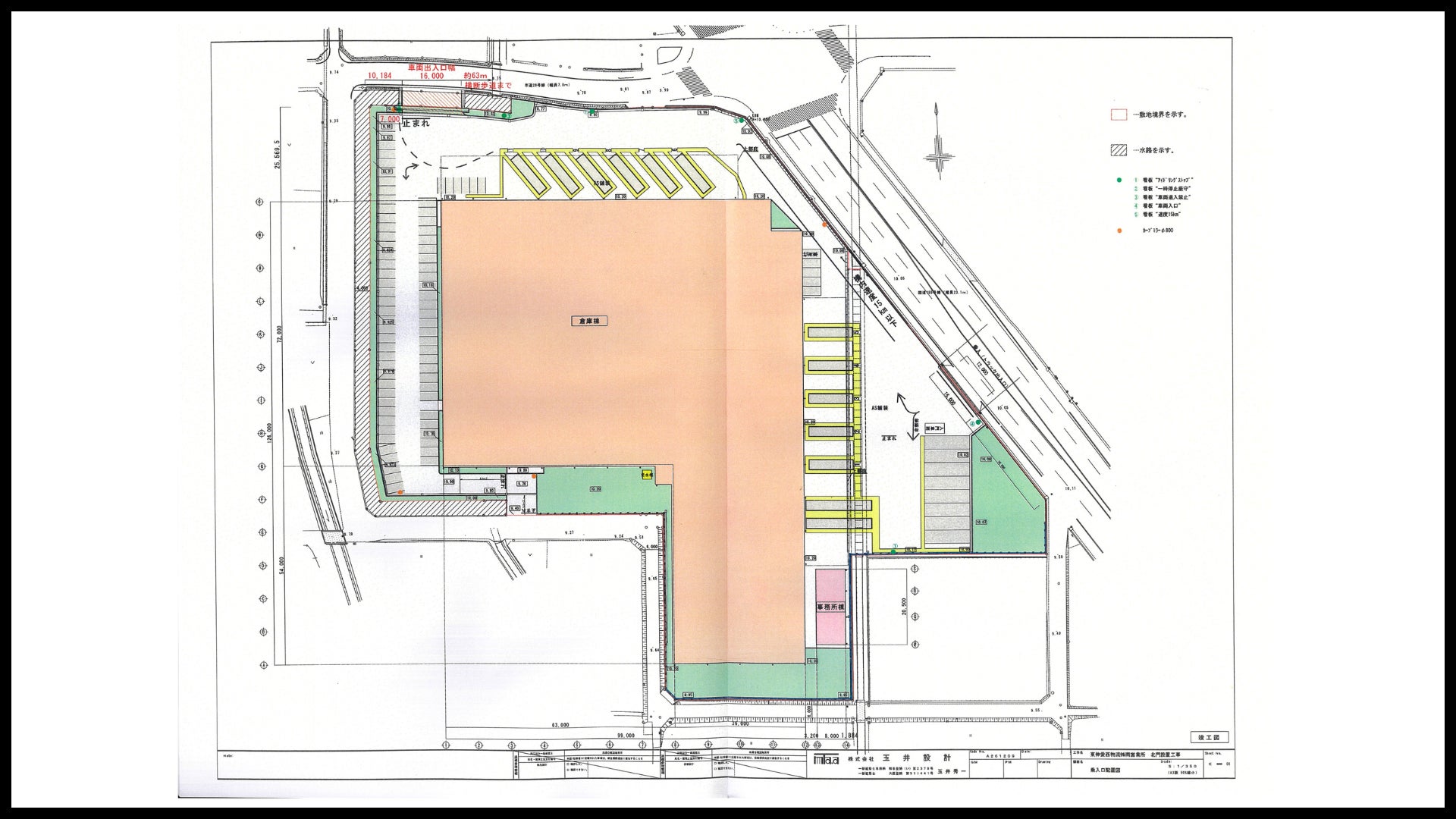
東伸運輸株式会社では、愛知県愛西市に保有する物流センター(約5,500坪)を物流の「中継拠点・集約型拠点」としてリリースしました。同センターは、東名阪道・名二環・伊勢湾岸道という日本有数の幹線道路が交差する弥富IC至近に立地しています。

■リリースの経緯
2024年問題により、九州・関西↔関東・東北間の長距離輸送の継続が困難となり、撤退を決める物流会社も増加しています。これにより、荷主企業では安定した輸送網の確保が喫緊の課題となっています。こうした状況を受け、当社ではこれまで専属倉庫として運用していた愛知県愛西市の倉庫を、中継・拠点集約機能を担う新たな物流ハブとして再活用することを決定しました。愛西市は東西輸送の中間に位置し、中継拠点として極めて有利な立地です。
■愛西倉庫の詳細情報
愛知県愛西市に位置する約5,500坪の大型倉庫です。東名阪道・伊勢湾岸道・名二環に直結し、名古屋港・四日市港とも連携可能です。中継、分割配送、集約保管、BCP対応拠点として柔軟にご活用いただけます。






|
倉庫名 |
愛西倉庫 |
|---|---|
|
所在地 |
愛知県愛西市東保町宗十2-1 |
|
敷地面積 |
5,672坪 |
|
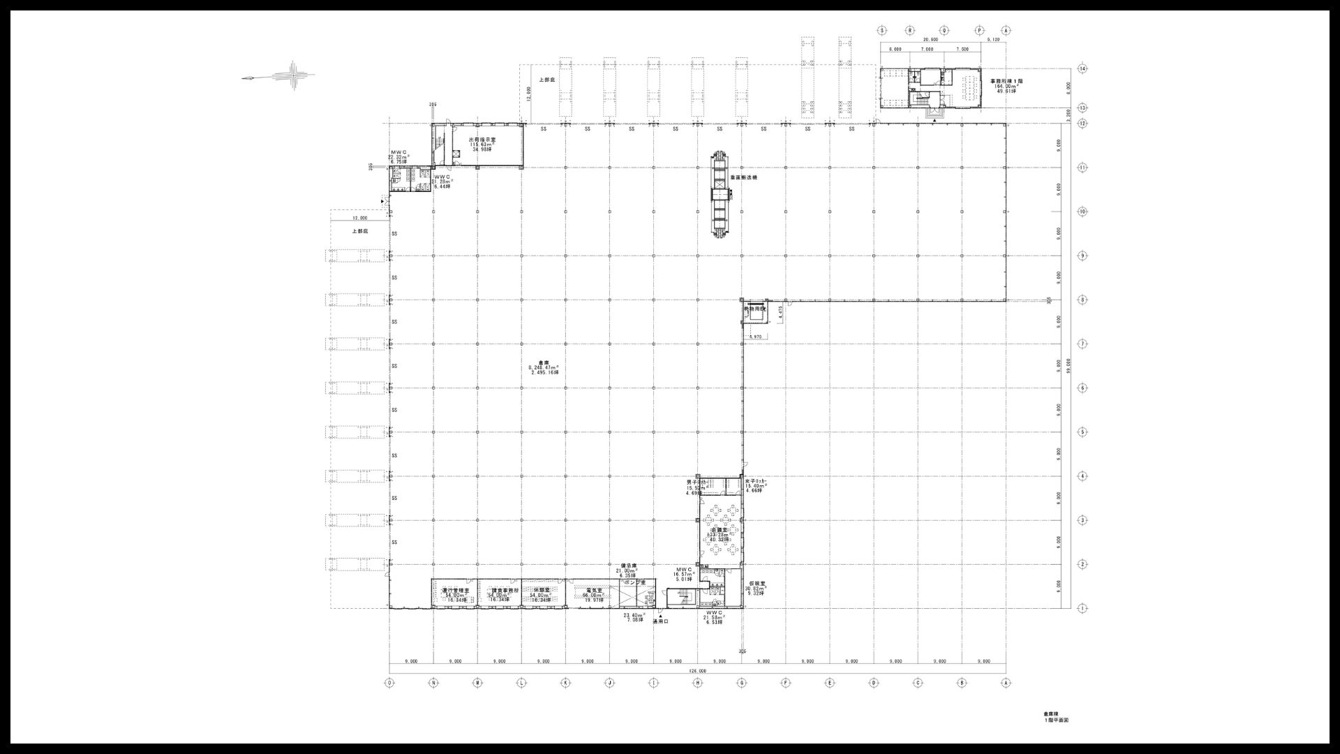
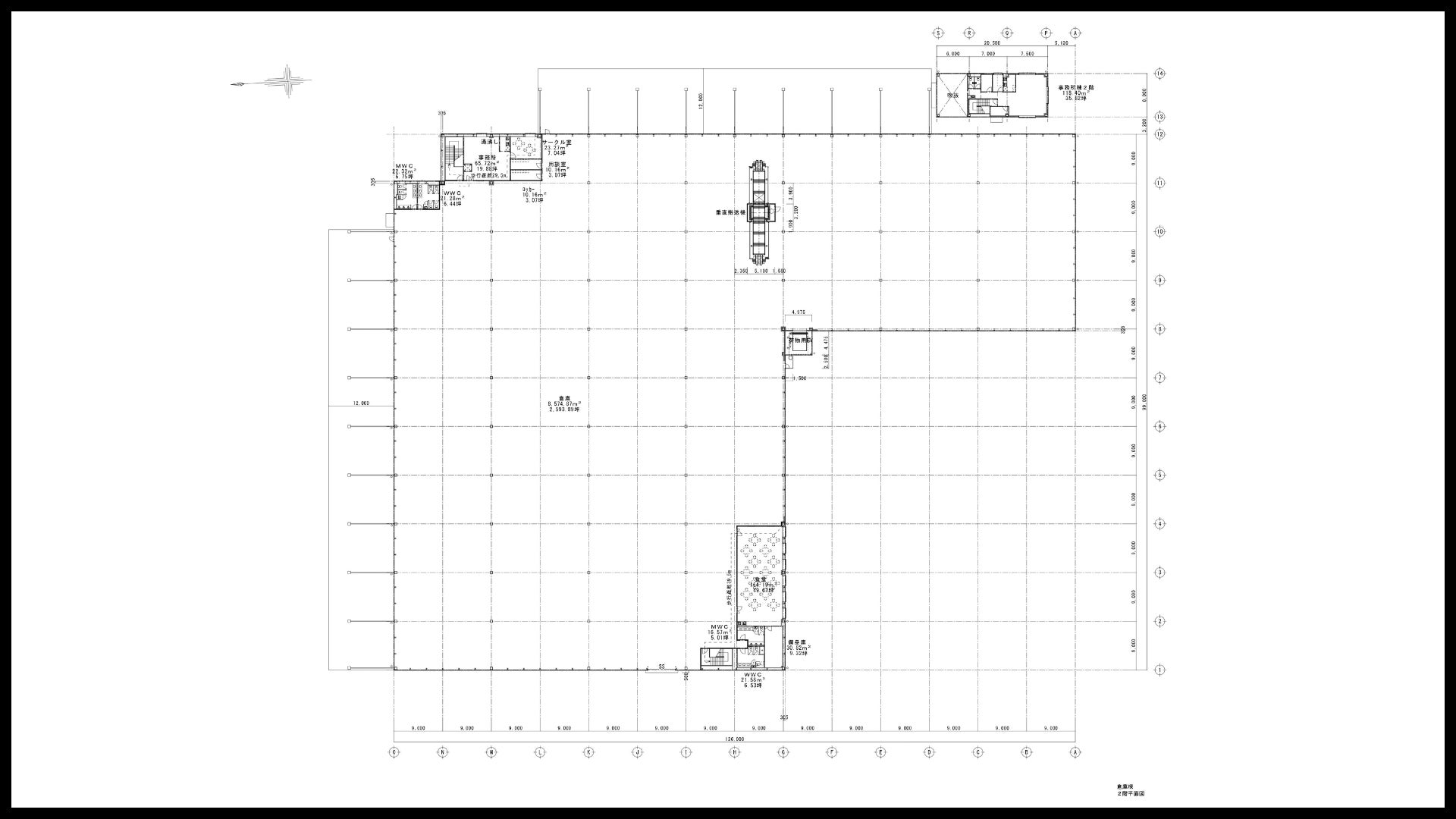
延床面積 |
18,108㎡(5,476坪) |
|
構造 |
鉄骨造2階建(低床倉庫) |
|
床荷重 |
1階:2.0t/㎡、2階:1.0t/㎡ |
|
有効天井高 |
1階:6m、2階:5m |
|
昇降設備 |
貨物用エレベーター:1基、垂直搬送機:1基 |
|
接車能力 |
同時13台接車可、庇12m |
|
竣工 |
2016年12月 |

■倉庫カタログ
東伸運輸では愛西倉庫をはじめ、お客様のニーズに合わせた倉庫を用意しています。
各倉庫カタログのダウンロードはこちら≫
◇愛西倉庫(愛知県愛西市)
■【500坪未満の案件にも対応可能】ワンストップ対応と高精度物流

愛西倉庫は、東伸運輸への「寄託」専用の物流拠点としてご利用いただけます。保管をはじめ、入出庫作業、流通加工、輸配送まで、当社がワンストップで対応いたします。500坪未満の案件にも対応可能で、お客様の業種・規模に合わせた柔軟な運用が可能です。さらに、当社は出荷精度99.9997%という高水準の実績を誇り、正確で安定した物流品質をご提供しています。倉庫の設備や運用体制をご確認いただける内覧会も随時対応しておりますので、ぜひお気軽にお問い合わせください。
■愛西倉庫の紹介動画
お問い合わせはこちら≫https://www.toosin.co.jp/contact
■会社概要・お問い合わせ

会社名:東伸運輸株式会社
本社所在地:愛知県安城市尾崎町堤下11-1
本社電話番号:0566-97-5111(代表)
設立:1965年(昭和40年)4月
資本金:6,000万円
売上高:東伸運輸単体:59.5億円 グループ売上:77億円(2025年3月期)
代表者:代表取締役社長 片桐 徹
従業員数:東伸運輸単体:318名 グループ従業員数:416名(2025年4月)
事業内容:一般貨物自動車運送事業/倉庫業 倉庫商品管理/一般貸切旅客自動車運送事業(さるびあ交通)/旅行事業 第2-1024号/損害保険代理業(東京海上日動火災、三井住友海上火災、損害保険ジャパン)
グループ企業:東伸ホールディングス株式会社/安城倉庫運輸株式会社/東伸愛西物流株式会社/安城物流センター株式会社
ホームページ:https://www.toosin.co.jp/
このプレスリリースには、メディア関係者向けの情報があります
メディアユーザー登録を行うと、企業担当者の連絡先や、イベント・記者会見の情報など様々な特記情報を閲覧できます。※内容はプレスリリースにより異なります。
すべての画像
