建築家 隈研吾が提案・新しいワークスタイルのプラットフォーム【KuMO】Kuma Mobile Office
コワーキングスペースを兼ねた、サテライトオフィスを 2022年より全国に続々と展開中。地域性・人との繋がり・空間を探求する新たなリモートワークの場。既に開設の北海道と沖縄県にて会員募集中。
地域に深く根差した建築を提案する、隈研吾建築都市設計事務所・KKAA(KENGO KUMA&ASSOCIATES)
2022年始動の進行形プロジェクト【KuMO】Kuma Mobile Officeでは、地域らしさを存分に盛り込んだ実験的なサテライトオフィス空間を具体化。
北海道(東川町) と 沖縄県(那覇市 壺屋) の二つの場所で利用を開始しました。岡山県(真庭市)にも近日オープン予定です。
⇒ KuMOプロジェクト : https://kumamobileoffice.co.jp/
2022年始動の進行形プロジェクト【KuMO】Kuma Mobile Officeでは、地域らしさを存分に盛り込んだ実験的なサテライトオフィス空間を具体化。
北海道(東川町) と 沖縄県(那覇市 壺屋) の二つの場所で利用を開始しました。岡山県(真庭市)にも近日オープン予定です。
⇒ KuMOプロジェクト : https://kumamobileoffice.co.jp/
KuMO第一弾、北海道東川町のサテライトオフィス「KAGUの家」© Imada Photo Service
- KuMOーKuma Mobile Office
KuMO(Kuma Mobile Office)
自然の中で働き、地域と深くつながるための新しい形のオフィスです。KKAAのスタッフが働くだけでなく、CO-WORKINGとしても機能し、会員になられた方に、自由に使ってもらいます。
第一弾は、北海道東川町の施設 「KAGUの家」です。旭川空港からもアクセスが良く(15分)、移住者は増加し、個性的な飲食店が次々オープンし、なにより自然の美しさ、豊かさは格別です。
KuMOは今後、日本中の特別な場所を選んで増殖します。
KuMO同士が連携し、日本中のKuMOを転々としながら働ける、
新しいワークスタイルのプラットフォームとなります。
みなさんとKuMOで一緒に働き、地域に貢献したいと思います。
隈 研吾
- 1.北海道・東川町 ~ 鉄道、国道、上水道がない町にできたオフィス ~
・アクセス:旭川空港より車で約 10 分・旭川駅より車で約30分
今、北海道で最も注目されている町のひとつである東川町に、地元の木を用いて、KKAAがデザインした 家具を耐震壁に用いた木造のサテライトオフィス。
東川は「鉄道、国道、上水道」がない町をキャッチコピーにした町作りを進めており、大雪山の湧き水をそのまま飲むことができ、蛇口をひねるとミネラルウォーターの水質を持っていることでも知られている。
また、家具の町として知られ、世界トップレベルの木製家具を作る工場が草原に点在している。
それらの家具工場とのコラボも、このサテライトオフィスのテーマのひとつで、「KAGUの家」はそのコラボを象徴する命名でもある。
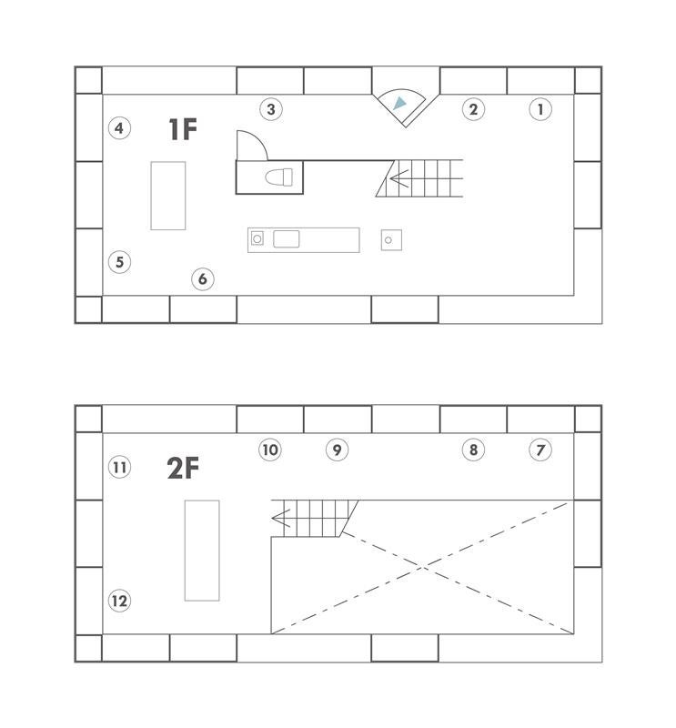
2022年春完成した、各KAGUユニットで最大12人が活動でき、キッチン、トイレ、リビングスペース、打合せスペースを共用しながら隣接の町の図書館とも繋がる、町のストリートの一部のようなサテライト。
木材は北海道産、外壁は東川町の木をふんだんに使用 © Imada Photo Service
素材の木材はすべて北海道産にこだわり、中でも外壁については東川町の木をふんだんに採用した。東川町は、世界最高レベルの木工家具の町である。
彼らと共に、建築の耐震システムの一部となり、ワークステーションともなる、木でできたKAGUユニットを開発した。ユニットは棚と机が一体となった家具であり、家具屋によって建築にはめこまれる。
まさに東川の素材と家具の融合の象徴であり、建築と家具との境界をとっぱらった新しい実験である。
木製棚と机が一体となったKAGUユニットによる地上2階建て、吹抜け空間にあるリビングスペース © Imada Photo Service
2階、ゆったりと配置された個々のワーキングスペース© Imada Photo Service
2階、打合せにも使用するテーブル席 © Imada Photo Service

・利用定員: 12名
・面積: 153.17㎡
・ワークデスク数:12席(1階6席、2階6席)
・使用料: 月額25,000円 (+冬期暖房代3,000円)
⇒ 東川町トオフィスでの会員募集、内覧予約、その他 お問合わせは、下記リンクにある【お問合わせフォーム】よりご連絡ください
https://kumamobileoffice.co.jp/higashikawa/
- 2.沖縄県・那覇市 壺屋 ~ 焼き物と市場の街で、那覇の歴史と現在を感じるオフィス ~
・アクセス:那覇空港より車で10分
沖縄、那覇の観光の中心地、国際通りから歩いて10分ほどの場所にある、焼き物の街として知られる壺屋の古いビルをサテライトオフィス+店舗として再生させた。
このエリアは近年、飲食店やクラフトを扱う雑貨店なども増え、ストリートしてもにぎわいを見せ、この複合性がサテライトの場所にふさわしいと感じた。牧志公設市場などの市場エリアも隣接し、今回KKAAのサテライトオフィスの目の前には かつての農連市場(現・のうれんプラザ)があり、市場とサテライトも連動する。
昭和43年建設の建物を「サテライトオフィス+店舗」として再生 © Kaoru Yamada
昭和43年に建てられた、コンクリートブロック造の3階建ての建築のリノベーション。
交差点に面して建ち、かつては、和菓子や居酒屋として営業していた。サテライトオフィスは2階に位置し、1階には新しい沖縄を代表する店舗、リカーショップ「LIQUID」とソーセージショップ「TESIO」による、「LIQUID THE STORE」がある。ストリートに開かれて、飲み食いも楽しめる、現代のマーケット的な空間である。
オフィスは、集中して仕事のできるカウンターを窓際に設置し、中央部には小さな丸テーブルを並べオープンな雰囲気をつくっている。ガラスによって仕切られた打ち合わせスペースでは、メインスペースと連続しながらも、囲われた空間で快適なミーティングが可能だ。3階のゲストルームは、オフィスと連携して、ワーケーションとして、数日、那覇で働くというライフスタイルも提案している。
2階 オフィス:作業に集中できるよう窓際にカウンター、中央部に小さな丸テーブルを配置 © Kaoru Yamada
2階 オフィス:メインスペースと視覚的に連続する、ガラスで仕切られた打合わせスペース © Kaoru Yamada
1階 店舗:「LIQUID THE STORE」 © Kaoru Yamada
元の建物の名残であるコンクリートブロックに囲われる屋上 © Kaoru Yamada
目の前にある かつての農連市場(現・のうれんプラザ)とも連動する © Kaoru Yamada

・面積: 56.22㎡
・ワークデスク数: 12席
・使用料: 月額18,000円/日額1,500円
※ 一日からの使用も可能ですので、お気軽にお試しください
⇒ 壺屋オフィスでの会員募集、内覧予約、その他 お問合わせは、下記リンクにある【お問合わせフォーム】よりご連絡ください
https://kumamobileoffice.co.jp/okinawa/
すべての画像
