絶景のオフサイト特化型施設、I&O熱海が5/17にオープン
神山まるごと高専を手がけた須磨一清が設計、宿泊10名/会議20名収容可能なサウナ・温泉つきの一棟貸し
Island and office株式会社(本社:東京都世田谷区、代表取締役:須磨 一清、柏木 彩、以下:当社)は、2024年5月17日よりオフサイト特化型施設 I&O熱海をオープンいたします。I&O熱海には、20人収容可能な会議スペース、10人宿泊可能なベッドルーム、温泉、サウナ、水風呂などの設備、WiFi、ホワイトボード、モニターなどのオフィス環境を完備し、市内のレストランと提携した地産地消の食事、チームビルディングに特化したアクティビティなどを提供します。
なお、2021年5月に始動したI&O八丈島に続き、徳島県神山町のサテライトオフィスや神山まるごと高専などを手掛けた須磨一清が設計しました。現在両拠点の会員を募集しています。

I&O熱海について
東京から40分、日本を代表する温泉地である熱海。海と山に囲まれた自然豊かな場所には、別荘やリゾートマンションが立ち並び、昭和時代には社員旅行の定番で、かつては企業の保養所もたくさんありました。昨今では観光地として再び注目を集め、移住者も増え盛り上がっています。
I&O熱海は、都心のオフィスからあえて離れて非日常で過ごすための場所です。チームの関係密度を高め、ともに未来のビジョンをつくる場所として最適な空間、体験を設計しています。
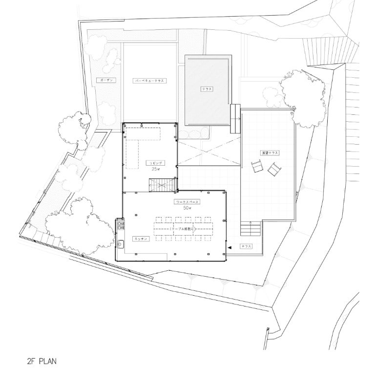
<フロアプラン・設備>


1階
ベッドルーム6(ベッド10)、シャワールーム 2 、温泉、サウナ、水風呂
2階
ミーティングスペース、ラウンジ、キッチン
屋外
テラス、ガーデン
オフィス機能
WiFi、ホワイトボード、モニター、スピーカーなど
<施設・サービス詳細>
定員:宿泊10名、会議20名
オプション:食事、アクティビティ
利用可能時間:チェックイン9:00、チェックアウト15:00
住所:熱海市桃山町3-3
アクセス:品川駅から熱海駅まで新幹線で30分、熱海駅から徒歩15分(タクシーで3分)
延床面積:200平米
構造:木造
階数:2階建
建築家 須磨一清コメント
「別荘地として知られる熱海市桃山町には平場がほとんどない。その特性を活かし、海や市内を展望できる視点場(テラス)にこだわった。4つあるテラスは、回遊型に設計。連続性を持ちながらも、自然と移動を促し人の視点を変化させる。建物の周りを取り囲む植物はすべて八丈島のもの。東京からわずか40分の立地で、一瞬で島に来たかのような錯覚が得られる効果を狙っている。
また、I&O八丈島と共通するのはガラスを多用した点。自然と人、人と人、自分と事象の間の壁をできる限り取っ払い、バイアスや境界が溶けていくようなイメージで設計した。家具は、オフィス機能として使いやすいものを揃えつつ、造作テーブルは大理石と木を融合させたデザインに。天然素材、テクノロジー、人間の手という異質なものを組み合わせながらつくり出したテーブルで、想像を超えるようなアイデアがどんどん生まれるといいなと思っている。」
I&O利用プラン
法人・個人 年間プラン
・30泊利用権:残り2枠
・10泊利用権:残り3枠
・5泊利用権 :残り7枠
お問い合わせフォーム:https://forms.gle/35f1bZ6ntwSTdNna8
※諸条件はお問い合わせください。プランはI&O八丈島、I&O熱海共通となります。
※1回限りのトライアル利用も可能です。
I&Oとは
「WORK IN THE ZONE」をコンセプトに展開する、法人・ビジネスパーソン向けのオフサイト特化型施設です。徳島県神山町のサテライトオフィスや神山まるごと高専を手がけた建築家 須磨一清が、これまでの経験をもとに”究極のオフサイト体験”を目指し設計を手掛けています。チームビルディングに最適な8〜10名の定員数、充実したオフィス機能、コミュニケーションを生む回遊型設計、アクセスの良さと圧倒的な非日常性のバランスを特徴とし、五感や身体を使ったアクティビティをプログラム化するなど、利用者が密に過ごせる仕掛けを開発しています。
これまでI&O八丈島は、経営合宿、ハッカソン、CEO道場、共創キックオフ、クライアントとのワークショップなど、様々な用途で活用されてきました。利用者はVC、スタートアップ、大企業幹部や新規事業部、コンサルティング企業など多岐に渡り、集中的なディスカッションに加えてトレッキング、サウナ、焚き火、カードゲームなど様々なアクティビティを盛り込みながら過ごしています。
サービス開始の背景と目指す未来
昨今の人的資本経営の流れを受け、エンゲージメント向上、離職率低下、働き方の多様化、学習機会の提供など、さまざまな施策を通じて人への投資を強化する企業が増えています。私たちは、定期的に密に過ごせるオフサイトこそが、組織成長の土台を作ると考えています。
従来、オフサイトは貸し会議室やホテルを組み合わせて行うケースがほとんどですが、ホワイトボードやWiFiなどの設備面の弱さ、チェックイン・アウトのタイミングによる利用時間の制限、食事・アクティビティ・レンタカーなどのロジ面での手間など、要件を満たす施設は少ない状況です。
上記をすべて満たすオフサイト特化型施設をつくり、環境、空間、体験の力で”究極のオフサイト体験”を創出すべく、ハード・ソフト両面からサービスを拡充してまいります。
■Island and office株式会社について
代表 :須磨 一清、柏木 彩
設立日:2018年9月
所在地:東京都世田谷区瀬田1-12-3
事業 :オフサイト特化型施設の企画・開発・運営
URL : https://islandandoffice.com/
このプレスリリースには、メディア関係者向けの情報があります
メディアユーザー登録を行うと、企業担当者の連絡先や、イベント・記者会見の情報など様々な特記情報を閲覧できます。※内容はプレスリリースにより異なります。
すべての画像
