東急世田谷線「松陰神社前」駅 徒歩2分 投資用マンション ガリシアレジデンス松陰神社
投資⽤不動産の企画、開発、販売を⼿掛ける株式会社BRI(本社:東京都港区、代表取締役:福原大輔)は、自社ブランドマンション「ガリシアレジデンス松陰神社」を販売開始いたしましたことをお知らせいたします。

外観

エントランス

最寄駅 主要路線



内装・設備


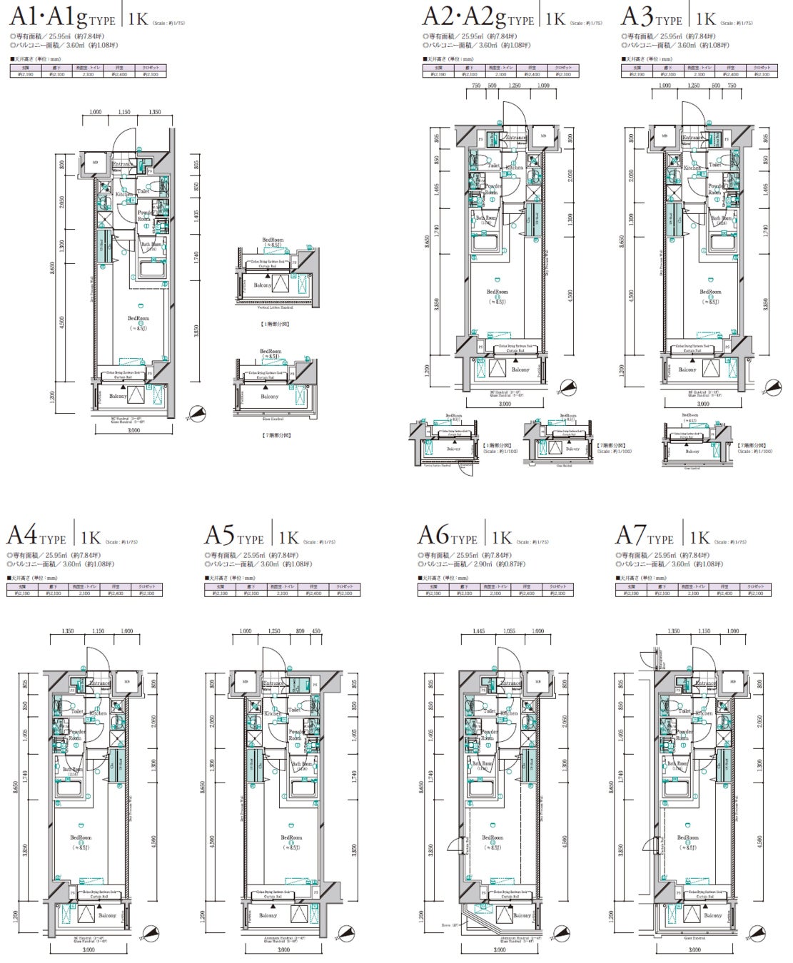
間取り

顔認証システム〈Fr e ei D〉が実現するこれからのマンションライフ

ファストドクター・BRI Prime Service

物件概要
・名称 :ガリシアレジデンス松陰神社
・所在地 :東京都世田谷区若林4丁目
・交通 :東急世田谷線「松陰神社前」駅 徒歩2分
・総戸数 :36戸(管理室を除く)
・構造 :鉄筋コンクリート造 地上7階建
・間取り :1K
・竣工月 :令和6年8月
・入居日 :令和6年9月
・設計・監理 :株式会社アトリエプラス・ワン 一級建築士事務所
・施工 :株式会社小川建設
会社概要
会社名 :株式会社BRI
本社 :東京都港区六本木7-18-18 住友不動産六本木通ビル4階
代表 :代表取締役兼CEO 福原 大輔
設立 :2007年5月1日
事業内容 :投資用マンション企画・開発・販売事業
ホームページ :https://www.b-r-i.co.jp/
メール :brigalicia@b-r-i.co.jp
電話番号 :03-5786-7600
賃貸管理に関するお問い合わせ
会社名 :株式会社BRIサポート
本社 :東京都港区六本木3-4-35 六本木三幸ビル5階
代表 :代表取締役兼CEO 福原 大輔
設立 :2010年11月1日
事業内容 :不動産賃貸借及び管理・不動産仲介及び賃貸借の媒介
ホームページ :https://www.brisupport.co.jp/
メール :info@brisupport.co.jp
電話番号 :03-5786-7607
建物管理に関するお問い合わせ
会社名 :株式会社BRIコミュニティー
本社 :東京都港区六本木3-4-35 六本木三幸ビル5階
代表 :代表取締役兼CEO 福原 大輔
設立 :2012年9月3日
事業内容 :不動産建物管理
ホームページ :http://www.bricommunity.co.jp/
メール :info@bricommunity.co.jp
電話番号 :03-5786-7660
すべての画像
