不動産クラウドファンディングで新物件を組成準備!SiestaVilla秋津 東京都清瀬市野塩一丁目(西武池袋線「秋津」駅 徒歩8分)|株式会社Brain Trust from The Sun
SPCで所有していた2物件の売却に成功。新物件取得をするビジネスパートナーを探す。戦略的M&Aで株式会社デアルホームの事業承継を行ったことを契機に子会社で不動産特定共同事業許可を目指す。

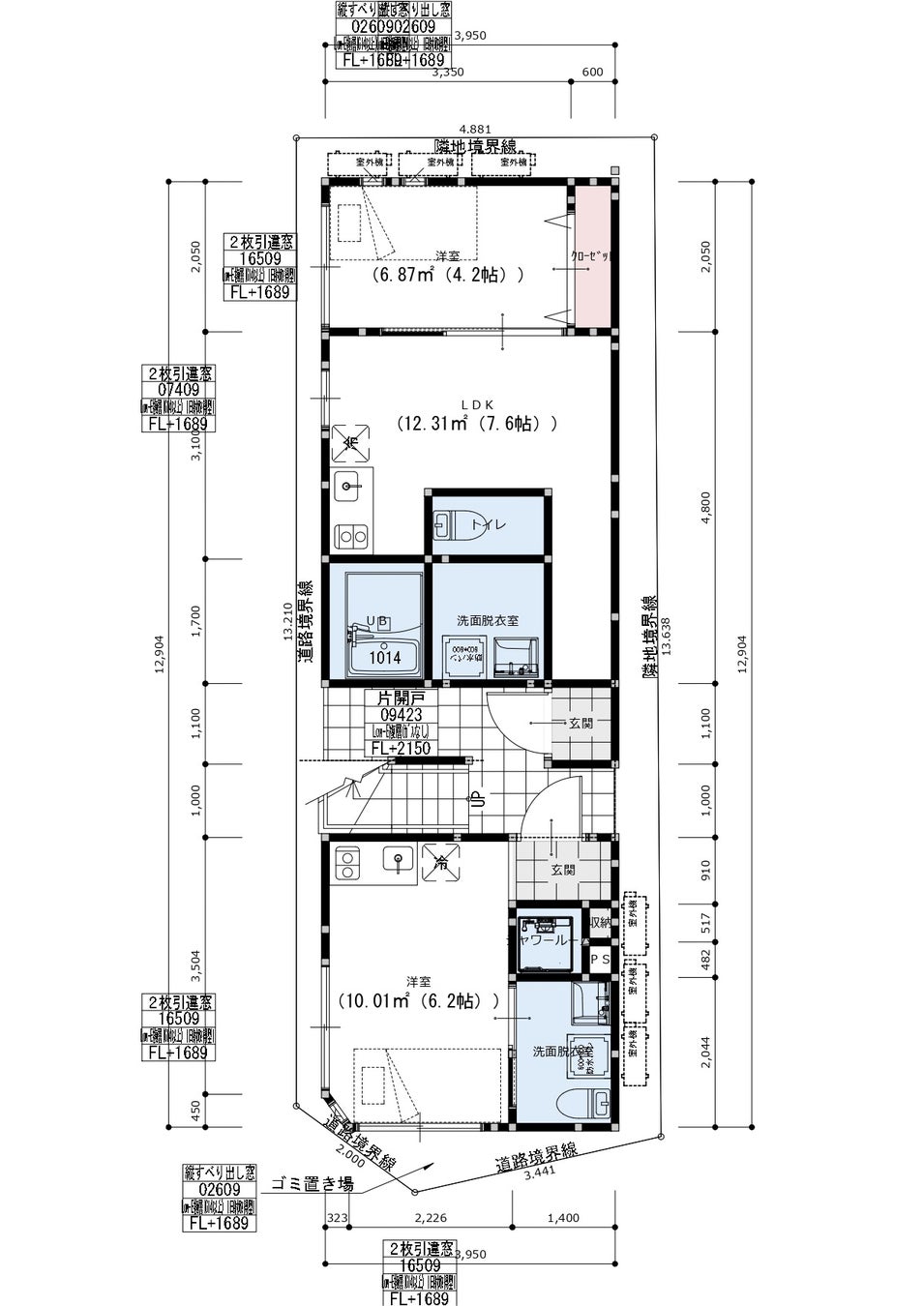
PLAN 1R×3世帯 1DK ×3世帯
101 1R 15.470平米 | 102 1DK 27.060平米
201 1R 15.470平米 | 202 1DK 27.060平米
301 1R 15.470平米 | 302 1DK 27.060平米

合計6世帯の収益物件で個人投資家でも購入しやすい規模になっており、来年の6月頃に竣工予定。2021年にものづくり補助金で整備した不動産クラウドファンディングシステム【Mercurius】で個人投資家を募集をする計画。現在物件は建設中で匿名組合で物件を取得するための資金の1部を募集する。運用は比較的短期(3カ月から6カ月程度)の運用を繰り返し最終的には集まった投資家の中から物件購入希望者を募り販売する。
想定スキーム

※小規模不動産特定共同事業の1号事業では1億円までの出資を受けることが可能。
その他、SPCで所有していた2物件の売却に成功。新物件の取得のためパートナーを探す‼


Terra合同会社と同じスキームでMartis合同会社でWest棟を所有。約2年間の運用後、同時に個人投資家に売却済み。今後は空になった2つのSPCで新たな物件を取得するためビジネスパートナーを探す。
※小規模不動産特定共同事業の2号事業ではSPCを10社、アセットマネジメントすることが可能。一つのSPCに1億円までの出資が可能。ノンリコースローンを調達してレバレッジをかける。
※SPCを利用した倒産隔離 証券化商品に関して投資家からの資金を受け入れる法人について、元々の関係法人(オリジネーター)が倒産した場合にも影響が及ばず、投資家の経済的な権利が保全されるように構築する仕組み
2020年国土交通省が不動産証券化手法を活用したモデル事業形成に向けた支援事業に選定



組成したSPC(Lucifer合同会社)に公益財団法人不動産流通推進センターによる債務保証制度(協業化事業円滑化資金)を利用し、ノンリコースローンによる資金調達を実現。同時に特例投資家からの出資による資金調達を行い、杉並区和泉で老朽アパートの建替えを行った。足立区千住龍田町の物件を追加取得。両物件は2023年に個人投資家に販売済み。
今後の事業展開
株式会社Brain Trust from The Sunでは事業拡大のため、子会社となった株式会社デアルホームで不動産特定共同事業許可を目指します。資本金要件が一億円である不動産特定共同事業1号事業許可のためには増資が必要であるため資本増強を計画、不動産特定共同事業3号事業許可は利益剰余金を資本金に振り替えれば要件はクリアするが、匿名組合出資者の募集には不動産特定共同事業4号免許が必要であるため、親会社である株式会社Brain Trust from The Sunでの許可取得を目指します。
また、今後の事業拡大のために資本提携先・業務提携先を募集しています。この度、戦略的M&Aで株式会社デアルホームの事業承継を行ったことを契機にM&A支援機関に登録し、M&A仲介業も行いながら、事業規模拡大のため積極的に戦略的M&Aに取り組んで参ります。
株式会社Brain Trust from The Sun(ブレイン トラスト フロム ザ サン)について


東京都中央区に本拠を置く不動産コンサルティング企業です。宅地建物取引業、不動産特定共同事業、ファイナンシャルプランニング業務、宿泊業、発電事業を手がけています。不動産の知見を活用し、神奈川県において鎌倉のサーフボードチームと空き家を再生してT-REEF VACATION HOUSEという宿泊施設を運営。鎌倉農泊協議会(令和元年度と令和6年度に農林水産省農山漁村振興交付金採択)、北海道上川郡美瑛町においてびえい農泊DX推進協議会(令和5年度農林水産省農山漁村振興交付金採択)でも中核法人として携わり、ファームズ千代田の敷地内に北の住まい設計社設計の建物を建て宿泊施設の運営を行っています。地方創生の分野で不動産証券化を活用して持続可能な開発目標を達成すべく活動しています。
会社名 :株式会社Brain Trust from The Sun
本社所在地:東京都中央区京橋1-6-13
代表取締役:大川 桂一
事業内容:不動産業・宿泊業・発電事業
設立年月:平成24年(2012年)8月1日
資本金 :12,000,000円
URL :https://www.braintrust-from-the-sun.co.jp/
【本件に関するお問い合わせ先】
株式会社Brain Trust from The Sun
お問い合わせ窓口 電話:090-3913-5914 メールアドレス:k1@ftk-bts.com
このプレスリリースには、メディア関係者向けの情報があります
メディアユーザー登録を行うと、企業担当者の連絡先や、イベント・記者会見の情報など様々な特記情報を閲覧できます。※内容はプレスリリースにより異なります。
すべての画像
