EV充電器の基礎工事がわずか10分!日東工業製Pit-2G専用の置き基礎を開発 (※特許申請中)
1階及び地表への設置に対しては、耐震クラスAを実現。従来工法で2日以上を要していた基礎工事がわずか10分程度で完了。

☞ 施工動画はこちら https://youtu.be/oP1lzKlBGP8
▶開発の背景
政府は、2035年までに新車販売のすべてを電動車率100%にする目標を掲げており、EV充電器においては2030
年までに全国の設置数をこれまでの15万の目標から、2023年8月には30万口へと大幅に引き上げました。その
一方で効果的な充電スポットの増設を目指し、1口あたりに対する設置補助金の採択基準は、より厳格化してい
ます。材料費、人件費の高騰や技術者不足の中で、EV充電器の基礎工事は施設運営者、施工業者にとって費
用、労務の大きな負担となっている上、完成までには数日を要するため設置数拡大への課題となっておりまし
た。こうした課題を解決するため3社のノウハウを集結し、安全で且つ、省コスト、省施工で基礎工事が実現で
きるNTV600を日東工業製EV充電器Pit-2G専用置き基礎として開発、製品化に至りました。
▶NTV600の特長
[ 信頼の安全性 ]
・1階及び地表への設置に対しては、耐震クラスAを実現。アンカーを併用することでアスファルト
舗装面でも耐震クラスSを確保しています。 ※1
・風速40m/sの「猛烈な風」の中でも十分な耐風圧強度を満足しています。 ※2
※1 耐震クラスは建築設備耐震設計・施工指針2014年度版に準じます。
Pit-2G専用の自立スタンドに本体2台を取り付ける場合、充電ケーブル長さ7mまでは基準をクリアします。
充電ケーブル長さ10mの場合は基準をクリアしませんのでご注意ください。
Pit-2Gオプションのケーブルマネージメントはご利用いただけません。
※2 参考資料:気象庁 風の強さと吹き方より
https://www.jma.go.jp/jma/kishou/know/yougo_hp/kazehyo.html
[ 設置コストの大幅低減 ]
・設置場所の掘削、コンクリート打設等の土木工事必要とせず、従来工法の約1/2以下(当社比)の費用で設置
が可能となりました。
[ 施工時間の大幅短縮 ]
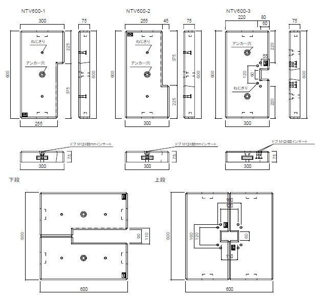
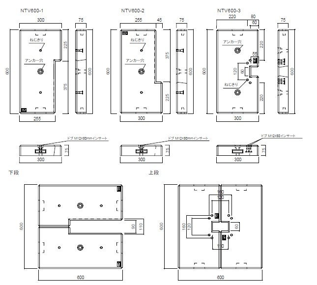
・1ピースが30㎏以下の4分割構造(合計120㎏以下)で構成されており、1人で搬入、設置、施工が可能です。
・従来工法で2日以上を要していた基礎工事がわずか10分程度で完了します。
[ 高い自在性 ]
・四方のいずれからも露出配線できるような入線口を設けており、設置場所の調整や撤去時の原状回復が容易で
す。
▶製品概要


▶販売開始時期
6月頃を予定しています。
■製品・施工についてのお問い合わせ先
南海電設株式会社 ソリューション営業課
メールアドレス:info-base@ev-chargeconnect.com
EV充電サービス特設サイトURL: https://ev-chargeconnect.com/
■EV充電器についてのお問い合わせ先
日東工業株式会社 EVインフラ事業室 マーケティング課
メールアドレス:ev.contactnet.mark@nito.co.jp
EV用充電設備特設サイトURL:https://www.nito.co.jp/quick/evstand/
■製造元
東洋ベース株式会社
URL:http://www.toyo-base.co.jp/contact/
このプレスリリースには、メディア関係者向けの情報があります
メディアユーザー登録を行うと、企業担当者の連絡先や、イベント・記者会見の情報など様々な特記情報を閲覧できます。※内容はプレスリリースにより異なります。
すべての画像
