【新築賃貸マンション】入居者募集開始!デュオフラッツシリーズ/デュオフラッツ葛西、1Rから2LDKの間取りでこだわりの6プランが登場、東西線「葛西」駅徒歩4分で都心にも自然にもアクセス良好
バーチャルモデルルーム内覧可能(2LDK/D,Eタイプ)、家事動線や生活の効率化を考えた回遊仕様を体験。2024年9月にはモデルルーム公開予定(1R,2LDK/A2',Cタイプにて)

不動産投資事業、収益不動産開発事業、不動産賃貸業、リノベーションマンション分譲事業等を展開する株式会社フージャースアセットマネジメント(本社:東京都千代田区、代表取締役社長:小川栄一、以下「当社」)は、新築賃貸レジデンス「デュオフラッツ葛西」の入居者の募集を開始しました。
なお、物件公式HPからバーチャルモデルルームの内覧が可能です(2LDK/D,Eタイプ)。
2024年9月には(1R,2LDK/A2',Cタイプにて)モデルルームの公開も予定しています。
【デュオフラッツ葛西 公式HP:https://www.duo-flats.jp/residence/kasai/ 】
■物件の特徴
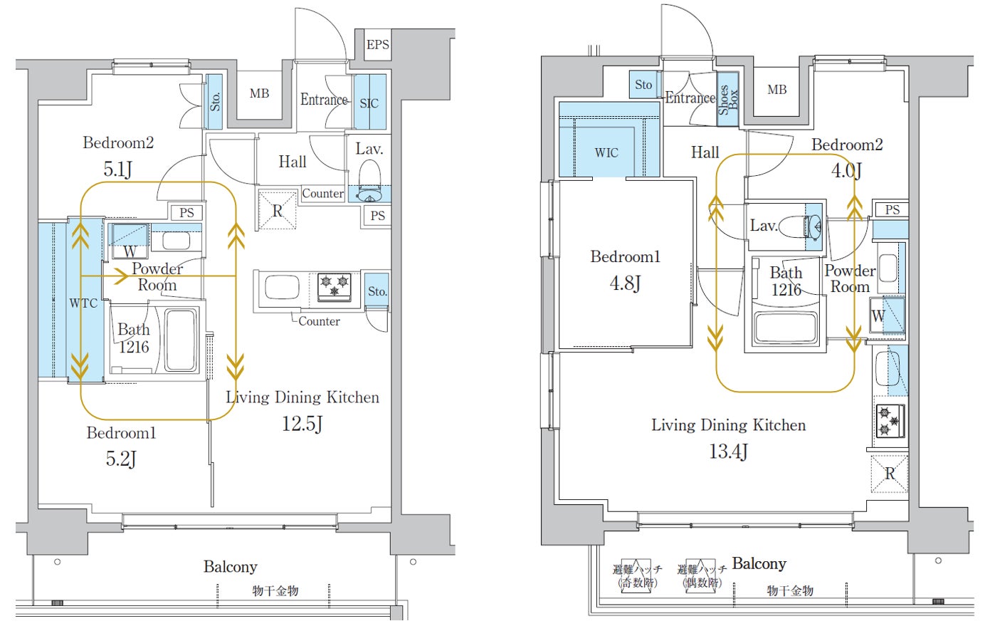
・スムーズな家事を目指した間取りや、オープンなLDKの間取りなど細部までこだわった6プラン
・約50㎡の広々ラウンジスペース
・都心へのアクセスもよい東京メトロ東西線「葛西」駅から徒歩4分







■物件概要
住所:東京都江戸川区東葛西6丁目9-5
構造:RC造・15階建て
総戸数:58戸
竣工日:2024年9月20日
間取り:1R・1K・1DK・2LDK
面積帯:25.26㎡~56.85㎡
駐車場:平置き・機械式駐車場 計8台
バイク置場:あり
駐輪場:あり
■TOPICS
☆ライフスタイルに合わせて選べる3タイプ(25.26㎡、26.67㎡)

☆スムーズな移動が可能な回遊仕様プラン(52.57㎡)

☆バーチャルモデルルーム内覧ができます
回遊仕様タイプの2LDKバーチャルモデルルームをご用意しました。(D・Eタイプ)
内覧お時間がなかなか取れない方にも、部屋のイメージを見ていただくことができます。
物件の公式ホームページよりご覧いただけますので、是非ご活用ください。
9月にはモデルルーム設置・公開も予定しております。
【デュオフラッツ葛西 公式HP】
https://www.duo-flats.jp/residence/kasai/

■デュオフラッツシリーズ
「新しい欲しかった暮らし」をコンセプトとし、全国に展開しているデュオフラッツシリーズです。
物件ごとに間取り・仕様・デザインなど、どれをとっても顧客目線で考え抜いた物件ばかりです。物件の立地特性、お住まいになる方々の生活を細部まで紐解き、この住まいでどんな生活を楽しんでいただけるかを大事にしています。
デュオフラッツ公式HP
デュオフラッツ公式インスタグラム
https://www.instagram.com/duoflats_official?igsh=NzQydHBya2Z1MG9x&utm_source=qr
<株式会社フージャースアセットマネジメント 会社概要>
商 号 株式会社フージャースアセットマネジメント
本社所在地 東京都千代田区丸の内2-2-3
設 立 2000年2月7日
事 業 内 容 不動産投資事業、収益不動産開発事業、不動産賃貸業
代表者氏名 小川 栄一
電 話 番 号 03-3243-2712
会 社 H P https://www.hoosiers.co.jp/company/guid/investment.html
本件に関するお問い合わせ先
株式会社フージャースアセットマネジメント
担当 石村
03-3243-2712
honoka@hoosiers.co.jp
このプレスリリースには、メディア関係者向けの情報があります
メディアユーザー登録を行うと、企業担当者の連絡先や、イベント・記者会見の情報など様々な特記情報を閲覧できます。※内容はプレスリリースにより異なります。
すべての画像
