10代が経営する ライブハウス『巣鴨IFNESS』を5月にフルオープン!若手アーティストへ活躍の場の提供を目指す。
音楽イベント「下北沢学生音楽祭」等を主催するIFNESS株式会社(代表取締役 社長:中村凜(19))は、ライブステージと、リハーサルスタジオを併設した『巣鴨IFNESS』をフルオープン致しました。
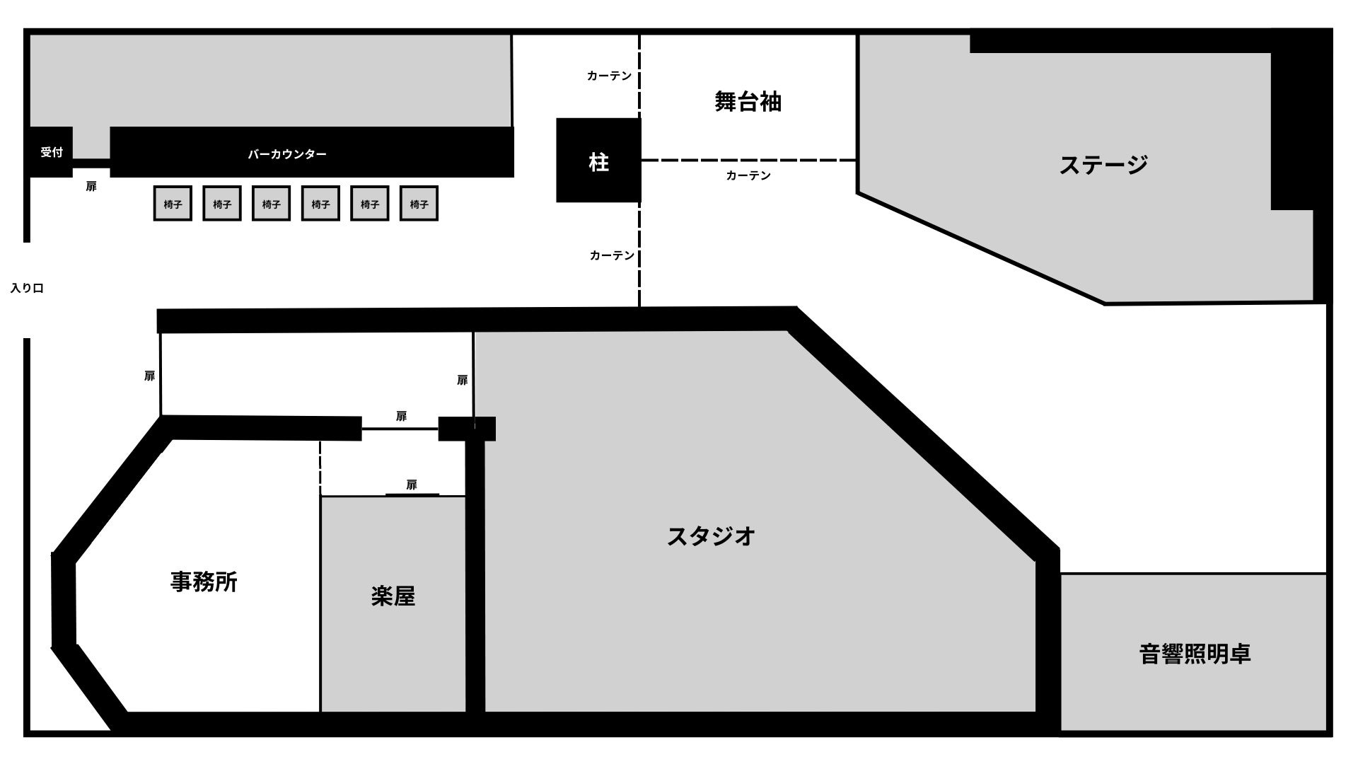
巣鴨駅から徒歩3分の場所に位置し、施設には充実した演出設備が備わり、ライブハウス、スタ ジオ、バーカウンターで最大150人収容できる小規模施設となっています。リハーサルスタジオ は、約12畳の広さがあり、横幅3mの大型鏡も設置しています。
若手アーティストへ活躍の場を増やす目的で、昔のライブハウスの”怖い”イメージを払拭できるよ う、明るい雰囲気の店舗イメージをデザインしました。音楽が好きな若者の”溜まり場”となるよう、 スタッフには現役アーティストや音楽学生を採用し、アーティストとのコミュニケーションを重視した空間を提供します。


会場図面

代表取締役社長 中村凜(19)
高校2年生でIFNESS Entertainment合同会社を設立、数多くのイベントを企画制作。
2024年3月に組織変更を行い、IFNESS株式会社の代表取締役社長となる。
巣鴨IFNESS店長 野澤翼(19)
15歳の頃より会社員としてIT/不動産/教育事業に従事。
17歳の頃よりロックバンド”和楽”のベースボーカルとして活動。
現在はライブハウスから野外フェスまで様々な環境でPA/SR(音響)として従事している。
会社概要
社名 :IFNESS株式会社
所在地 : 〒170-0002 東京都豊島区巣鴨3丁目25−10 バロンハイツ巣鴨 B1
代表者 : 代表取締役 中村凜
設立 : 2021年9月2日
資本金 : 900万円
URL : https://if-ness.com
このプレスリリースには、メディア関係者向けの情報があります
メディアユーザー登録を行うと、企業担当者の連絡先や、イベント・記者会見の情報など様々な特記情報を閲覧できます。※内容はプレスリリースにより異なります。
すべての画像