「WOODBOX」の人気商品住宅「BUNGALOW」狭小プランがUNSTANDARD取扱店にて販売開始!ワンフロアで家族がつながる、今も将来も暮らしたい平屋
2024年2月にリニューアルされた、「WOODBOX」の人気商品住宅「BUNGALOW」住宅「BUNGALOW」(バンガロー)から、狭小プランが登場!

プロダクト概要
WOODBOXシリーズでもトップの人気を誇るBUNGALOWが、従来の間取りをアップデートし狭小プランをリリース。
コンセプトは「ワンフロアで家族がつながる自然と調和する、今も将来も暮らしたい平屋」
時代に左右されないデザインと昼光の活用を最大限に引き出すパッシブ設計を採用。
生活動線・美観・利便性をバランスを良く備えた、統一感のあるシンプルなゾーニングが特徴。
LDKとデッキが連続し、吹き抜けを設けることで開放感を演出。
デザインと使い勝手の良さを兼ね備えた、家族の快適な暮らしを叶えた平屋が誕生した。
【プロダクトデザイン】

無駄を削ぎ落としたシンプルな外観。 ガルバリウムのシャープさの中にアクセントの木板貼りで、モダンさと温かさのコントラストが美しい、経年変化を楽しめる平屋の住まい。

片流れ屋根を活かした勾配天井が開放的な平屋。 各居室へはLDKを介して入る動線で、自然と家族と顔を合わせられる間取りです。 ダイニング上部のロフトはお子様の遊び場や収納など、多機能に使えるスペース。
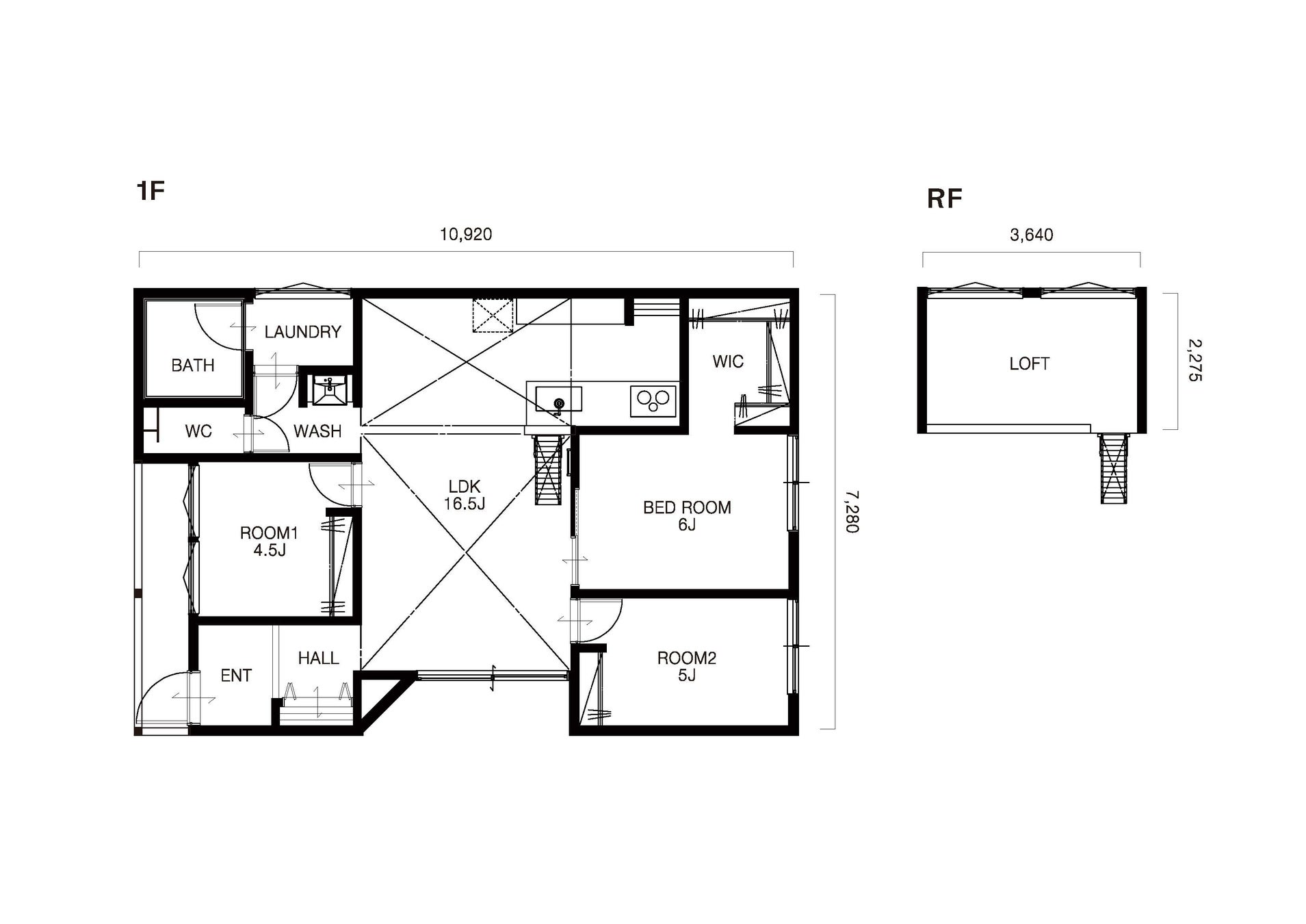
【フロアプラン】

間口7.28m、建坪24坪とは思えない開放的な平屋。 極力廊下をなくし、各居室の広さを確保しました。 ダイニング上部のロフトは収納としても、お子様の遊び場としても多機能に使える空間です。
延床面積 / 72.45㎡(21.92坪)
1F床面積 / 72.45㎡(21.92坪)
RF床面積 / 8.28 ㎡(2.50坪)
【WOODBOXとは?】
WOODBOXはデザイン・性能・価格を追求した1200万円から “理想の家づくり”が叶う規格住宅。
規格住宅は専門家によって設計・耐震構造計算が行われているので、安心感が高く 、決められたプランの中で自由にデザインや設備を選択できます。
建築時の見える費用だけでなく、住み始めてからかかる光熱費などWOODBOXの住宅は生涯コストを意識した家づくりをおこっています。
性能の良い家ほど月々の光熱費が少なく、またメンテナンス性を高めることで維持費を抑えることができ、ランニングコストのかからない家になります。
URL:https://www.woodbox-un.com

【プロダクトサイト】
BUNGALOWの公式サイトはこちら
LIFE QUARTETは住宅ブランド「UNSTANDARD」の規格住宅ネットワークを運営。私たちと同じ視点で家づくりをする全国のパートナーと一緒に、今までの住宅業界の常識に捉われず、家を建てたその先も家が人生を楽しむ場所であるように、ユーザー視点での家づくりを提案しています。
URL:https://lifequartet.jp
UNSTANDARDは、NONDESIGNを筆頭に規格住宅を展開する規格住宅ネットワークです。新築事業が初めてでも安心してスタートできる。充実したサポートシステム。まずはご相談ください。
URL:https://unstandard.jp/contact/?genre=genre01
UNSTANDARD MEDIAはこちら
「LIFE IS COLORFUL.」をテーマにライフスタイルや暮らし方を提案。ユーザーにとっての自分らしく人生
を楽しむ “場” について参考になる事例、アイデアなどを提供しライフスタイルへの関心が強いユーザーが集うプラットフォームを目指しています。
URL:https://unstandard.jp/media
会社概要
株式会社LIFE QUARTET
代表取締役:山本航聡
本部:〒514-0815 三重県津市藤方1036番地1
支店:〒450-0002 愛知県名古屋市中村区名駅1-1-1 JPタワー名古屋21F
〒453-0015 愛知県名古屋市中村区椿町12-8 椿町ビル2C
事業内容:ローコスト住宅の開発、住宅部資材の販売、セールススキルの向上、集客ノウハウの提供、集客ツールのデザイン・企画、各種セミナーの運営・講演
株式会社LIFE QUARTET:https://lifequartet.jp
UNSTANDARD:https://unstandard.jp
株式会社HARMONY
代表取締役:山本航聡
本部:〒514-0815 三重県津市藤方1036番地1
事業内容:自然素材を使用した工務店、建築士による設計、土地の売買や相続等を扱う不動産
株式会社HARMONY:https://shizensozainoie.co.jp
このプレスリリースには、メディア関係者向けの情報があります
メディアユーザー登録を行うと、企業担当者の連絡先や、イベント・記者会見の情報など様々な特記情報を閲覧できます。※内容はプレスリリースにより異なります。
すべての画像
