包む × つながる × 個性 『新家族』街かどモデルハウス オープン
家族をやさしく包む大屋根の家 柏原 Part13
株式会社ウッドフレンズ(本社:愛知県名古屋市、代表取締役社長:林 知秀、以下「当社」)は、2023年3月11日に、商品住宅『新家族』の街かどモデルハウス 柏原Part13を、春日井市柏原町2丁目147番にオープンいたしました。
https://www.woodfriends.jp/construct/modelhouse/detail.php?exhibition=70
https://www.woodfriends.jp/construct/modelhouse/detail.php?exhibition=70
- 家族をやさしく包む大屋根の家 柏原Part13
外壁はホワイトを基調とし、当社工場で生産しているオリジナル木質外壁材WALL WOODをアクセントに使いました。
本物の木の風合いがやさしく爽やかなブルーのWALL WOODが、都会的なデザインに若々しさをプラスしています。
柏原Part13の街並み 中央のB棟が街かどモデルハウス
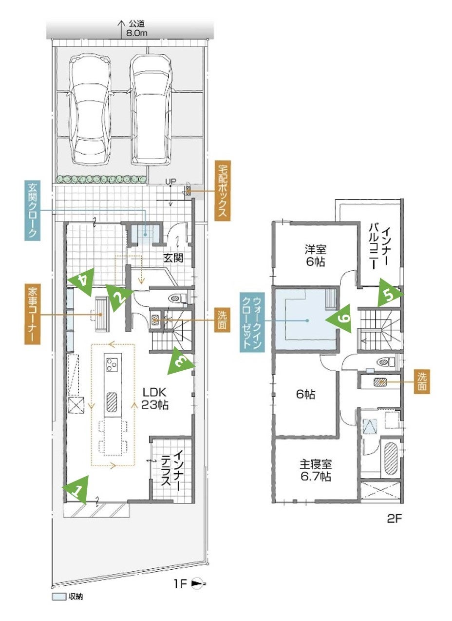
- 家族の気配を感じながら個人時間を楽しめる空間
家族時間の中心をダイニングキッチンとすることで、リビングは多目的に使うことが可能となります。
さらにLDKとつながる土間コーナーやインナーテラスは、趣味スペースとして個人時間をゆったりと過ごすことができます。柏原Part13では家事コーナーも配置し、使いやすい空間としました。
1 キッチン一体型オリジナルダイニングテーブル
2 趣味やワークスペースにおすすめの土間コーナー
3 木のやさしい質感が心地よいLDK
4 パントリーと家事コーナー
- 家族時間と個人時間の心地よいバランス
また、浴室や洗面室などの水廻りも2階に配置しバルコニーはインナータイプとすることで、プライベートな2階とパブリックな1階を使い分けることができます。
休日にはホームパーティや趣味のワークショップを開催するなど、家族や仲間と過ごす時間もプライベートな個人時間も充実する、バランスの取れたライフスタイルを叶える住宅です。
5 天気を気にせず使えるインナーバルコニー
6 大容量のファミリークローク
柏原Part13 B棟プラン
- 街かどモデルハウス 柏原Part13 概要
交通機関/かすがいシティバス「中央公民館前」停 徒歩4~5分
お問合せ先/0120-911-866
一定期間、注文住宅の参考展示場としたのち、土地+建物の分譲住宅として販売します。
https://www.woodfriends.jp/construct/modelhouse/detail.php?exhibition=70
- ウッドフレンズについて
代表取締役社長:林 知秀
所在地:愛知県名古屋市中区栄四丁目5番3号 KDX名古屋栄ビル2F
URL:https://www.woodfriends.co.jp
1982年設立以来、商品・会社・社会が美しくあるという企業理念「より美しく」のもと、
これまでに約12,000戸の住宅を供給。
グループ事業としてゴルフ場運営、ホテル運営、指定管理なども展開。
自社集成材工場を起点として、林業から住宅の販売まで一貫した製造小売の体制の実現を目指しています。
住宅事業を産業として取り組むことで地域の雇用創出をはかりながら、
木質資源を有効活用し、豊かな住環境をつくり、
持続可能な循環型経済を実現する「木質資源カスケード事業」という当社の概念のもと、
地域社会とともにある企業を目指しています。
このプレスリリースには、メディア関係者向けの情報があります
メディアユーザーログイン既に登録済みの方はこちら
メディアユーザー登録を行うと、企業担当者の連絡先や、イベント・記者会見の情報など様々な特記情報を閲覧できます。※内容はプレスリリースにより異なります。
すべての画像
