プライベートサウナ付き!最大10名まで宿泊できる貸切一軒家eni.suite hanazonochoがオープン!ご予約受付中
大阪市西成区に、ニッポンのあたらしい滞在体験をつくる都市型バケーションレンタル施設「eni.suite hanazonocho」をグランドオープン。
→ご予約はこちらから https://zero-share.com/hanazonocho_prt
【eni.suite hanazonochoについて】

eni.suite hanazonochoは、地下鉄四つ橋線 花園町駅から徒歩8分の場所にあるサウナ付き貸切一軒家。プライベートサウナと水風呂付きの宿泊施設が大阪西成区にグランドオープン。


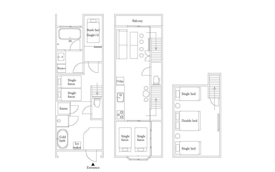
玄関を入るといきなりサウナスペースがお出迎え。都会にいながらリゾート気分が味わえる空間でサウナを満喫していただけます。サウナはHARVIA製電気ストーブでセルフロウリュウが楽しめ、水風呂は製氷機の氷を入れ放題で自分好みの温度に調節が可能です。
サウナ上がりは和を感じることのできる畳の間で「ととのい」旅や観光の疲れを癒すことができます。


滞在者一同が集えるキッチン付きリビングルーム。ソファダイニングでは、くつろぎながら食事を楽しめる快適でおしゃれな空間を体験していただけます。IHコンロを備えたキッチンには、食器やカトラリー、キッチン家電など滞在中に必要なものは全て取り揃えています。



ベッドスタイルが異なる3つの寝室を用意。1階の寝室は、木の質感を感じることができるオーダーメイドの2段ベッド。2階和室では日本の文化を楽しむことができる布団。そして、3階は屋根裏スペースを改修したベッドルームを用意し、家族や友達同士の大人数でも快適な夜を過ごすことができます。


浴室の窓からは、竹細工を施した和の空間が楽しめ、和を感じながらリラックスして入浴することができます。化粧水や乳液、クレンジングなどアメニティ類も豊富に取り揃えています。
【eni.suite hanazonocho間取り図】

【都市型バケーションレンタル eni.】

eni.のコンセプト
extraordinary(非日常)
narrative(物語)
identity(自分であること)
. 周りを旅する
忙しい日々を離れて、人生をすこしだけステイしませんか。eni.(エニ)はニッポンのあたらしい滞在体験をつくる都市型バケーションレンタルです。ゆっくりとくつろげる空間づくりをいちばんに考えながら、思い出に残したくなる世界観とインテリアにもこだわりました。リラックスするほどに、本来のジブンを取り戻していく。旅する人たちの物語の1ページをつづる、そんな居場所になりたいと思います。
【ご予約受付中】
ご予約は下記よりお願いします。
最低宿泊日数が2泊3日からとなります。
→eni.シリーズのご予約はこちら https://zero-share.com/eni_prt
<当施設の概要>
●施設名:eni.suite hanazonocho
●住所 :〒557-0034 大阪府大阪市西成区松1丁目8−4
●アクセス :地下鉄四つ橋線 花園町駅から徒歩8分
●予約サイト:https://zero-share.com/hanazonocho_prt
●料金プラン:40,000円~
※予約サイトより、事前にご予約ください。
■運営会社概要
企 業 名 : 株式会社LDKプロジェクト
所 在 地 : 〒541-0051 大阪府大阪市中央区備後町2丁目5-6-1409
代 表 者 : 代表取締役 生田博之
設 立 : 2014年2月
事業概要: 民泊施設の運営管理、レンタルスペースの運営管理、不動産賃貸業、清掃業務、貸別荘運営、サウナ事業
U R L : https://ldk-pjt.com/
民泊運営代行に関するご相談やご質問があればお気軽にお問い合わせください。
【本件に関するお問合わせ・取材等のお申込み先】
株式会社LDKプロジェクト 運営管理担当
E-mail:marketing.div@ldk-pjt.com
すべての画像
