包む×つながる×個性『新家族』街かどモデルハウス 2棟オープン
高森台Part8・南大高東Part4
高森台Part8
https://www.woodfriends.jp/construct/modelhouse/detail.php?exhibition=72
南大高東Part4
https://www.woodfriends.jp/construct/modelhouse/detail.php?exhibition=73
家族をやさしく包む大屋根の家 「WALL WOOD」の本物の木の風合いと素材感
商品住宅『新家族』は、包む×つながる×個性をコンセプトとしています。
外観は、板金素材の大屋根で包み込まれたイメージとし、片流れ屋根から出る軒と袖壁がつながるファサードデザインが特徴です。
外壁のアクセントには、当社工場で生産しているオリジナル木製外壁材「WALL WOOD」を使用しています。
高森台Part8は薄いグレーを基調とし、さわやかな印象のブルーの「WALL WOOD」を使い『新家族』の都会的なファサードデザインに若々しさをプラスしました。
南大高東Part4はグリーンの「WALL WOOD」と同色の軒天が、ファサードのラインを際立たせナチュラルな色合いでありながらシャープな印象となっています。
どちらも「WALL WOOD」の本物の木の風合いとやさしい素材感が、心地よさを与えてくれます。
高森台Part8外観
南大高東Part4外観
家族のつながりを実現する空間かつ、高性能な住宅
『新家族』はライフスタイル提案型の商品住宅として、ダイニングキッチンを家族のコミュニケーションの中心とし、リビングや土間コーナーなどを多目的に使える空間としています。
忙しい平日や個人の時間を大切にする休日でも家族のつながりを感じられる空間としながら、同時に将来求められる高性能な住宅を実現するため、断熱等性能等級5と一次エネルギー消費量等級6を実現。太陽光発電システムを搭載し、Nearly ZEHの基準をクリアしています。
エネルギー消費削減量75%以上の達成による光熱費の削減効果、断熱性能の高さによる快適で健康な暮らしも叶う高性能な住宅です。
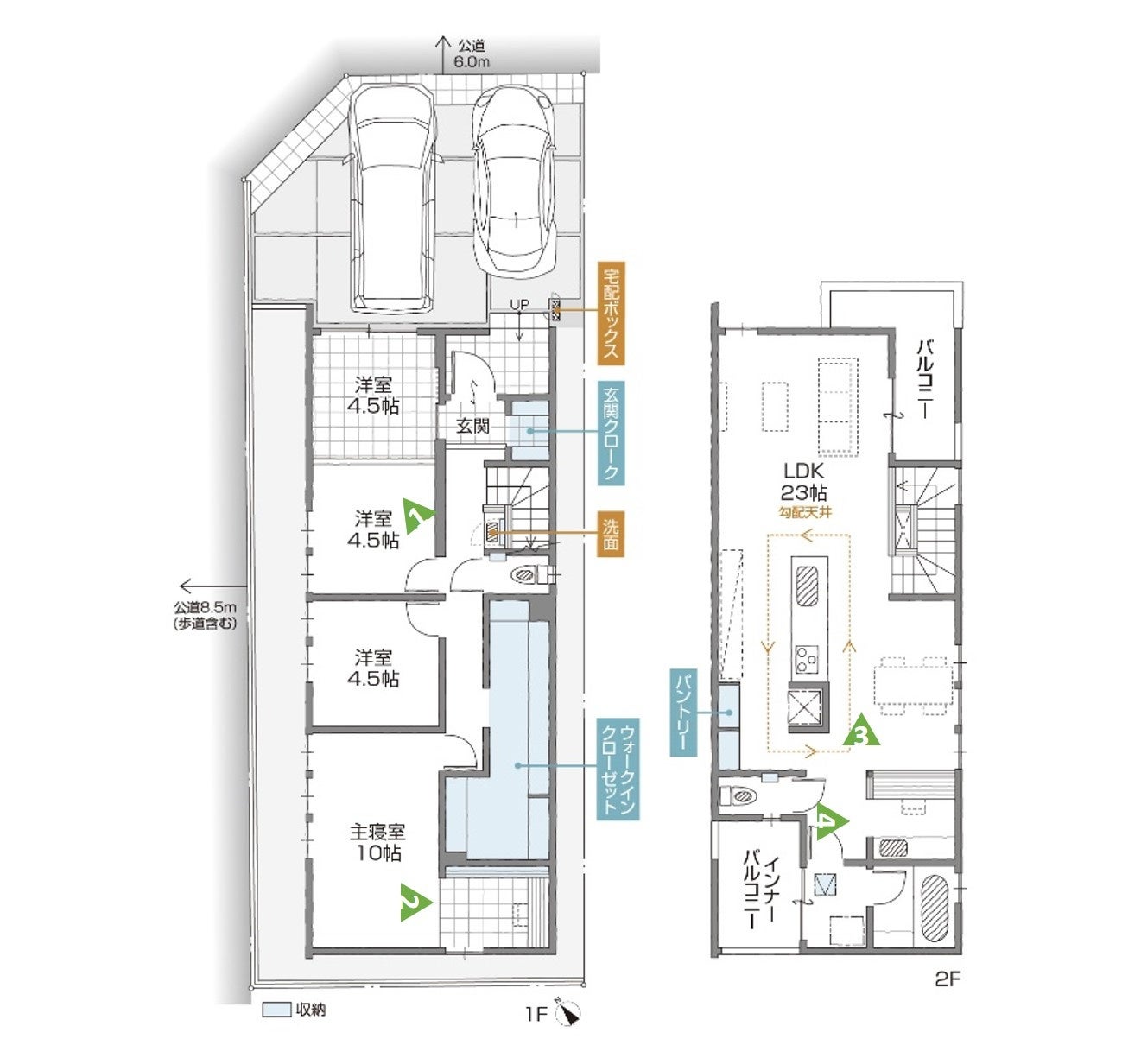
高森台Part8/パブリックな時間もプライベートな時間も充実
22.8帖のLDKと土間コーナーから成る1階は、ダイニングを家族時間の中心とすることで、リビングや土間コーナーを多目的に使うことが可能となります。浴室や洗面室などの水回りを2階に配置し、ルーフバルコニーを隣接することで、プライベートな2階とパブリックな1階を使い分けることができます。
土間コーナーを利用した自宅グランピングやワークショップに仲間を招いて過ごすパブリックな時間も、プライベートな個人の時間も充実するバランスの取れたプランです。
1 リビングや土間コーナーの中心に配置したダイニングキッチン
2 動線に優れた多目的に活用できる土間コーナー
3 DKに併設したワークスペース
4 手洗いコーナーのタイルはインテリアのアクセントにも
高森台Part8プラン
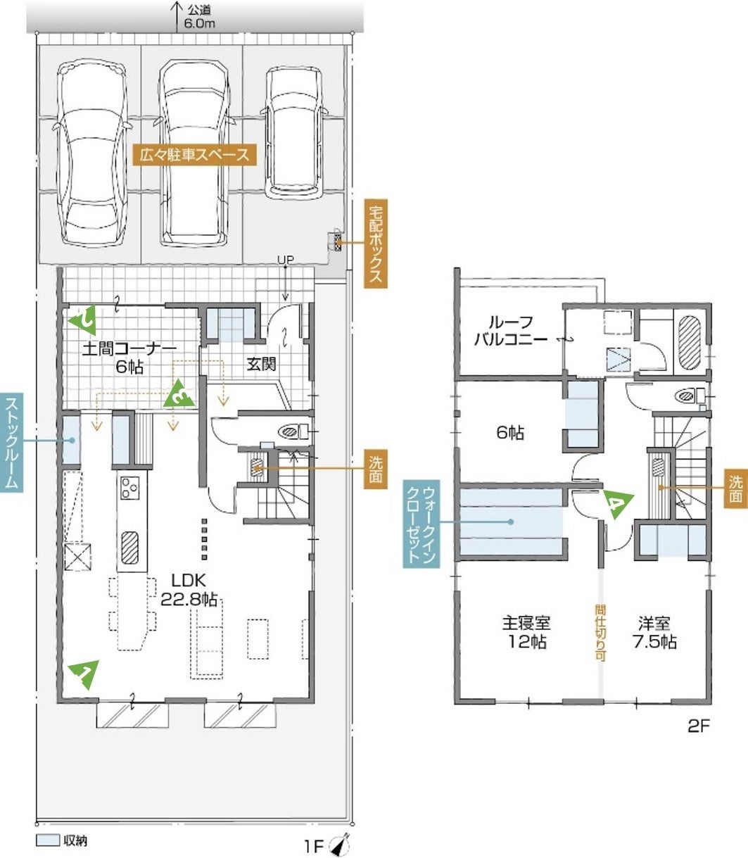
南大高東Part4/アクティブなライフスタイルを効率的に楽しむ
1階に4室の洋室を設け、LDKや水回りは2階に集めました。土間空間となっている1室は、自宅キャンプを楽しんだり趣味のDIYに没頭したり、家族全員で共有して多目的に利用できます。また、大容量のファミリークロークに収納を集約することで効率的な家事動線となり、個室はすっきりと使用できます。回遊タイプのダイニングキッチンは、パントリーやLDKの使い勝手の向上だけでなく、大人数のホームパーティにも対応可能です。1階2階ぞれぞれに設けたワークスペースは、在宅勤務やスタディスペースなどニーズにあわせて活用できます。アクティブなライフスタイルを楽しみながら、効率的な暮らしを叶えるプランです。
1 家族キャンプやDIYにおすすめの土間空間
2 個人の時間に活用できるワークスペース
3 木のやさしい質感が心地よいLDK
4 LDK横のワークスペースには手洗いも設置
南大高東Part4プラン
街かどモデルハウス 高森台Part8 概要
所在地/愛知県春日井市高森台6丁目1番
交通機関/名鉄バス「細野」停 徒歩約1分
お問合せ先/0120-911-866
一定期間、注文住宅の参考展示場としたのち、土地+建物の分譲住宅として販売します。
https://www.woodfriends.jp/construct/modelhouse/detail.php?exhibition=72
街かどモデルハウス 南大高東Part4 概要
所在地/愛知県名古屋市緑区大根山1丁目701番
交通機関/JR東海道本線「南大高」駅 徒歩約20分、名古屋市営バス「権平谷」停 徒歩約10分
お問合せ先/0120-911-866
一定期間、注文住宅の参考展示場としたのち、土地+建物の分譲住宅として販売します。
https://www.woodfriends.jp/construct/modelhouse/detail.php?exhibition=73
ウッドフレンズについて
社名:株式会社ウッドフレンズ
代表取締役社長:林 知秀
所在地:愛知県名古屋市中区栄四丁目5番3号 KDX名古屋栄ビル2F
URL:https://www.woodfriends.co.jp
1982年設立以来、商品・会社・社会が美しくあるという企業理念「より美しく」のもと、
これまでに約13,000戸の住宅を供給。
グループ事業としてゴルフ場運営、ホテル運営、指定管理なども展開。
自社集成材工場を起点として、林業から住宅の販売まで一貫した製造小売の体制の実現を目指しています。
住宅事業を産業として取り組むことで地域の雇用創出をはかりながら、木質資源を有効活用し、
豊かな住環境をつくり、持続可能な循環型経済を実現する「木質資源カスケード事業」という当社の概念のもと、
地域社会とともにある企業を目指しています。
このプレスリリースには、メディア関係者向けの情報があります
メディアユーザー登録を行うと、企業担当者の連絡先や、イベント・記者会見の情報など様々な特記情報を閲覧できます。※内容はプレスリリースにより異なります。
すべての画像
