地域最大級!大阪黒門エリアに最大22名まで宿泊できる一棟貸切ビルeni.kuromonがオープン!ご予約受付中
大阪市中央区に、ニッポンのあたらしい滞在体験をつくる都市型バケーションレンタル施設「eni.kuromon」をグランドオープン。
→ご予約はこちらから https://zero-share.com/kuromon_prt
【eni.kuromonについて】

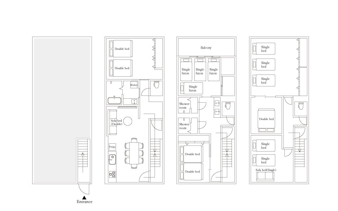
eni.kuromonは、地下鉄堺筋線・千日前線 日本橋駅から徒歩3分の場所にあるビル一棟貸切りの宿泊施設です。地域最大級最大22名まで宿泊でき、人気観光地の黒門市場まで徒歩3分、市内中心部までのアクセスも抜群のため大阪観光の拠点に最適です。
2階から4階が宿泊エリアとなっており、各フロア異なるテイストのインテリアを採用し、和と洋の両方を楽しめる空間となっています。浴槽付きバスルームやシャワールームなど水回り設備が充実しているので大人数の宿泊でも快適に過ごすことができます。



2階エントランスを入ると、まるで高級ホテルのような落ち着いた雰囲気のある空間がゲストをお出迎え。大勢が集うことができるリビングダイニングは、大きなキッチンが併設されており調理機器やキッチン家電、食器類を豊富に取り揃えています。
ダブルベッドが2台ある寝室はプライベートが保てる個室で快適な夜を過ごせ、浴槽付きバスルームで旅や観光の疲れを癒すことができます。



3階は日本が感じられる和を取り入れた空間が広がり、畳のある和室には4組の布団を敷くことができお子様連れでも安心して使っていただける寝室となっています。寝室はダブルベッドが2台ある個室もご用意しています。
広々とした洗面化粧台と、個室のシャワールームが2箇所あるので、ゆっくりとお出かけの準備をしていただけます。



4階は都会の真ん中にいてもリゾート地に来たような気分を味わえる日当たりがいい明るくて清潔感のあるベッドルームとなっています。友達に自慢したくなるような空間で、出発の朝まで快適に過ごしていただけます。
【eni.kuromon間取り図】

【都市型バケーションレンタル eni.】

eni.のコンセプト
extraordinary(非日常)
narrative(物語)
identity(自分であること)
. 周りを旅する
忙しい日々を離れて、人生をすこしだけステイしませんか。eni.(エニ)はニッポンのあたらしい滞在体験をつくる都市型バケーションレンタルです。ゆっくりとくつろげる空間づくりをいちばんに考えながら、思い出に残したくなる世界観とインテリアにもこだわりました。リラックスするほどに、本来のジブンを取り戻していく。旅する人たちの物語の1ページをつづる、そんな居場所になりたいと思います。
【ご予約受付中】
ご予約は下記よりお願いします。
最低宿泊日数が2泊3日からとなります。
→eni.シリーズのご予約はこちら https://zero-share.com/eni_prt
<当施設の概要>
●施設名:eni.kuromon
●住所 :〒542-0073 大阪市中央区日本橋1丁目24-10
●アクセス :地下鉄堺筋線・千日前線 日本橋駅から徒歩3分
●予約サイト:https://zero-share.com/kuromon_prt
●料金プラン:39,000円~
※予約サイトより、事前にご予約ください。
■事業主概要
企 業 名 : 株式会社リンクス
所 在 地 : 〒541-0046 大阪市中央区平野町1丁目7番3号 BRAVI北浜 7階
代 表 者 : 代表取締役 毛利英昭
設 立 : 2009年5月
事業概要: 不動産の売買・賃貸・管理、及び仲介・販売代理、不動産のリノベーション事業、ファイナンシャルプランニング業務、民泊事業
U R L : https://linx-osaka.co.jp/
■運営会社概要
企 業 名 : 株式会社LDKプロジェクト
所 在 地 : 〒541-0051 大阪府大阪市中央区備後町2丁目5-6-1409
代 表 者 : 代表取締役 生田博之
設 立 : 2014年2月
事業概要: 民泊施設の運営管理、レンタルスペースの運営管理、不動産賃貸業、清掃業務、貸別荘運営、サウナ事業
U R L : https://ldk-pjt.com/
民泊運営代行に関するご相談やご質問があればお気軽にお問い合わせください。
【本件に関するお問合わせ・取材等のお申込み先】
株式会社LDKプロジェクト 運営管理担当
E-mail:marketing.div@ldk-pjt.com
すべての画像
