mui Labとジブンハウス、時を超えて家族の絆を深める家【muihaus.】を発表
家族をつなぐテクノロジー「柱の記憶」が佇む暮らし
人と自然とテクノロジーの調和のとれた佇まいを提唱し、暮らしに溶け込むインターフェースを用いたテクノロジーを社会実装するmui Lab株式会社(本社:京都市、代表取締役・大木和典 、以下mui Lab)と、家づくり体験を通じて「自分らしい暮らし」を提案するJIBUN HAUS.株式会社(本社:東京都、代表取締役・内堀雄平)は、時を超えて家族の絆を深める家「muihaus.」を共同開発し、2021年12月20日より提供を開始します。

「muihaus.」を象徴するのは、家族の軌跡を紡ぐ「柱の記憶」です。「柱の記憶」は、家族が書き込んだ落書きや子どもの身長などをデジタル柱に記録し、いつでも思い出として引き出すことができるmui Labの製品で、時と共に次第に愛着を持てる大黒柱のような存在になることが期待されます。人の生活や自然と調和したテクノロジーを活用し、家族との時を紡ぐ家が「muihaus.」です。家族同士の繋がりや、外の自然との繋がりをおだやかに感じられる間取りにより、そこで暮らす人同士が互いの存在や繋がりを感じられる暮らしを実現します。また、自然と街に溶け込み、暮らしと家がその街の景色の一部となることも意識してデザインされています。
mui製品の「柱の記憶」
mui LabとJIBUN HAUS.の両社は、今後も協業し、テクノロジーと人間の関係性を追求しながら、住まいのみならず、人々の暮らしや生き方に関するアイデアを様々なプロダクトやサービスを通じてご提案していきます。
■muihaus.プロジェクトページはこちら
https://jibunhouse.jp/mui-haus
日本では、少子化や核家族化、コロナ禍などの社会現象を経て、家中(いえなか)の暮らしを充実させることや、家族やコミュニティでの関係性を見直す動きが出てきています。それに伴い、家族が暮らしを営む「家」は、箱としての利便性・効率性だけでなく、住まう人のありたい生き方を実現し、家族との時間を大切に育む役割がいっそう求められています。 そのようなニーズを踏まえ、mui LabとJIBUN HAUS.株式会社は、最新のテクノロジーを駆使して、家族の絆を深められる家、また、住まい手が自分らしく暮らせる家「muihaus.」を提供することにしました。
■「人の生活や自然と調和したテクノロジー」という思想が共鳴し、家の共同開発へ
以前より、暮らしにおいて根源的な「豊かさ」を求め、人に寄り添うテクノロジーを社会に実装してきたmui Lab。その世界観、そしてデザインと技術力が、「家族がもっと家族になれる家づくり。」をコンセプトに、ハウジングテック会社として家を提供してきたJIBUN HAUS.株式会社と共鳴し、両者は2020年10月より協業を開始しました。
muiボード
「muihaus.」の設計は、岐阜を拠点に国内外で 「Simple Hybrid」(簡素さの混成)を コンセプトとして建築・空間・街をつくる独自の活動を展開する伊藤維建築設計事務所に依頼し、両者の望む世界観を住まいという形に落とし込むことが可能となりました。
■互いの存在やつながりを感じられる暮らしの実現に必要な、テクノロジーとの余白
「muihaus.」では、mui Labがテクノロジーのデザインの際に重要視している点でもある、人と情報技術の間に余白(おだやかな距離感)を設け、そこで暮らす人同士がお互いの存在や繋がりを感じられる暮らしが実装されています。具体的には「muihaus.」は以下のような特長を備えています。
- 「柱の記憶」に家族の思い出を保存し、いつでも再生、追憶できる
「muihaus.」では、ワコムのデジタルペンで記録した子供の身長や落書きがデジタルデータとして「柱の記憶」に蓄積され、家族の軌跡を時間を超えて追体験することができます。家族で過ごした瞬間ごとの小さくも大切な記憶は、テクノロジーのサポートによって、遠く未来まで受け継がれ、家族の今と未来を緩やかに繋ぎます。
「柱の記憶」に記録する様子
- 「muiボード」が無為にアシストする、自然で穏やかな睡眠・起床
「muihaus.」に備えられた「muiボード」は、スマートホーム機器と同じく、リモコンとして照明やエアコン、音楽スピーカーなどをコントロールする他、インターネットとつながり天気やカレンダー情報の入手、ラジオ視聴ができます。また、二十四節気に合わせて季節を感じる詩が届いたり、自然に起床や就寝を促す光源調整を行う機能を備えています。音や時刻の設定により、無理なくゆったりとした起床を促す目覚ましタイマーや、設定した就寝時間に向けて徐々に暗くなる照明機能を備える「muiボード」が、自然で穏やかな睡眠・起床環境を整えます。

- 家族の心地よいつながりを感じる間取りとデザイン
muihaus.は、伊藤維建築設計事務所によって設計されました。特徴的な点は、家の4面が同じ形で、内周を回遊できる作りであること、そして、窓を大きく採用していることです。これは、家族同士がつながりやすいだけでなく、外界の自然とのつながりも意識した設計となっています。1Fは水回りを内側に集約し、窓のついた廊下とダイニングキッチンを外側に持ってくることで、外部の時間や空間の変化を家の中にいながら感じられるような造りとなっています。

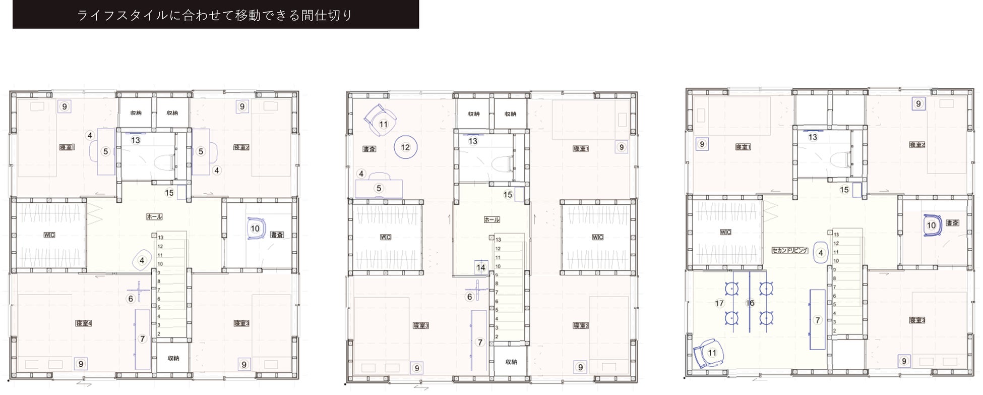
2Fは全ての部屋が角部屋となっており、子供の成長過程やその時のライフスタイルに合わせて自由に間取りを調整できるパーティションを設置してます。このパーティションの配置を変えることで、2Fの部屋をスッキリと四分割したり、隣の部屋同士を接続させたり、第二のリビングやテレワークの空間を作ったりといった、自由度の高いレイアウトが可能です。
間取り図
■テクノロジーが実現する家族の絆を深める新時代の家の在り方
今回の、mui Labとジブンハウスが共同開発した、時を超えて家族の絆を深める家「muihaus.」は、全国のジブンハウス加盟店で販売していきます。利便性や効率性を追求するハードとしてだけではなく、そこに暮らす人々の「自分らしい暮らし」の実現、ひいては「家族がもっと家族になれる家づくり」の一助となれるような家づくりを提案していきます。
■テクノロジーを駆使した規格住宅ブランド「ジブンハウス」とは
テクノロジーを駆使した規格住宅ブランド「ジブンハウス」は、「家族がもっと、家族になれる家づくり。」を提供する「スマートカスタム住宅」を全国の加盟店とともに提案しています。「スマートカスタム住宅」とは、VRでの内覧や、リアルタイムの見積もり、明朗な会計を通じて、誰もがよりスマートに自分の理想の暮らしを実現できる、新しい家の買い方です。ジブンハウスは、「スマートカスタム住宅」によって、家の買い方・探し方そのものを変え、そのプロセスを通じて、暮らしの豊かさや家づくりの楽しさを伝えています。
https://jibunhouse.jp/
■ JIBUN HAUS.株式会社とは
JIBUN HAUS.株式会社は、「暮らしを変える、未来をつくる」というビジョンを実現するため、「家をジブンにする。」をミッションに掲げ、テクノロジーを駆使して、人が自分らしい暮らしや生き方を見つける規格住宅「スマートカスタム住宅」を提供しているハウジングテック企業です。「ジブンハウス」事業では、VRでの内覧や、リアルタイムの見積もり、明朗な会計を通して、誰もがよりスマートに自分の理想の暮らしを実現できる、新しい家の買い方「スマートカスタム住宅」を展開しており、加盟店数は北海道から沖縄まで全国約140以上にのぼります。「MY HOME MARKET」事業では、日本ユニシス株式会社とともにバーチャル住宅展示場プラットフォームを展開しています。他にも、「VR・ARソリューション」事業や、地域の工務店の魅力を伝える「WARP HOME」事業を行っており、これらの事業を通じて、家づくりや住まいを選択する過程を新しいものにする体験を、社会の隅々にまで届ける挑戦を行っています。
■mui Lab株式会社について
2017年創業。人と自然とテクノロジーが調和することを目指し、特許を有する独自のデザインアプローチとエンジニアリングを元に新たなテクノロジーを社会に実装するスタートアップ企業です。老子の謳う「無為自然」の思想のもと、人間の暮らしの中にテクノロジーが無為に存在する「佇まい」の実現を目指しています。
京都・御所南、老舗の家具屋が立ち並ぶ夷川通り沿いのオフィスにて、日々、京都の伝統とコミュニティに触れながら発想を生み出しています。近年急速に進むデジタル化の中で、テクノロジーと人間の関わり方を、いかに作為的ではなく自然な形でデザインできるか。日本人が古くから持つ「侘び寂び」の感覚と、1995年に米国にて提唱された「カーム・テクノロジー(穏やかな技術)」の理念を融合させることで、人の暮らしに溶け込む唯一無二のテクノロジーを提供しています。詳しい情報は、こちらをご覧ください。
https://muilab.com/
【リクルートのお知らせ】
mui Labでは、人の心を豊かにする技術を社会実装するためのエンジニア、UIデザイナー、プロジェクトマネージャーを募集しております。mui Labチームと共に、唯一無二のユーザーインターフェースと体験を創り出す仲間を求めています。詳細はこちら:https://muilab.notion.site/mui-Lab-Careers-at-mui-Lab-246a02308e1a4910817d77adcc427704
■ muiのSNSでは様々な情報を発信中
https://muilab.com
https://www.facebook.com/muilab/
https://twitter.com/mui_labo
https://www.instagram.com/muilab/
https://medium.com/@muilab
【本件に関するお問い合わせ先】
■メディアのお問い合わせ
mui Lab株式会社 広報担当
Mail:press@muilab.com
■ビジネスのお問い合わせ
mui Lab株式会社 代表
Mail: info@muilab.com
このプレスリリースには、メディア関係者向けの情報があります
メディアユーザーログイン既に登録済みの方はこちら
メディアユーザー登録を行うと、企業担当者の連絡先や、イベント・記者会見の情報など様々な特記情報を閲覧できます。※内容はプレスリリースにより異なります。
すべての画像
