明豊エンタープライズ 新築一棟投資用賃貸住宅「EL FARO」シリーズ「EL FARO目黒Ⅰ」を竣工
明豊オリジナルプランで間取りロス削減を実現
竣工した「EL FARO目黒Ⅰ」
「EL FARO(エルファーロ)」シリーズとは
新築一棟投資用賃貸住宅「EL FARO」シリーズはスペイン語で「灯台」を指し、「街を照らす」、「住まう人の道標」という意味も含んでいます。質感の高い外壁やロートアイアン調、モザイクタイルなどスペイン建築の美しい街並みを表現し、夜には優しい灯りが生む美しい陰影で、住む人の心の拠り所となるよう設計しております。
(参考:https://meiho-est.com/business/elfaro/)
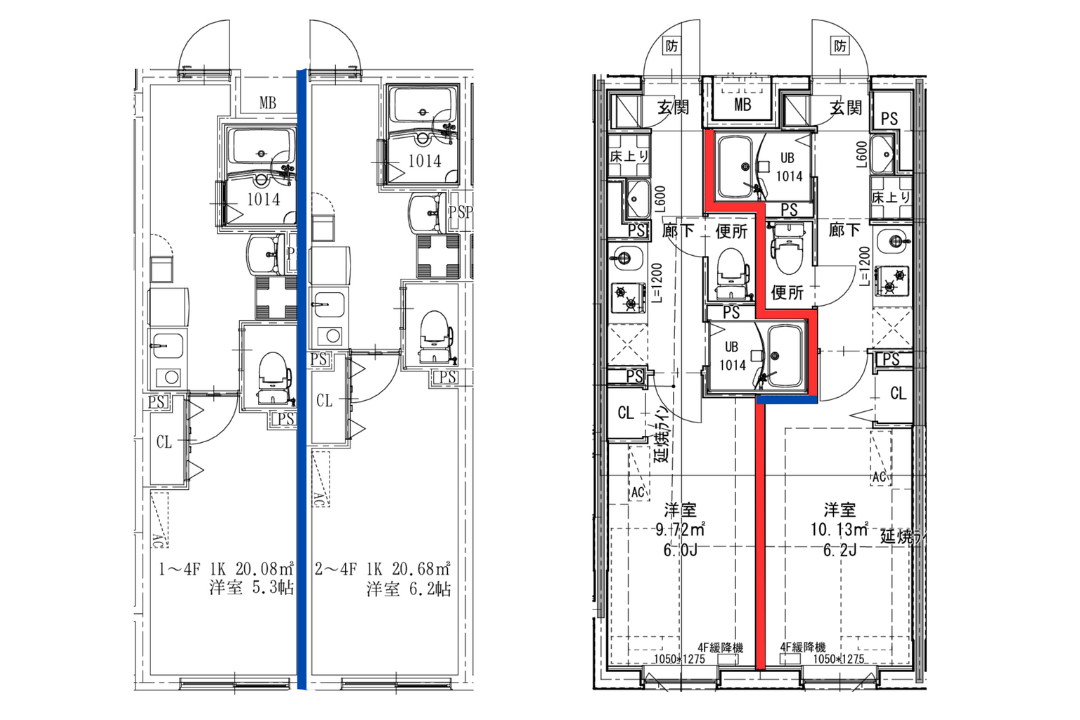
間取りにおける面積ロス削減でオーナー様へ収益性の高い賃貸事業提案が可能に
一般的に間口が2.8m未満のマンションの住戸プランでは、間取り構成において水回り・廊下の面積ロスが課題となっていましたが、明豊エンタープライズのオリジナルプランによってロスの削減を実現しました。「EL FARO」の構造であるRC造では、通常直線で設計される戸境壁を凹凸形状で間取りを組み合わせ、水回りを効率良く配置することで、面積ロスを削減。
また、コンクリート壁より軽い乾式耐火遮音壁を採用することでレイアウトの幅が広がり、工事費も削減しました。本プランにより、オーナー様へ収益性の高い賃貸事業提案が可能となりました。
一般的なプラン(左)と明豊オリジナルプラン(右)※青色=コンクリート、赤色=乾式耐火遮音壁 間口2.35m以上の住戸が2戸横並びであれば採用可能
「EL FARO目黒Ⅰ」は、明豊エンタープライズの本社所在地である目黒の初物件。
施工を株式会社明豊エンジニアリング(東京都目黒区:代表取締役 阪本 伸司)、賃貸管理を株式会社明豊プロパティーズ(東京都目黒区:代表取締役 太田 孝)が担当し、明豊エンタープライズグループで物件価値の最大化を実現しています。
同物件でも明豊エンタープライズのオリジナルプランを採用しており、一般的なプランと本プランで比較すると、間取りでは洋室が約0.5帖増加。さらに、部屋を最大限に広く設計することができます。
明豊エンジニアリング代表取締役の阪本は「明豊エンタープライズのオリジナルプランは、戸境壁は直線だという既成概念を逆手に取り、乾式耐火遮音壁と組み合わせることにより成立したプランです。現在、この派生プランとして洗面脱衣室付や1DKを計画中。引き続き、多様な場面で活用してロスのない最大限の物件価値を見出せるような商品を提供していきたい」と話しました。
「EL FARO目黒Ⅰ」の間取り図
「EL FARO目黒Ⅰ」の物件概要
名 称:EL FARO目黒Ⅰ
所 在:東京都目黒区下目黒2丁目1-5
交 通:東急目黒線・東京メトロ南北線・都営三田線「目黒」駅 徒歩6分
JR山手線「目黒」駅 徒歩8分
延床面積:378.36㎡
階 数:4階建
総 戸 数:12戸(1K/5戸、1DK/3戸、1LDK/4戸)
管理会社:株式会社明豊プロパティーズ
竣 工 日:2023年11月27日
入居開始日:2023年11月29日
明豊エンタープライズグループについて
創業56年、物造りにこだわった信頼と実績の東証上場デベロッパーとして、東京23区を中心に100棟を超える“新築1棟投資用賃貸住宅”を供給している株式会社明豊エンタープライズ(東京都目黒区:代表取締役 矢吹 満)を親会社とし、賃貸管理会社の株式会社明豊プロパティーズ(東京都目黒区:代表取締役 太田 孝)、株式会社ハウスセゾンエンタープライズ(京都府京都市:代表取締役 奥山 秀昭)、物件保有会社の株式会社ムーンアセット(京都府京都市:代表取締役 杉本 圭司)、建設会社の株式会社明豊エンジニアリング(東京都目黒区:代表取締役 阪本 伸司)、株式会社協栄組(東京都世田谷区:代表取締役 五十嵐 一洋)で構成されております。
明豊エンタープライズグループ全体として、一生涯のお付き合いと次世代に受け継ぐ想いを大切にしております。
(参考)明豊エンタープライズグループ体制図

株式会社明豊エンタープライズ 会社概要
代表:代表取締役 矢吹 満
本社:東京都目黒区目黒2-10-11目黒山手プレイス4F,5F,9F
設立:1968年9月9日
ホームページ:https://meiho-est.com/
事業内容:不動産開発事業
このプレスリリースには、メディア関係者向けの情報があります
メディアユーザー登録を行うと、企業担当者の連絡先や、イベント・記者会見の情報など様々な特記情報を閲覧できます。※内容はプレスリリースにより異なります。
すべての画像
- 種類
- 商品サービス
- ダウンロード
