古民家宿るうふ、新施設「漂之家(ひょうのいえ)」山梨・南部町に10月1日開業
〜南部町と協働した空き家活用モデル。天望風呂とお茶体験の古民家リトリート〜

一棟貸し古民家宿を運営する株式会社LOOOF -るうふ-(山梨県笛吹市、代表取締役:保要佳江、以下るうふ)は、通算28棟目となる新施設「漂之家(ひょうのいえ)」を2025年10月1日(水)に山梨県南巨摩郡南部町に開業いたします。これに先立ち、9月8日(月)より予約受付、開業記念プランの販売を開始しました。
本宿は、南部町と令和6年7月に締結した「空き家等解消に向けた官民連携協定」に基づく第1号物件となります。天空風呂での入浴茶体験や山梨の旬を囲炉裏で味わう食事、縁側で過ごすひとときなど、“お茶に浸るリトリート”をお届けいたします。
お茶の香り漂う山間を望む宿 ― 古民家で味わう非日常のリトリート
都心から約2時間半、南部I.Cからほど近く静岡方面からもアクセスしやすい山梨県南巨摩郡南部町に位置。
豊かな水と緑に恵まれたお茶の産地としても知られている地域で、るうふの宿の中でも屈指のロケーションを誇り、雄大な山間と富士川沿いの景色を一望できます。都会を離れ、静けさと雄大な景色に包まれる贅沢な時間をお届けします。
また、四季折々の景観や行事を楽しめるのも大きな魅力です。春は「本郷の千年桜」、夏には「南部の火祭り」の打ち上げ花火を宿から鑑賞でき、秋には山間を彩る紅葉を望むことができます。


2階の天空風呂から、雄大な景色を一望
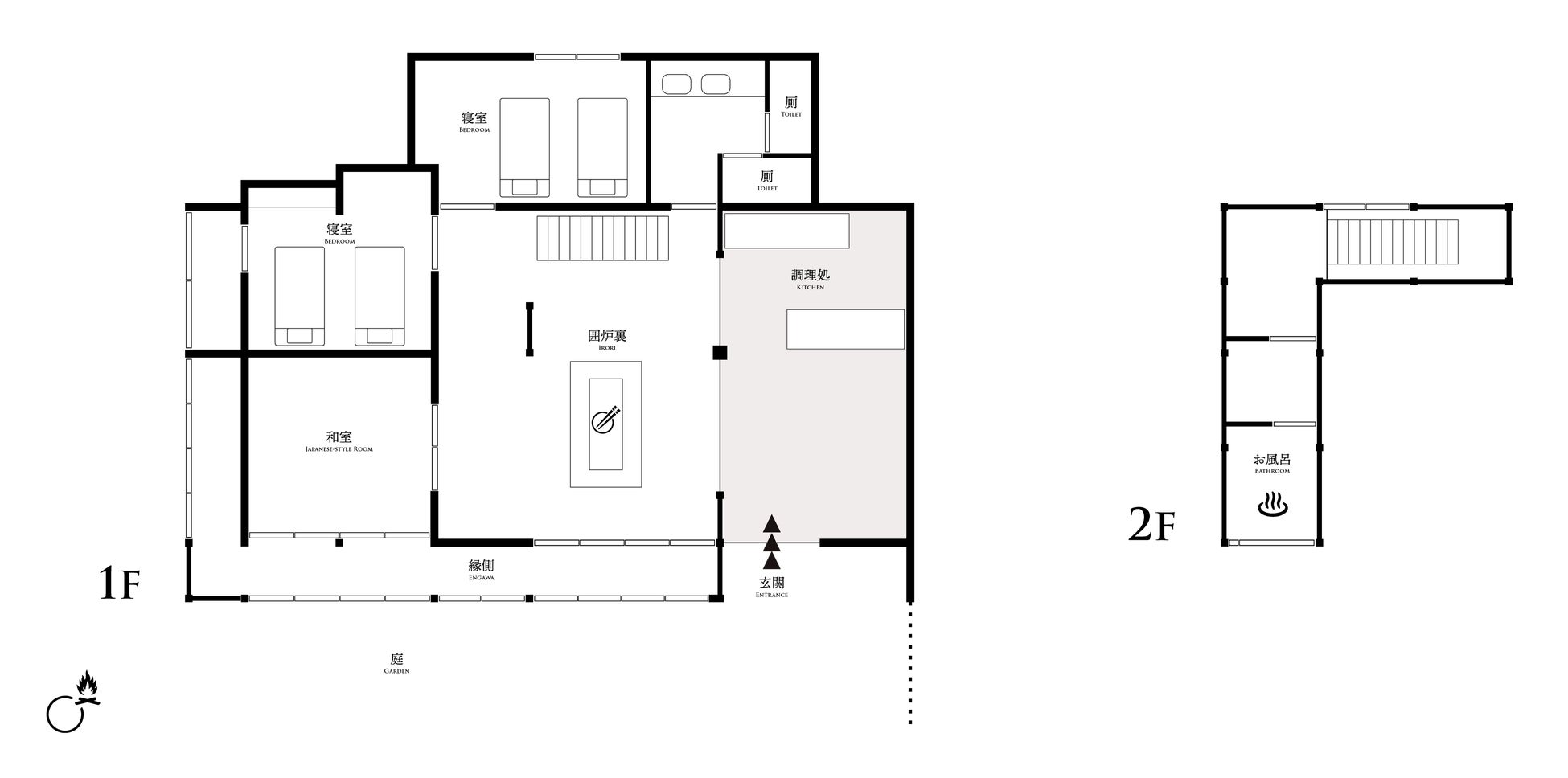
築200年ほどの古民家を改修し、最大6名様までご宿泊いただけます。
最大の特徴は、2階に設えられた天空風呂。雄大な山あいと富士川沿いの景色を一望しながら、非日常のひとときをお楽しみいただけます。
寝室は2部屋、シングルベッド4台と畳の和室にお布団2組をご用意。洗面台や空調設備も整えられ、四季を通して快適にお過ごしいただけます。縁側や囲炉裏テーブルなど、古民家ならではの趣を感じながらくつろげる空間です。
さらに、広々とした庭では焚き火や花火、BBQなどをお楽しみいただけます。




お茶に浸り、お茶を味わう ― 南部町ならではの癒やし体験
この地ならではの南部茶を多様なかたちで体験いただけます。南部茶は渋みが少なく、まろやかで飲みやすい味わいが特徴です。
南部鉄器で淹れたお茶とお茶菓子を楽しむティータイムや、絶景を眺めながら縁側でお茶を味わうひとときをご用意しています。
また、2階には天空風呂を備えており、お茶の香りに浸る「入浴茶」をお楽しみいただけます。心身を穏やかに整え、リラックス効果が期待できるお茶風呂で、雄大な景色とともに特別な時間を過ごせます。


囲炉裏とBBQで味わう、山梨の旬の食材
ダイニングに設えられた囲炉裏テーブルでお食事をお楽しみいただけます。
スタッフが一品ずつ仕上げる贅沢囲炉裏会席では、山梨の旬の食材をふんだんに使い、古民家ならではの囲炉裏料理をフルサービスで堪能いただけます。
ご自身で焼き上げる囲炉裏串焼きや、お庭で開放的に楽しめるBBQコースもご用意。季節ごとの旬の食材を取り入れており、テーブルを囲んで語らいながら、グループやご家族とお食事をお楽しみいただけます。


オープンを記念し、年内限定で開業記念プランを販売
10月1日から12月26日の期間、オープンを記念し「開業記念プラン」を販売いたします。
通常価格より20%OFFにてご宿泊いただけるお得なプランです。
<プラン詳細>
期間:2025年10月1日〜2025年12月26日
内容:通常価格より20%OFF
プラン:囲炉裏会席/囲炉裏串焼き/BBQ/素泊まり
予約:公式サイトよりご予約ください。
南部町との官民連携協定について
漂之家は、南部町と株式会社LOOOFが令和6年7月に締結した「空き家等解消に向けた官民連携協定」に基づく第1号物件です。
これまで山梨・千葉・群馬など各地で古民家や長年空き家になっている物件を再生し、宿泊施設として活用してきましたが、自治体と協働して空き家を再生するのは今回が初めての取り組みとなります。
るうふは、単なる宿泊事業の拡大ではなく、歴史ある建物を未来へ残し、人と文化が交わる地域社会を育むことを目指しています。今後も自治体と積極的に協働し、空き家問題の解決や地域社会の創出に貢献する取り組みを進め、文化価値経済のうねりを起こして参ります。

古民家宿るうふ「漂之家」
<宿概要>
住所:山梨県南巨摩郡南部町本郷6542 MAP
定員:6名
設備:Wi-Fi・プロジェクター・エアコン・ドライヤー・BBQグリル・キッチン・冷蔵庫・電子レンジ・湯沸かしポット・調理器具・食器類
アメニティ:バスタオル・フェイスタオル・歯ブラシ・歯磨き粉・くし・コットン・綿棒・足袋・ボディタオル・かみそり・部屋着・シャンプー・コンディショナー・ボディーソープ・クレンジングオイル・フェイスソープ
チェックイン:15時
チェックアウト:11時
宿ページ:https://loof-inn.com/hotels/hyounoie
<古民家宿るうふ>
家と場所が持つ文化価値を最大限に引き出し、 魅力溢れ引力ある地方を、世界へ次々と生み出すことを目指しています。山梨県・千葉県を中心に27棟を運営、文化価値経済のうねりを各地で起こしております。
各宿、その土地ならではの3つの "体験”メニューをご用意しており、”火の体験”(焚き火を囲む時間)、”時の体験”(古民家に刻まれてきた歴史や文化のご紹介)、”土地の体験”(書道、水菓子づくりなど地域に伝わる伝統的なものづくり) と、古民家ならではのゆったりした時間と空間を味わっていただける体験型宿泊施設です。
このプレスリリースには、メディア関係者向けの情報があります
メディアユーザー登録を行うと、企業担当者の連絡先や、イベント・記者会見の情報など様々な特記情報を閲覧できます。※内容はプレスリリースにより異なります。
すべての画像
