脱炭素社会の実現に貢献する、サステナブルな木質3階建の賃貸マンションを発売 「Belle Lead MANSION」
入居者やマンションオーナー、地球環境にとってサステナブルな賃貸住宅の普及を積極的に推進
ミサワホーム株式会社(代表取締役社長執行役員 磯貝匡志)は、CO2の排出量削減に寄与する木質建築により、災害に対するレジリエンス性に優れ、入居者のライフスタイルを安全安心で快適なものにする3階建の賃貸マンション「Belle Lead MANSION(ベルリードマンション)」を、本日より全国(北海道、沖縄県を除く)で販売します。

- CO2の排出量削減に寄与する木質建築により、脱炭素社会の実現に貢献
- 優れた耐久性や長期保証制度などにより、入居者の安全安心で快適な暮らしをサポート
- 入居者やマンションオーナー、地球環境にとってサステナブルな賃貸住宅の普及を積極的に推進
ミサワホームの木質パネル接着工法による賃貸住宅は、構造体35年、防水30年の初期保証など業界最長クラスの保証制度を適用。「Belle Lead MANSION」においても、長きにわたって入居者に安全安心な暮らしを提供するとともに、資産価値の維持を通してオーナーの安定した賃貸経営をサポートします。
ミサワホームは、今後も入居者の暮らしや地球環境にとってサステナブルな賃貸住宅の普及に取り組みます。
■「Belle Lead MANSION」の特徴
1.優れた安全性や耐久性などに加えて、脱炭素社会の実現に貢献する賃貸マンション
ミサワホームでは、一般社団法人プレハブ建築協会や大手不動産ポータルサイトにおいて「マンション」と表記できる基準に、当社独自の基準を加えた下記条件を満たす賃貸住宅を「Belle Lead MANSION」としています。


- 大収納空間「蔵」やフレキシブルな空間設計で多様化するライフスタイルに対応
- 在宅ワークの提案では、ニューノーマルライフ賃貸住宅「Belle Lead SkipHigh(スキップハイ)2-worklabo(ツーワークラボ)」で好評の2タイプのワークスペースを採用し、夫婦共働きにおいてもそれぞれの在宅ワークを快適にサポート
- 仕事に集中する「フォーカス」と子育てと両立できる「スイッチ」、異なる環境により状況に合わせた在宅ワークが可能に
- 共用エントランスに子ども広場やベビーカー置き場を設けて、入居者同士のふれあいや交流を促進

■商品概要
商品名 :「Belle Lead MANSION」
構造・工法:木質パネル接着工法
運用 :自由設計
(モデルプラン:「片廊下KURAタイプ」、「デザイナーズタイプ」、「アーバンタイプ」の3タイプ)
販売エリア:全国(北海道、沖縄県を除く)
販売目標 :80棟(2022年度)
発売日 :2022年4月15日
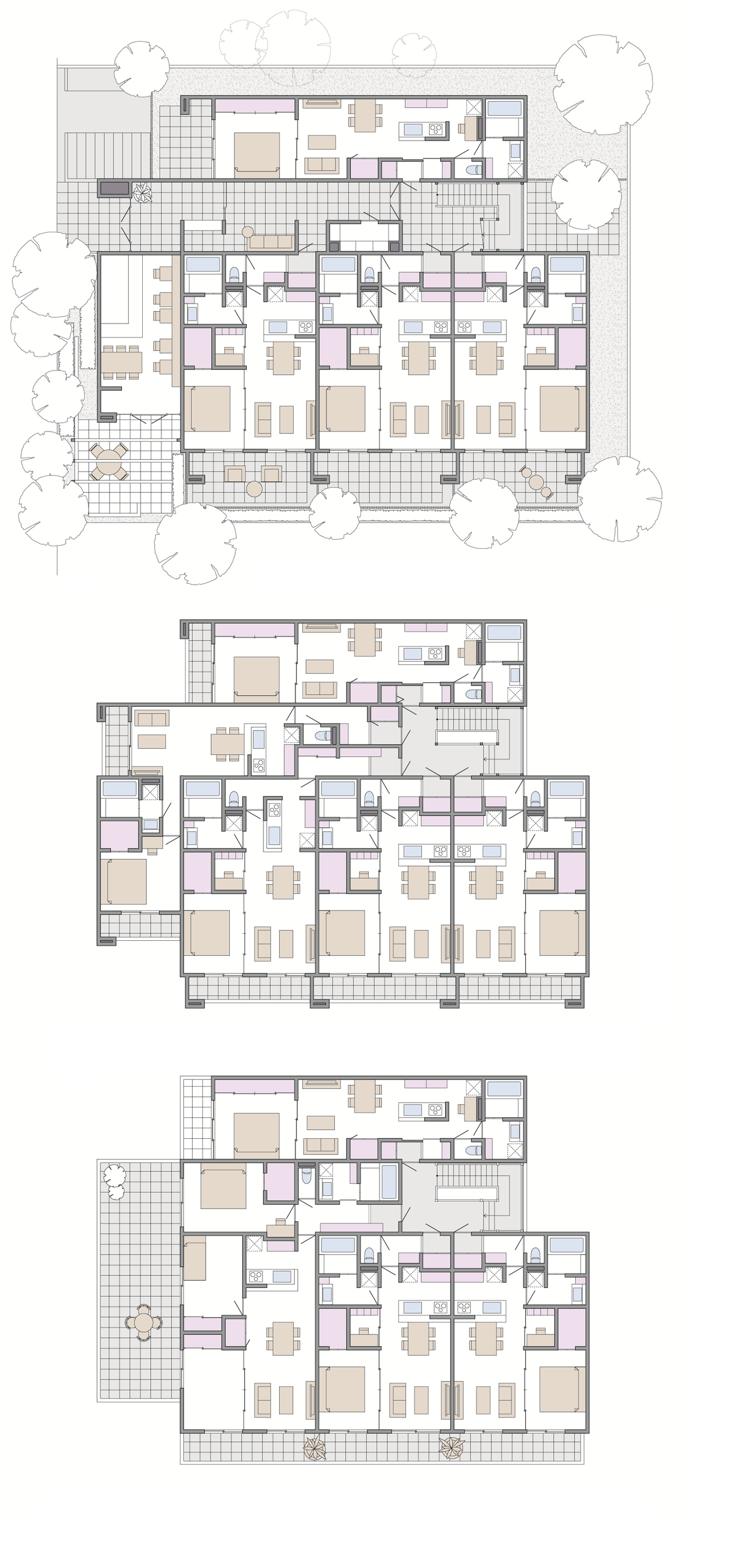
■参考資料:「片廊下KURAタイプ」プラン

間口(東西):32.76m / 奥行(南北):12.74m
1階床面積 369.19㎡ / 2階床面積 318.45㎡ / 3階床面積 306.70㎡ / 延床面積 994.34㎡
※床面積にはエントランス・共有部、および蔵・インナーバルコニー・外部アルコーブの面積は含みません


このプレスリリースには、メディア関係者向けの情報があります
メディアユーザーログイン既に登録済みの方はこちら
メディアユーザー登録を行うと、企業担当者の連絡先や、イベント・記者会見の情報など様々な特記情報を閲覧できます。※内容はプレスリリースにより異なります。
すべての画像
