【茨城県境町】25年住み続けたら無償譲渡!もらえる戸建住宅「アイレットハウス・マハロタウンII」入居者募集開始
茨城県境町(町長:橋本正裕)では、新たに整備する移住定住促進戸建住宅「アイレットハウス・マハロタウンⅡ」21棟について、入居者を募集します。

茨城県境町(町長:橋本正裕)では、移住定住政策としてPFI (プライベイト・ファイナンス・イニシアティブ:民間企業の経営ノウハウや資金を活用する公共事業の手法)を活用し、移住定住促進住宅の整備を推進しています。
これまでに建設した移住定住促進住宅「アイレットハウス」の、マンションタイプ108戸と、戸建住宅タイプ第1弾の「オハナタウン」17棟はすべて満室となっています。また、戸建住宅タイプ第2弾の「マハロタウン」22棟については、入居募集において、全国各地より230件もの申込をいただいたため、追加で5棟を整備しました。
そしてこのたび、多数の反響にお応えして新たに、戸建住宅第3弾「マハロタウンⅡ」21棟を整備します。
整備に伴い、入居募集を開始いたしますのでご案内いたします。
アイレットハウス・マハロタウンⅡ概要

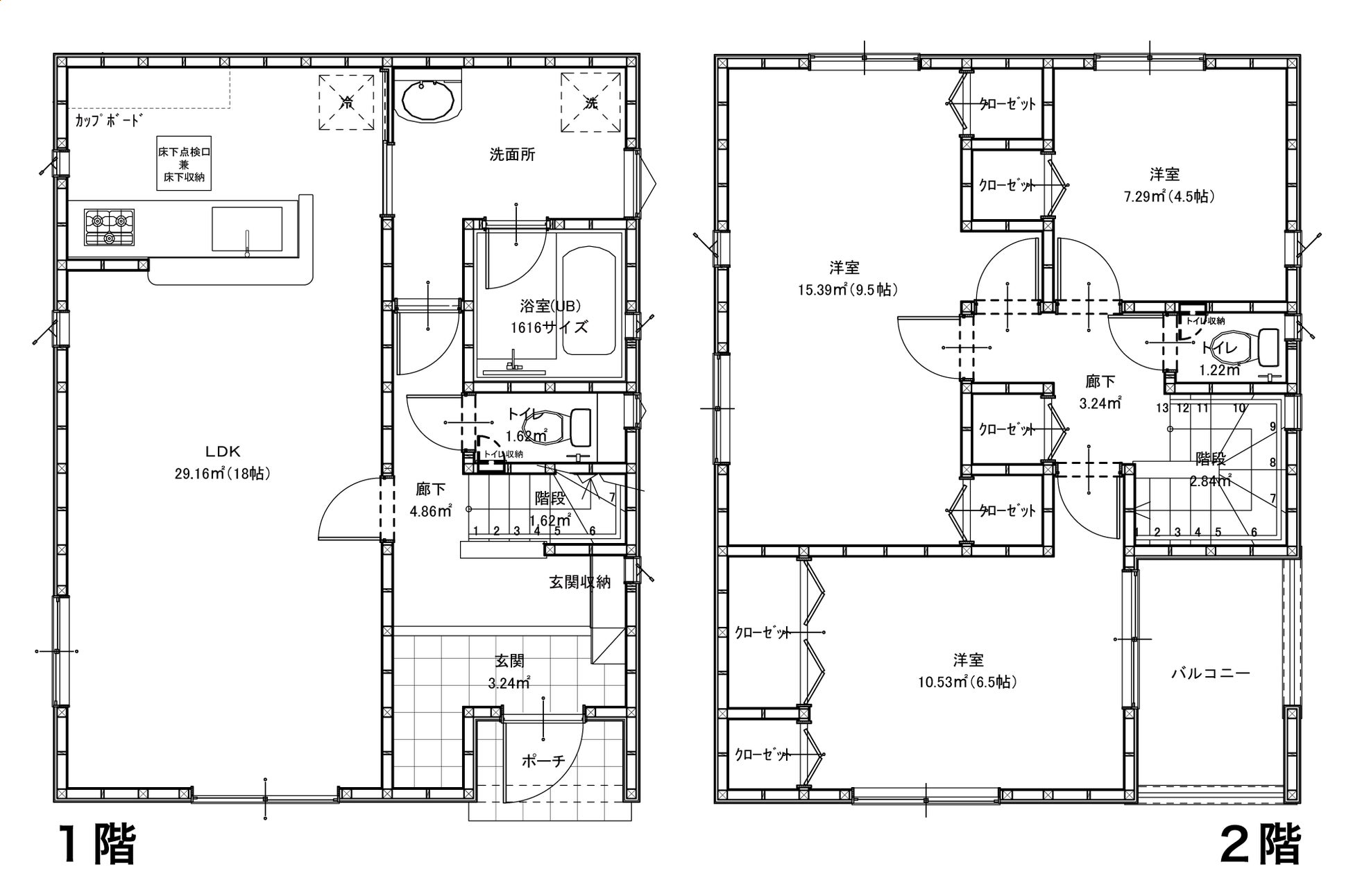
戸建てタイプ「アイレットハウス・マハロタウンⅡ」は、25年住み続けていただいた方に土地と住宅を無償譲渡いたします。
■「アイレットハウス・マハロタウンⅡ」入居者募集概要■
〇棟数
21 棟
〇住宅概要
敷地面積(戸当たり) 約170 平方メートル(予定)
木造2階建て(3LDK)延床面積約100 平方メートル(予定)
〇賃料
月額64,000 円(減額前家賃84,000 円)
駐車料金月額3,300 円
※所得要件・世帯要件に該当する方は減額後の家賃で入居できます。
〇入居対象者
子育て世帯・新婚世帯※町外から転入する世帯を優先とさせていただきます。
〇所得基準
入居者および同居者の所得月額を合算した金額が158,000円以上487,000円以下
〇募集期間
令和6年8月16 日(金)~令和6年10 月16 日(水)
○入居時期
令和7年2月末頃より入居開始予定
〇申込方法
境町公式ホームページ「マハロタウンⅡ入居募集」ページに掲載されている「申込に必要な書類」を郵送もしくは持参してください。(提出先:境町役場地方創生課)



このプレスリリースには、メディア関係者向けの情報があります
メディアユーザー登録を行うと、企業担当者の連絡先や、イベント・記者会見の情報など様々な特記情報を閲覧できます。※内容はプレスリリースにより異なります。
すべての画像
- 種類
- 商品サービス
- ビジネスカテゴリ
- 住宅・マンション政治・官公庁・地方自治体
- ダウンロード
