「アトラスタワー五反田」全213邸誕生 山手線五反田駅徒歩5分・30階ゲーテッドタワーマンション
オフィシャルサイト開設以来2,700組超の反響
完成予想外観CG
- アトラスタワー五反田の特徴
1995年以降に発売されたJR山手線徒歩5分圏のマンションは327物件。そのうち20階建て以上で目黒川沿いのタワーマンションはわずか1物件のみ。「アトラスタワー五反田」は、2005年以来17年ぶりの供給となります。
※1:MRC調べ/[対象期間]発売が1999年~2021年11月3日まで。MRC調査・捕捉に基づく東京都23区内分譲マンションデータの範囲内
ゲートを構え、結界性を持たせた邸宅~築地塀と門で区切ることで都市の喧騒から一転して静寂の空間へ~




風色 (エントランスアプローチ) 刻一刻、四季折々に移ろう景。風の色さえ、美しい。
築地塀の先は、都市と住まいを境界する余白であり、緑の潤い、石と水の静寂が喧騒を離れ別世界に誘います
木漏れ日 (エントランス) 静まり返る石と木の空間。奥ゆかしく、柔らかに、光差す。
木漏れ日の美しさと心地よさを建築的に再構築した迎賓空間


緑影(エントランスホール) 窓先に、四季を迎える木々の影。内と外が緩やかにつながっていく。
青々と茂る木の影をイメージし、庭と一体の情景を作りこんだ2層吹き抜けのエントランスホール
奥庭(リフトロビー) 私邸へと誘うぬくもりと安らぎ。その先に町家のような奥庭の景。
エレベーターホールにはコントラストを落とした石の空間をプランニング

春には庭園の向こうに満開の桜を望み、夜もほのかに明るく見える離れのようなラウンジ
充実の共用部
タワーの2階と3階部分には、個々のライフスタイルと新しい時代を見つめた多様かつ個性的な共用空間をプランニングしました。
【ライブラリーラウンジ】

【パーティールーム】

【ゲストルーム】

専有部分のご紹介 快適の本質を突き詰めたこれからの住まいのあり方
角住戸率やワイドスパン、天井高にこだわることで生まれるゆとりの住み心地を実現しました。都市の暮らしと新しい時代を深く思考したセキュリティやサービスなど、このタワーには、次の時代に誇る快適の本質が宿っています。
【美しく守られた内廊下】
都市生活に求められるプライバシーとセキュリティに配慮した内廊下設計。細部にまで上質を宿す空間が私邸へと優雅に誘います。
【豊かな光にあふれる住まい】
角住戸およびワイドスパン中心の設計によって開口面を増やし、採光性を向上。自然の光に包まれる心地よい住まいを実現します。
【空間の気積を拡張する天井高】
専有部の天井高は2,550~2,700mm。床面積×天井高を意味する気積を拡張することで、立体的な広がりのある空間を追求しました。

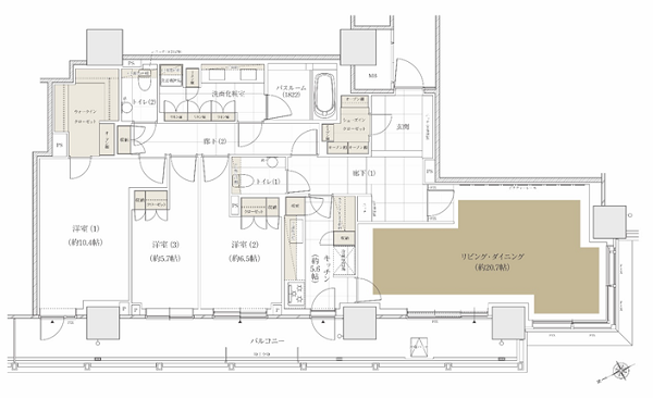
【住戸プラン例】
J6type 3LDK+WIC+SIC 専有面積 126.94㎡ バルコニー24.56㎡
・全居室とキッチンをバルコニー面に配した開放的な3LDK
・邸内のプライベートとパブリックを分離した贅沢な空間設計
・コーナーサッシュを配したリビング・ダイニングは約20畳のゆとりの空間
・2WAY動線のキッチンや2ボウル洗面台、1822サイズの浴室など充実の水回り
・シューズインクローゼットやウォークインクローゼットなどの多彩な収納

- プレミアム住戸について
28階~30階の上層階がプレミアム住戸として販売予定となっております。30階は住戸付設駐車場付き。その他のプレミアム住戸も駐車場優先権付きとなります。東京タワー、富士山を望む眺望の良さや、キッチンはSieMaticを使うなど充実の設備仕様に加え天井高は2.7mとなっており、プレミアム住戸ならではの上質な空間をご提供しております。
7月16日からプレミアム住戸ページを公開し、たくさんの反響をいただいております。100㎡超の住戸プランも様々用意しておりますので、ぜひオフィシャルサイトをご覧ください。
※アトラスタワー五反田30階より実写
- 物件概要

| 所在地 | 東京都品川区西五反田二丁目22番1,2,3,5,6(地番) |
| 交通 | JR山手線「五反田」駅 徒歩5分(西口) 都営浅草線「五反田」駅 徒歩3分(A2出入り口) 東急池上線「五反田」駅 徒歩5分(1階出入り口) |
| 用途地域 | 商業地域 |
| 構造・規模 | 鉄筋コンクリート造、地上30階、地下1階 |
| 敷地面積 | 2,079.57㎡ |
| 専有面積・間取り | 30.12㎡~126.94㎡・1R~3LDK |
| 総戸数 | 213戸(非分譲住戸11戸、広告対象外住戸8戸含む) |
| 竣工・引渡予定 | 竣工:2024年3月中旬予定 引渡:2024年3月下旬予定 |
| 設計・監理 | (意匠・監理)株式会社 NEXT ARCHITECT&ASSOCIATES (構造・電気・設備・監理)西松建設株式会社 一級建築士事務所 |
| 施工 | 西松建設株式会社 |
本概要は、第一期の販売住戸が未確定のため、物件データは第一期以降の全販売対象住戸のものを表示しています。
確定情報はHPにて明示します。
※本リリースの外観・内観等は計画段階の設計に基づくCGのため、実際とは異なる場合があります。
- 案内図

- 旭化成のマンション「アトラス」から新たな「ATLAS」ブランド価値創造に向けて
アトラスブランドロゴ
アトラスブランドCM
- アトラスギャラリー渋谷
詳しくはこちらhttps://www.afr-web.co.jp/atlas/gallery/index.html/


- アトラスタワー五反田HPのご案内
お問い合わせ先メールアドレスはこちら at-gotanda@om.asahi-kasei.co.jp
以上
このプレスリリースには、メディア関係者向けの情報があります
メディアユーザー登録を行うと、企業担当者の連絡先や、イベント・記者会見の情報など様々な特記情報を閲覧できます。※内容はプレスリリースにより異なります。
すべての画像
