山梨県丹波山村:人口減少の時代に“増築”。移住増加で子どもが増える村が保育所を拡充へ
工務店不在の山間地域の課題を、クリエイト礼文がオフサイト建築で支援。断熱等級6の高性能ユニットで保育環境を整備。

株式会社クリエイト礼文(本社:山形県山形市、代表取締役:大場友和)は、山梨県丹波山村が実施した「村営保育所増築に係るプロポーザル」において、当社の提案「縁(えにし)と自然が育む可変的な保育スペース」が採択されたことをお知らせいたします。
丹波山村は人口約500人の山梨県でも最小規模の自治体ですが、近年、村の「村勢要覧」において、若い移住者と9歳以下の子どもの増加が確認されており、人口減少が続く全国の中山間地域の中でも珍しい人口構造の変化が生まれています。
また、内閣府が公表する地域活性化関連資料でも、総人口が減少する一方で若年層の比率が高まり、人口構造の若返りが進んでいることが示されており、村の取り組みが一定の成果を上げている状況がうかがえます。
こうした人口構造の変化により、「住まい不足」や「保育スペース不足」という新たな課題が発生しています。
■ 丹波山村が抱えてきた構造課題
-
移住者が増えても住まいが足りない(住宅不足)
-
子どもが増えて保育室が足りない(保育不足)
-
そもそも地理的条件から工務店や大工職人がいない(建てられない)
全国の過疎地に共通するこの課題に対し、丹波山村は段階的に解決策を講じてきました。
■ その解決策として採用されたのが「オフサイト建築の高性能ユニット」
丹波山村が抱えていた「建てたくても建てられない」という構造課題に対して、最終的な解決策として採用されたのが、オフサイト建築による高性能ユニットです。
※本プロジェクトで採用しているオフサイト建築(モバイル建築)は、日本モバイル建築協会が整理・体系化した技術および知見をもとにしています。
この方式は、工場で主要部分を製作し、現地作業を最小限に抑えることで、建設人材の確保が難しい中山間地域でも安定した品質で公共施設を整備できる手法として評価されています。
オフサイト建築は、従来の現場施工とは異なり、建物の主要部分を工場で製作することで、以下のような効果が得られます。
-
工場で可能な限り製作 → 品質均一・現地の人手に依存しない
-
現地作業は最小限 → 工期を短縮し、保育を止めない
-
断熱等級6・耐震等級3という高性能を確実に担保
-
将来の移設・転用も可能で、人口変動に対応できる
これにより、工務店不在の地域でも住宅・公共施設を整備できる という、
小規模自治体にとって画期的な仕組みが実現しました。
■ 丹波山村の取り組み
丹波山村はここ数年、段階的に“未来の地域インフラ”を整備してきました。
【1|高性能村営住宅(移住定住の受け皿)】
移住者の住まい不足への対応として、丹波山村では日本モバイル建築協会の技術・知見をもとにしたオフサイト建築による高性能な村営住宅の整備が行われました。
工務店不在の地域でも施工できる手法として評価され、移住者の受け皿づくりが進められています。
【2|保育所の増築(若い移住者増→子ども増→保育不足)】
若い移住者や子育て世帯の増加により保育需要が拡大。
全国的に保育所の統廃合が進む中で、“保育所を増築する自治体” という点でも注目されています。
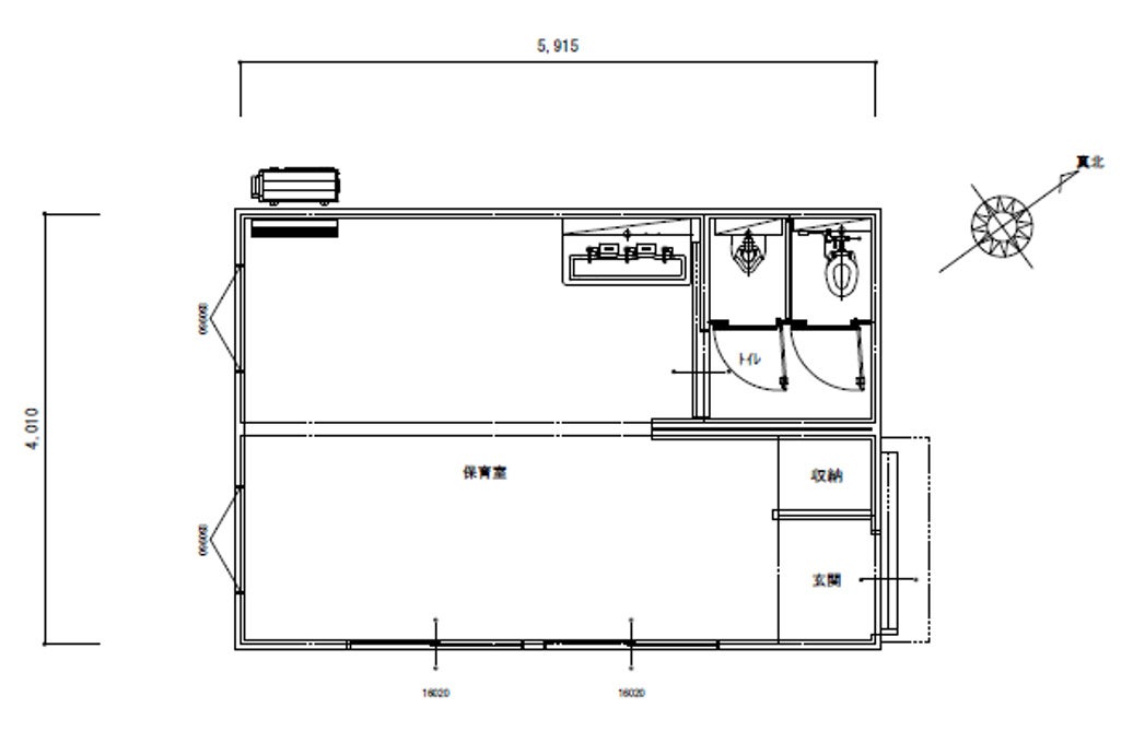
今回採択された増築案では、断熱等級6・耐震等級3の高性能ユニットを用い、既存園舎とデッキ接続して利用できる可変型の空間を整備します。


■ プロジェクトの主な特徴
-
人口減少時代における「希少な増築」
-
育児相談や移住体験にも活用できる可変型保育室
-
地域産材を活用した木質外観と木育要素
-
断熱等級6・耐震等級3の高性能ユニット建築
-
工務店不在でも建設できるオフサイト建築
-
将来の移設・転用に対応できる柔軟な公共施設


■ 丹波山村役場 コメント
「少子高齢化が進む全国の自治体では保育所の統廃合が相次ぐ中、本村では近年、移住・定住施策の成果として30代の移住者や9歳以下の子どもの増加が続いています。人口約500人という小規模な地域でありながら、このような人口構造の変化が起きていることは、村にとって大きな希望です。
その一方で、地理的条件から工務店や大工職人が不足し、住宅や公共施設の整備が難しいという新たな課題も生まれています。今回の保育所増築プロジェクトでは、こうした地域特有の課題に対応するため、オフサイト建築による高性能ユニットを採用し、保育の継続性を保ちながら整備を進められる点を高く評価しました。
本増築が、子どもたちの安心・安全な環境づくりと、これからの丹波山村の未来を支える大きな一歩となることを期待しています。」
■ 全国の過疎地への示唆
丹波山村が直面した
「移住成功 → 子ども増加 → 保育不足 → 建築人材不在」
という流れは、全国の過疎地の未来課題そのものです。
オフサイト建築による高性能ユニットは、
“建てたくても建てられない地域”における新しい解決策となり得ます。
クリエイト礼文は日本モバイル建築協会と連携し、
今回の丹波山村の事例をモデルとして、
全国の離島・過疎地の社会的インフラ整備に貢献してまいります。
会社概要
会社名: 株式会社クリエイト礼文
代表者: 代表取締役CEO 大場 友和
所在地: 山形県山形市南原町2丁目7-39
コーポレートサイト: https://createlemon.jp
本リリースに関するお問い合わせ先
株式会社クリエイト礼文
担当者名:柳橋
TEL:023-665-5676
E-mail:pr@unitehouse.jp
すべての画像
