【滋賀/高島市】琵琶湖が見える贅沢な一棟貸し別荘「Resoreat Shirahige」がついにグランドオープン!美しい湖と山々の絶景を堪能できる贅沢な宿が誕生【琵琶湖徒歩1分】
大阪を中心に民泊/貸別荘施設を運営する株式会社LDKプロジェクト(所在地:大阪府中央区、代表:生田博之)は2025年7月31日(木)に滋賀県高島市に新しい貸別荘「Resoreat Shirahige (リゾリート シラヒゲ)」をオープンいたします。
《公式予約》https://go2iza.com/rss_prt
《Instagram》https://go2iza.com/url/prt_ins_go2


・Resoreat shirahigeについて

今回新しくOPENする「Resoreat Shirahige(リゾリートしらひげ)」が位置するのは、滋賀県高島市鵜川。琵琶湖の北西部に広がるこの地域は、豊かな自然に囲まれた穏やかな湖西エリアです。車で1分の距離には、湖に鳥居が浮かぶ幻想的な風景で知られる「白髭神社」があり、近年ではフォトスポットとしても注目を集めています。大阪市内からも車で約2時間というアクセスの良さがありながら、ゆったりとした時間が流れる風景が魅力となっています。四季折々の風景が楽しめる湖岸道路や、SUP・カヌーなどのアクティビティも近隣で体験でき、日常を離れて心と身体をリセットできる旅の目的地として最適です。

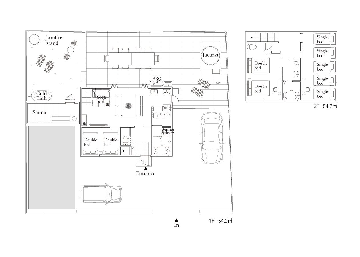
Resoreat Shirahigeは2階建ての一棟貸しの一軒家。落ち着いた色調のモダンな内装が印象的で、木目調のフローリングとグレーを基調としたソファやクロスが、大人の落ち着きと寛ぎを演出します。LDKは約17畳あり、掃き出し窓を全開にすればバルコニーエリアとひとつながりの開放的な空間に。

当施設は最大15名まで宿泊が可能です。このLDKとバルコニーが繋がった大空間で大勢で賑やかにひとときを過ごしていただけます。大人数での宿泊を前提にした間取りと動線により、グループ旅行でもストレスのない滞在が実現可能です。モダンでありながらも自然と調和する、郊外の貸別荘ならではの空間がここにあります。

屋根付きのバルコニーにはジャグジーやBBQコンロ、リクライニングチェアが備えられており、屋外での時間を快適に過ごすための設備が充実しています。ウッドフェンスに囲まれた空間は外からの視線を気にせず、自然に囲まれたプライベートな時間を楽しむことができます。昼間は山並みや田園の景色を眺めながらゆったりジャグジーに浸かったり、夜は火を囲んでのBBQで仲間と盛り上がったり、思い思いの時間を過ごせます。照明の灯るテラスで、涼風を感じながら語らいを楽しむなど、時間帯によって異なる魅力を味わえるのもポイント。屋根付きのため、天候に左右されることなく楽しめるのも嬉しい点です。アウトドアと快適性を両立させたこの空間は、都会の喧騒を離れて心からリラックスできる特別な時間を提供してくれます。

・オリジナル「ネオンサウナ」について

IZAの大きな特徴である「プライベートサウナ」。今回は完全オリジナルデザインのものを採用しています。サウナ室は奥行をつくり、大人4人でもゆったりくつろげる広さに。ネオンライトをアクセントにした「ネオンサウナ」として、ポップなデザインながら落ち着いた印象のある空間に仕上げています。


サウナ室を出てすぐに、水風呂や整いチェアを用意。サウナを存分に楽しんでいただけるスムーズな導線も「IZA」ならではの魅力とも言えます。
・水廻りについて

水廻りの設計も、大人数での宿泊を想定した快適な仕様となっています。各階には浴室が設けられており、入浴も混み合うことなくスムーズに行えます。洗面エリアはダブルボウルの仕様となっており、2人同時に使用できるため、時間のロスなく快適にお支度いただけます。

1階の浴室には洗濯乾燥機も設置され、長期滞在も安心。琵琶湖でのアクティビティの後でも洗濯をすませて、帰りの荷物を綺麗に整理する事が可能です。大理石調の洗面カウンターがアクセントになっているおしゃれな洗面化粧室でゆったり身支度を整えるのも至福のひとときです。
・各寝室について



寝室は合計で3部屋あり、リビングのソファベッドも使用すれば最大15名までの宿泊が可能です。家族や友人など大人数でのグループ利用でも、プライバシーが保てる設計になっています。
(1階寝室:ダブルベッド2台 2階居室1:ダブルベッド2台、2階居室2:シングルベッド5台、リビング:ダブルソファベッド1台)
「Resoreat Shirahige」へのご予約お待ちしております。
・間取り図

<当施設の概要>
●施設名:Resoreat Shirahige(リゾリート シラヒゲ)
●住所 :〒520-1531 滋賀県高島市鵜川535-1
●アクセス :大阪市内から車で約2時間
※乗用車2台まで施設内駐車場ご利用可能です。
●料金プラン:70,000円~
《公式予約》https://go2iza.com/rss_prt
・サウナ付き貸別荘 IZAとは

IZA(イザ)は「遊ぶ・感じる・整う」をコンセプトとした、プライベートサウナ付きのリゾート型貸別荘ブランドです。こだわりの設備、落ち着いたインテリアや家具 プライベートのサウナやジャグジーなど、都会から離れて非日常的なリゾート空間が体験できます。家族や恋人 友達同士での旅行はもちろん、社内研修やワーケーション 小規模イベントなど、幅広い用途でご利用いただけます。
《IZAシリーズ公式予約》https://go2iza.com/prs_iza_hp
《Instagram》http://go2iza.com/url/prt_ins_go2
・わたしたちのこと

人生に綴られる ひとときをつくる
宿泊は「お客様の時間をお預かりして、快適で価値のある空間とサービスを提供すること」だと私たちは考えています。「また泊まりたい」と思ってもらえる施設をつくりたい。 設備やサービス、インテリア、清掃にいたるまで、 手を抜かず、心をこめる。訪れた人の「人生」 という物語の1ページになるような思い出に残る時間と体験ができる宿泊施設を提供します。
企 業 名 : 株式会社LDKプロジェクト
所 在 地 : 〒540-0017 大阪府大阪市中央区松屋町住吉6-26 eninal MACCHAMACHI 2F
代 表 者 : 代表取締役 生田博之
事業概要: 民泊施設の運営管理、レンタルスペースの運営管理、不動産賃貸業、清掃業務、貸別荘運
営、サウナ事業
《公式HP》https://ldk-pjt.com/prs_ldk_hp
【民泊運営代行に関するご相談やご質問先】
使用していない部屋を活用したい、民泊に興味があるけれど知識もなく不安、実際に自分でもできるか確認したいなど、些細な相談でもかまいません。業界をリードする大阪で長年民泊を営むLDKプロジェクトが丁寧にお答えします。お気軽にどうぞ!
《民泊代行ページ》https://ldk-pjt.com/ldk_daiko
【本件に関するお問合わせ・取材等のお申込み先】
株式会社LDKプロジェクト 運営管理担当
テレビや雑誌、新聞社様からの取材大歓迎です。
お気軽にお問合せくださいませ。
E-mail:marketing.div@ldk-pjt.com
このプレスリリースには、メディア関係者向けの情報があります
メディアユーザー登録を行うと、企業担当者の連絡先や、イベント・記者会見の情報など様々な特記情報を閲覧できます。※内容はプレスリリースにより異なります。
すべての画像
