【会員企業の取り組み】人口約500人の村で「保育所増築」が完成!会員企業の株式会社クリエイト礼文がオフサイト建築の力で子育て世帯受入の基盤を強化

一般社団法人日本オフサイト建築協会(本部:東京都千代田区、代表理事:長坂俊成)は、会員企業である株式会社クリエイト礼文(本社:山形県山形市、代表取締役CEO:大場 友和)が、山梨県丹波山村(たばやまむら)において「保育所の増築プロジェクト」を完了し、2026年3月2日に引き渡しを行ったことをお知らせいたします。 移住・定住施策の成功による「子ども増加」という明るいニュースの一方で直面した「建築人材不足により施設が建てられない」という中山間地域特有の課題を、工場製作を主体とする「オフサイト建築」によって解決した画期的な事例となります。
■ 背景:「建てたくても建てられない」中山間地域におけるインフラ整備の課題
全国的に人口減少や公共施設の統廃合が進む中、人口約500人の山梨県丹波山村では、近年の移住・定住施策が実を結び、若い世帯や9歳以下の子どもたちが増加傾向にあります。これに伴い「保育スペースの拡大」という喫緊のニーズが生まれました。
しかし、同村において施設整備を進める上で大きな障壁となったのが、深刻な建築人材不足です。山間地域という地理的な条件もあり、地元の工務店や大工職人が不足しており、一般的な工法では工期の長期化や人材確保が極めて困難な状況にありました。
■ 解決策:会員企業・クリエイト礼文が提供する「オフサイト建築」の活用
この課題に対し、当協会会員企業である株式会社クリエイト礼文は、建物の主要な構造をあらかじめ工場で製作し、現地へ運搬して組み立てる「オフサイト建築(高性能ユニット)」による増築を提案・実施いたしました。
本プロジェクトでは、オフサイト建築の特性を活かし、以下の成果を実現しています。
-
工期の大幅短縮と業務継続の両立
現場での作業工程を最小限に抑えることで、子どもたちの日常の保育活動を止めることなく、安全かつスピーディに施工を完了しました。
-
高い基本性能と木育要素の融合
断熱等級6、耐震等級3という高い安全性と快適性を確保。さらに、地域産材を活かした温かみのある木質外観を採用し、子どもたちの「木育」にも寄与する空間を実現しています。
-
将来のニーズに応えるサステナブルな設計
将来的な移設や他用途への転用も可能な可変型設計を採用しており、変化する村のニーズに柔軟に対応できる持続可能な施設となっています。
■プロジェクト概要
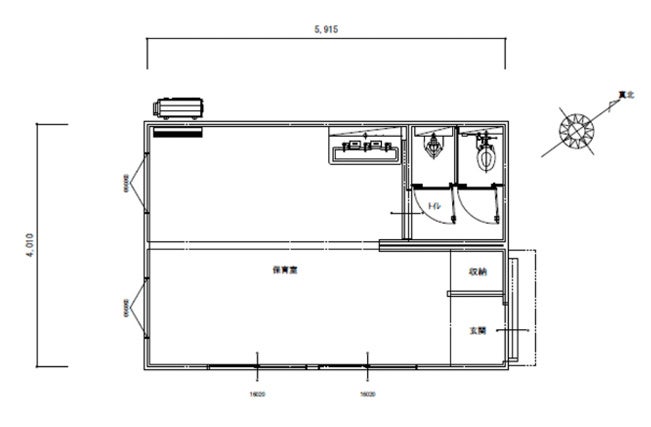
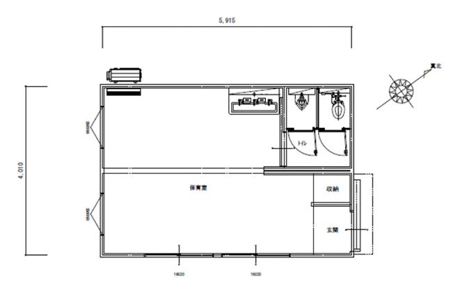
今回の増築棟は、既存園舎とウッドデッキで接続し、日常保育の延長空間として活用できる設計としています 。工場で主要構造を製作し、現地での作業を最小限に抑えることで、建築人材が不足する中山間地域でも安定した品質の公共施設整備を実現しました 。
【主な特徴】
-
断熱等級6・耐震等級3の高い安全性と快適性
-
工場製作による品質均一化
-
現地工期の大幅短縮(子どもたちの日常の保育を止めない施工)
-
将来的な移設や多用途への転用も可能な可変型設計
-
地域産材を活用した温かみのある木質外観と木育要素
工場で主要構造を製作し、現地での作業を最小限に抑えることで、建築人材が不足する中山間地域でも安定した品質の公共施設整備を実現しました。





■プロジェクトの意義:人口減少時代の新たな希望となる「未来に向けた増築」
全国の多くの地方自治体で「施設の縮小・統廃合」が進む中、「施設を減らす」のではなく、「未来の希望に合わせて拡げる」という丹波山村の決断は非常に象徴的です。
「移住者が増え、子どもが増加しているにもかかわらず、建てる人がいない」というジレンマは、今後全国のあらゆる地域が直面する可能性のある社会課題です。今回の株式会社クリエイト礼文による取り組みは、職人不足に悩む地域における「新しい公共施設整備のモデルケース」として、大きな希望となるものです。
■ 丹波山村役場からのコメント
今回の完成・お引き渡しにあたり、丹波山村役場より以下のコメントをいただいております。
本村では移住・定住施策の成果として若い世帯が人口に占める割合が増え、保育所を利用する子どもの数も一時期より大幅に増加しています。過疎の村において、こうした変化は大変うれしく、村の宝である子どもたちが安心・安全・快適に過ごせるよう、今回保育所の増築を行いました。
地理的条件から建築人材の確保が難しい中、オフサイト建築という手法により、日常の保育と並行して整備ができたことを大変心強く感じています。
今回増設した多目的スペースを、村の子育て基盤の強化に最大限活用し、子どもたちの成長と村の持続可能な発展につなげていきます。
■ 今後の展望:日本オフサイト建築協会の役割
「施設を減らす」のではなく、「未来の希望に合わせて拡げる」という丹波山村の決断と、それを技術で裏付けたクリエイト礼文の取り組みは、今後多くの自治体が直面するであろう「職人不足時代の公共施設整備」における新しいモデルケースとなります。
日本オフサイト建築協会では、今後も会員企業の皆様の優れた技術・実績を広く発信するとともに、人口減少地域や中山間地域における持続可能なインフラ整備の手法として、オフサイト建築の普及と社会実装を推進してまいります。
このプレスリリースには、メディア関係者向けの情報があります
メディアユーザー登録を行うと、企業担当者の連絡先や、イベント・記者会見の情報など様々な特記情報を閲覧できます。※内容はプレスリリースにより異なります。
すべての画像
