【好評につき再開催】こだわり素材と隠す収納で叶える、すっきり心地よいマンションリノベ見学会|名古屋市緑区
来場者限定で、ご成約の方に最大20万円分の家具をプレゼント。住まいを整えるヒントが詰まった、1日限定のマンションリノベ見学会。素材感や隠す収納、将来に備えた間取りを体感いただけます。

愛知県でリノベーション事業を展開する株式会社sumarch(本社:愛知県名古屋市中村区、代表取締役:鳥居儀彰、以下KULABO)は、マンションリノベーション見学会を2025年6月29日(日)、愛知県名古屋市緑区にて開催いたします。
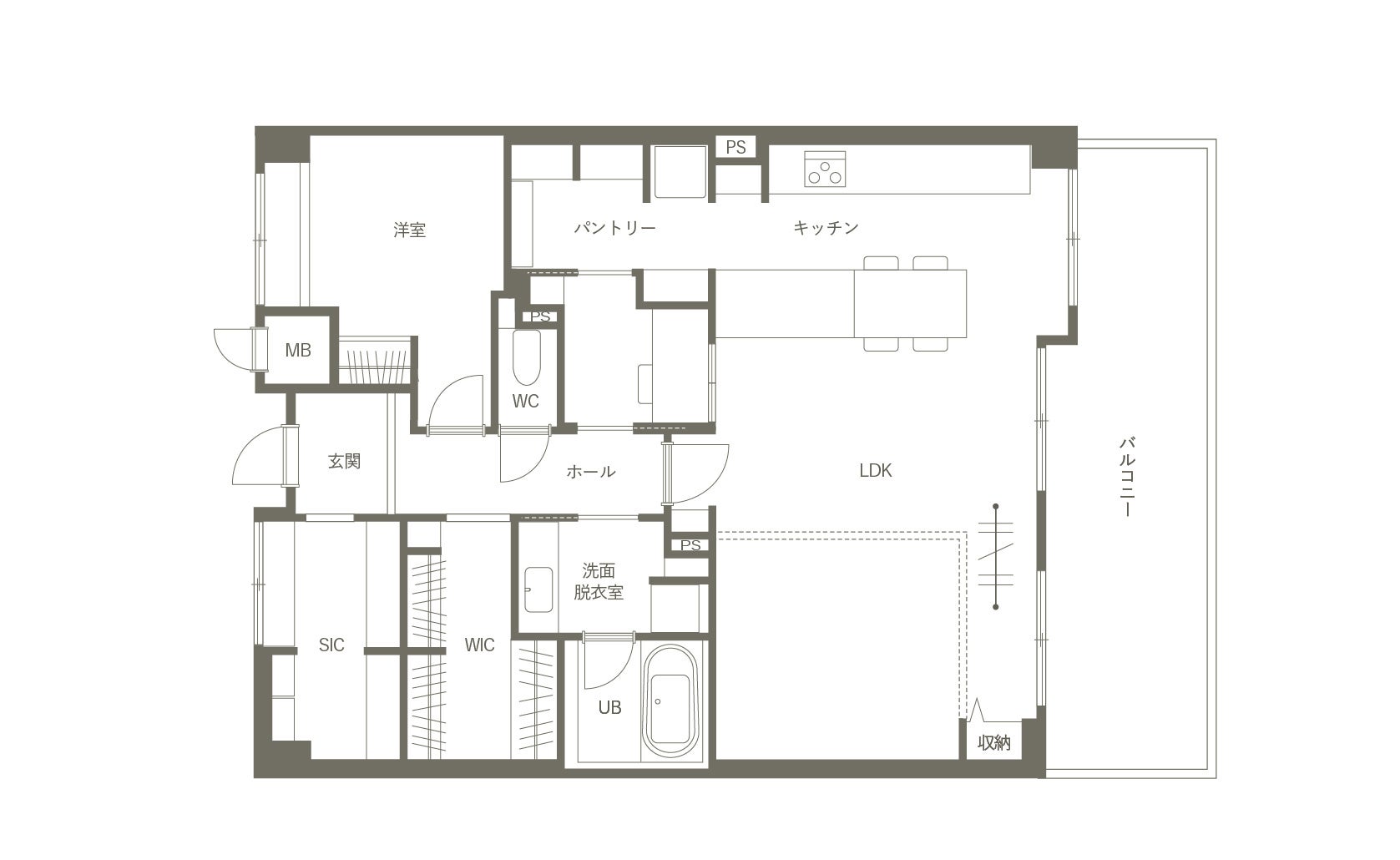
実際にKULABOでリノベーションしたオーナー様のお住まいを見学できる「リノベーション見学会」です。間取りや設計の工夫・デザインのアイデアなど、家づくりのヒント盛沢山!写真だけでは分からない素材の質感や雰囲気、リノベーションの魅力をREALにご体感ください!
見学会について、詳しくは特設ページをご確認ください。
https://kulabo.co.jp/events/106
見どころポイント




==DATA==
家族構成:ご夫婦
リノベーション費用:約1,580万円(2023年施工)
施工面積:86.76㎡
築年数:築25年
打合せ期間:約4ヵ月
工事期間:約3ヵ月
■異素材の絶妙なバランスが織りなす、洗練されたミニマル空間

モルタルやアイアンといった無機質な素材と、温かみのある木や植物など有機質な素材をバランス良く組み合わせました。随所に配したタイルや真鍮のアクセントが、ミニマルでありながら上品な表情を演出します。
■生活感を隠し、いつでも美しい空間を保つ収納計画


散らかりがちな日用品やアウトドア用品は土間収納やウォークインクローゼット、パントリーにしっかり収納。隠す収納を活用することで、生活感を感じさせないスッキリとした空間を実現しています。
■将来の暮らしの変化にも柔軟に対応できる間取り設計

リビングは将来的に間仕切りを設けて一部屋増やせる可変性を持たせました。家族のライフスタイルが変わっても快適に暮らせる工夫が施されています。
開催概要
開催日:2025年6月29日(日)
時間:10時~17時
開催場所:愛知県名古屋市緑区
※オーナー様のプライバシー配慮のため、詳しい住所はご予約いただいた方だけにお伝えしております。
参加費:無料
申込締切:2025年6月28日(土)まで ※事前予約制
見学会の詳細やご予約は、特設イベントページよりご確認ください。
来場者限定!特典プレゼントあり!
当イベントに来場した後、当社でリノベーションをご成約いただいた方に、成約金額に応じて家具をプレゼント!
★500万~999万のご成約
→家具10万円分プレゼント!
★1,000万円以上のご成約
→家具20万円分プレゼント!
特典規約あり。詳しくは、特設イベントページよりご確認ください。
KULABOとは

リノベーションスタジオKULABOは愛知県・岐阜県・東京都(一部エリア除く)において、中古戸建、中古マンションのリノベーション・大規模リフォームの提案をしています。
リノベーションを前提とした中古物件のご紹介から、プラン・デザインの提案、施工、アフターメンテナンスまで一貫してサポートします。お客様のニーズやご予算、ライフスタイルに合わせて部分リフォームからフルリノベーション、耐震工事や断熱工事まで幅広くご対応。デザイン性と価格のバランスを取り、可能な限りお客様のご要望を叶えつつ、適正価格でプランを提案します。
会社概要
■会社名
株式会社sumarch
コーポレートサイト:https://sumarch.co.jp/
■代表者
代表取締役 鳥居 儀彰
■ブランド名
リノベーションスタジオKULABO
KULABO HP:https://kulabo.co.jp/
■所在地
本社 〒450-6419 愛知県名古屋市中村区名駅三丁目28番12号 大名古屋ビルヂング19F
TEL:052-526-1395 FAX:052-526-1396
店舗
中村スタジオ/千種スタジオ/昭和スタジオ/緑スタジオ/一宮スタジオ/春日井スタジオ/岡崎スタジオ/長久手スタジオ/豊田スタジオ/恵比寿スタジオ
■設立
2009年11月
■事業内容
不動産再生事業(リフォーム・リノベーション)
■従業員数
250名(2025年4月時点)
ーーーーーーーーーーーーーーーーーーーーーーーーーーーー
■一般の方からのお問合せ先
リノベーションスタジオお客様総合窓口
0120-85-7755
10:00~18:00 年中無休(年末年始除く)
すべての画像
