木の温もりを感じる開放的なリビングと過ごすトレーラーハウス「MIGRA」が登場
YADOKARI株式会社(以下YADOKARI)は、木質感と開放的なリビングの中で上質な時間を過ごすためのトレーラーハウス「MIGRA」シリーズの販売を2024年9月27日(金)より開始致します。

「MIGRA」は、シンプルでミニマルな暮らしを愛する方々に向けてデザインされた、YADOKARI初の木造トレーラーハウスシリーズです。自然の風合いを生かした温かみのある木材と、広々としたリビングスペースが融合し、小さな家でも心地よく開放感を感じられることが特徴です。内部の設計は、限られた空間を最大限に活用することで、生活の中心であるリビングやダイニングの広がりを演出。家族や友人と共に食事やリラックスの時間を楽しむための、機能的かつ美しい居住空間を提供します。
■ MIGRAの4つの特徴
1. 木質感のある内外装
MIGRAは、YADOKARIの手がける初の木造モデルとなります。内外装共に自然の中に馴染む木の雰囲気をお楽しみいただけます。外壁は色の変更も可能です。

2. 効率的な空間演出
水回りの上にロフトを配置することで室内空間を効率的に使用することができます。
リビングエリアの天井高は約3mあり、タイニーハウスでありながら空間の広がりを感じていただけます。


キッチン、トイレ、ユニットシャワー、洗面台がコンパクト且つ実用的に配置されており、複数人でも快適にご使用いただけます。

3. 風景を切り取る大きな窓
リビングエリアには大きなFIX窓が2つ、換気のできる引き違い窓が1つついており、外の景色を切り取り、繋がりを感じていただけます。

4. 寒冷地に対応したモデルも同時発売
標準モデルに加え、甲信越や東北地方など、冬季に積雪が見込まれるエリアにも対応可能な「寒冷地モデル」も同時発売いたします。寒冷地モデルは、断熱性能を強化し、積雪や厳しい気候条件にも対応した仕様となっています。これにより、四季を通じて快適に過ごせる環境が整えられており、雪深い地域でも安心して設置いただけます。
特に北海道や豪雪地帯などの極端な気候条件を考慮した設置をご検討の方には、個別にご相談を受け付けております。お客様の住環境やニーズに合わせたカスタマイズ提案も可能です。

◼️ 発売モデル
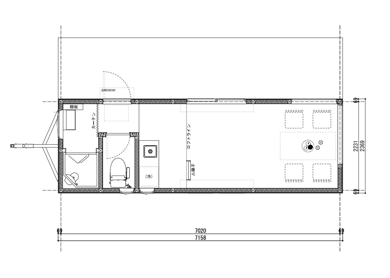
標準モデル

標準モデル平面図・立面図




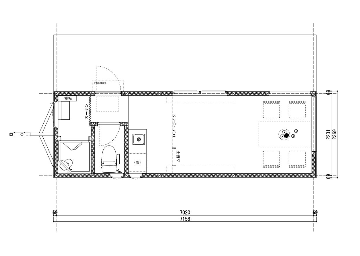
寒冷地モデル



寒冷地モデル平面図・立面図




◼️販売価格
標準モデル本体価格:¥7,500,000~(税別)
寒冷地モデル本体価格:¥7,980,000~(税別)
※別途工事費用についてはご相談ください
■MIGRA専用ページはこちら
https://yadokari.net/orchestra/migra/
◼️MIGRA見学会のご案内
日本最大級のトレーラーハウス展示イベントにて、MIGRAを展示致します。
イベント名:東京トレーラーハウスショー2024
開催日時:2024年10月16日(水)・17日(木)・18日(金) 10:00~17:00
会場:東京ビッグサイト 南4ホール 〒135-0063 東京都江東区有明3-11-1
参加費:無料
参加方法:当日営業と詳しい話をされたい方は、URLより事前予約をお願いいたします。
事前予約URL:https://peatix.com/sales/event/4126212/tickets
◼️YADOKARIのトレーラーハウスは全て車検取得・更新可能!
YADOKARIのトレーラーハウスは、シャーシだけではなく上物も含めた一体型車検、シャーシだけの車検のどちらも取得が可能で設置後の車検更新も可能なナンバープレート付きのトレーラーハウスです。
近年のトレーラーハウスへの注目の高まりと、事業への活用が急増する中で行政・自治体から、車両であることの証明となる車検取得を求められたり、設置後に行政指導が行われるケースも増加傾向にあります。YADOKARIでは、法令に適合したトレーラーハウスを提供し、設置後の移設や中古販売のマーケット構築、新しい発想・素材などを活用した持続可能なものづくりを通して社会課題の解決を目指します。
■ 商品に関するお問い合わせはこちら
https://info.yadokari.net/form/tinyhouse
■ 販売代理店・協力パートナー募集中
YADOKARIではトレーラーハウスの販売にご協力をして頂くパートナー様を募集しております。カスタムモデルを制作したい、複数台購入したいといったご要望も承ります。ご興味のある方は問い合わせフォームからお問合せください。
YADOKARI メッセージ
YADOKARIは、2011年3月11日に起きた東日本大震災をきっかけに、暮らしを根本から問い直す活動を始めました。この活動において、「お金・場所・時間に縛られない自由な生き方の実現」をテーマに、ミニマリズムや多拠点居住、シェアリング、そしてコミュニティや人との繋がりを重視した新しいライフスタイルを提案し、その思想や価値観の象徴として「タイニーハウス」の普及に力を注いできました。特に移動式トレーラーハウスの製造・販売・プロデュースを通じて、さまざまな社会課題の解決に取り組んでいます。
会社紹介
事業性・社会性・哲学性を共存させ、ビジョン「世界を変える、暮らしを創る」の実現を目指す「YADOKARI」。可動産・トレーラーハウスの企画・販売・製造・リユースマッチングや可動産を活用した事業企画・プロデュース、メディアPR・ブランドサポートを通じて、遊休地活用、地方創生、災害支援、コミュニティ形成などの社会課題解決に取り組む。
また、トレーラーハウスを活用したビレッジの企画・運営、暮らしを啓くコミュニティメディア「YADOKARI.net」の運営、トレーラーハウスの販売・リセールプラットフォーム「TINY HOUSE ORCHESTRA」の運営も行う。著書に『ニッポンの新しい小屋暮らし』(光文社)、『アイム・ミニマリスト』(三栄書房)、『未来住まい方会議』(三輪舎)、『月極本』などがあり、これらは日本のみならず、中国や韓国などアジア圏でも多数出版されている。
会社名:YADOKARI株式会社
代表者:代表取締役 上杉勢太・さわだいっせい
設立日:2013年11月1日
所在地:神奈川県横浜市保土ヶ谷区星川1-1-1 星天qlay
事業内容:可動産プラットフォーム事業
・可動産の企画・販売・製造・リユース
・可動産を中心とした地方創生・関係人口創出・コミュニティ形成
・メディアPR・ブランドサポート
会社サイト:https://yadokari.company/
ウェブメディア:https://yadokari.net/
公式 Instagram:https://www.instagram.com/yadokari_mobi/
公式 Facebook : https://www.facebook.com/yadokari.mobi/
このプレスリリースには、メディア関係者向けの情報があります
メディアユーザー登録を行うと、企業担当者の連絡先や、イベント・記者会見の情報など様々な特記情報を閲覧できます。※内容はプレスリリースにより異なります。
すべての画像
