YADOKARI、2030年「可動産で世界を移動する暮らし」の実現に向けて設置場所やインフラに縛られないオフグリッドトレーラーハウスプロジェクト始動
災害時にも給電可能な住まいを。MIGRA太陽光パネル搭載モデル新登場
YADOKARI株式会社(神奈川県横浜市、代表取締役 上杉勢太・さわだいっせい、 以下YADOKARI)は、オフグリッドシステムを搭載したトレーラーハウスの開発と宿泊施設「YADOKARI VILLAGE」の拠点数拡大を目指します。その第一弾として株式会社モノクローム(神奈川県横須賀市、代表取締役CEO 梅田優祐)と太陽光パネルが一体型になった屋根材「Roof–1」を搭載したYADOKARIのトレーラーハウス「MIGRA」の新モデルを2025年1月17日(金)より販売開始致します。

1|背景
お金・場所・時間に縛られないライフスタイルの実現に向けて設立当初から活動を続けてきたYADOKARIは2024年12月にトレーラーハウスを活用した暮らしの拠点「YADOKARI VILLAGE 北軽井沢」のオープンを皮切りにYADOKARI VILLAGEの拠点数拡大を計画しています。
その中で、立地条件(崖条例や市街化調整区域等)やコストの問題で建築やインフラ整備を断念せざるを得ない魅力的な遊休地が全国に数多く眠っている事実から、設置場所やインフラに縛られないオフグリッドトレーラーハウス開発を目指します。
また、YADOKARI VILLAGEの拠点数拡大を通じて、災害時には被災者へ迅速に住まい提供を行う手段としてのトレーラーハウス導入を全国の企業・自治体と連携しBCP構築の拡大支援を行ってまいります。

2| 太陽光発電の概要
太陽光発電システムによる1日あたりの発電量は天候・日照時間により変動はありますが約7kWh(春〜夏)/4kWh(秋〜冬)、蓄電池を併用することで1〜2日分の電力を賄う事ができ、消費した電力は太陽光により自然と供給されます。電力が不足した場合は通常電力から供給を行い、夜間や停電時にも運用は可能です。

3| 屋根一体型太陽光パネル「Roof–1」
Roof–1は金属屋根に特殊加工した太陽光セルを組み込むことで、普通の屋根にしか見えないデザインを実現した屋根一体型太陽光パネルです。一般的な住居用太陽光パネルの屋根・架台・太陽光パネルの設置に比べ、屋根だけの設置となるため1回の施工で完了します。また、重量や高さに制限があるトレーラーハウスには通常の太陽光パネルよりも軽量で厚みが少ないRoof–1を採用することで天井高の確保や、重量のある設備機器などが設置可能になるという大きなメリットがあります。Roof–1は耐候性の高いフッ素塗膜に守られているため、25年間メンテナンス不要(*1)。10年~15年ごとの太陽光の脱着と再塗装が必要な一般的な屋根に架台式太陽光パネルを設置した場合と比べて、トータルコストを抑えることができます。太陽光モジュールは25年間無償出力保証(*2)、さらに金属屋根は25年間無償保証(*3)です。
詳細はホームページ(https://www.monochrome.so/roof)をご覧ください。
*1:金属屋根部分にフッ素塗膜を使用
*2:公証最大出力が保証出力に対して基準値未満(1年後 97%、10年後 90%、25年後 80%)の場合に保証します。
*3:20年間の塗膜保証および25年間の穴あき保証。

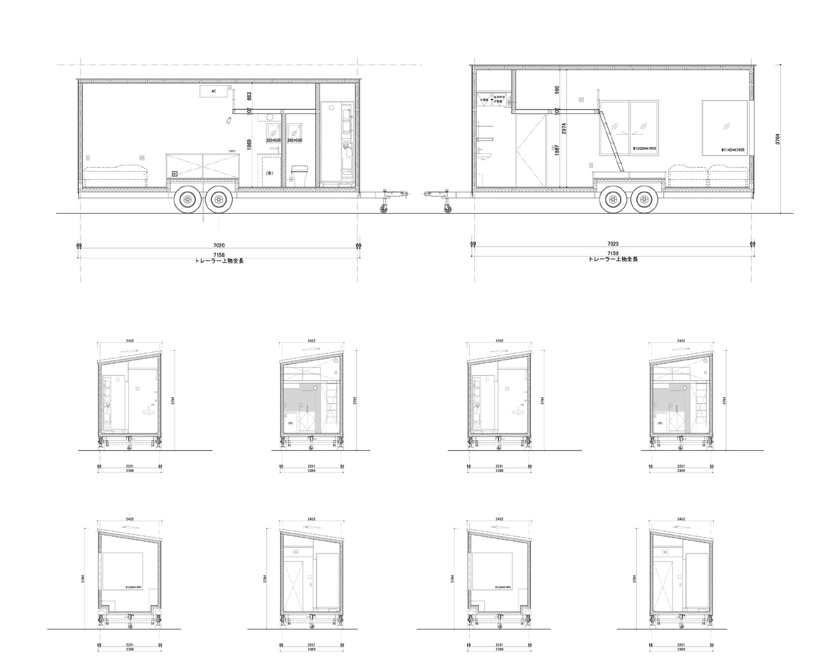
4| 木造トレーラーハウスMIGRA
「MIGRA」は、シンプルでミニマルな暮らしを愛する方々に向けてデザインされた、YADOKARI初の木造トレーラーハウスシリーズです。自然の風合いを生かした温かみのある木材と、広々としたリビングスペースが融合し、小さな家でも心地よく開放感を感じられることが特徴です。内部の設計は、限られた空間を最大限に活用することで、生活の中心であるリビングやダイニングの広がりを演出。家族や友人と共に食事やリラックスの時間を楽しむための、機能的かつ美しい居住空間を提供します。

MIGRA 太陽光パネル搭載モデル 平面図・立面図




◼️販売価格
本体価格:¥13,000,000~(税別)
※別途工事費用についてはご相談ください
◼️MIGRA専用ページはこちら
https://yadokari.net/orchestra/migra/
◼️MIGRA 太陽光パネル搭載モデルのご案内
2025年1月29日(水)から31日(金)まで開催される日本最大級の防災イベント【防災産業展 2025】にタイニーハウスを通じて新しいライフスタイルを提案するYADOKARIのトレーラーハウスが初登場◎
今回は【災害時に活用可能なトレーラーハウス】を展示いたします!
【開催日時】2025年1月29日(水)10:00 ~ 2025年1月31日(金)17:00
【会場】東京ビッグサイト 南2ホール
【公式HP】防災産業展2025
【参加費】無料
【参加方法】当日営業と詳しい話をされたい方は、URLより事前予約をお願いいたします。
【事前予約URL】https://bousai2025.peatix.com/
◼️YADOKARIのトレーラーハウスは全て車検取得・更新可能!
YADOKARIのトレーラーハウスは、シャーシだけではなく上物も含めた一体型車検、シャーシだけの車検のどちらも取得が可能で設置後の車検更新も可能なナンバープレート付きのトレーラーハウスです。近年のトレーラーハウスへの注目の高まりと、事業への活用が急増する中で行政・自治体から、車両であることの証明となる車検取得を求めらるなど、設置後に行政指導が行われるケースも増加傾向にあります。YADOKARIでは、法令に適合したトレーラーハウスを提供し、設置後の移設や中古販売のマーケット構築、新しい発想・素材などを活用した持続可能なものづくりを通して社会課題の解決を目指します。
◼️ 商品に関するお問い合わせはこちら
https://info.yadokari.net/form/tinyhouse
YADOKARI メッセージ
YADOKARIは、2011年3月11日に起きた東日本大震災をきっかけに、暮らしを根本から問い直す活動を始めました。この活動において、「お金・場所・時間に縛られない自由な生き方の実現」をテーマに、ミニマリズムや多拠点居住、シェアリング、そしてコミュニティや人との繋がりを重視した新しいライフスタイルを提案し、その思想や価値観の象徴として「タイニーハウス」の普及に力を注いできました。特に移動式トレーラーハウスの製造・販売・プロデュースを通じて、さまざまな社会課題の解決に取り組んでいます。
会社紹介
事業性・社会性・哲学性を共存させ、ビジョン「世界を変える、暮らしを創る」の実現を目指す「YADOKARI」。可動産・トレーラーハウスの企画・販売・製造・リユースマッチングや可動産を活用した事業企画・プロデュース、メディアPR・ブランドサポートを通じて、遊休地活用、地方創生、災害支援、コミュニティ形成などの社会課題解決に取り組む。
また、トレーラーハウスを活用したビレッジの企画・運営、暮らしを啓くコミュニティメディア「YADOKARI.net」の運営、トレーラーハウスの販売・リセールプラットフォーム「TINY HOUSE ORCHESTRA」の運営も行う。著書に『ニッポンの新しい小屋暮らし』(光文社)、『アイム・ミニマリスト』(三栄書房)、『未来住まい方会議』(三輪舎)、『月極本』などがあり、これらは日本のみならず、中国や韓国などアジア圏でも多数出版されている。
会社名:YADOKARI株式会社
代表者:代表取締役 上杉勢太・さわだいっせい
設立日:2013年11月1日
所在地:神奈川県横浜市保土ヶ谷区星川1-1-1 星天qlay
事業内容:
・可動産エリアイノベーション事業
・可動産の企画・販売・製造・リユース
・可動産のフィールド開発プロデュース・オペレーション
会社サイト:https://yadokari.company/
ウェブメディア:https://yadokari.net/
公式 Instagram:https://www.instagram.com/yadokari_mobi/
公式 Facebook : https://www.facebook.com/yadokari.mobi/
▼本件に関するお問い合わせ・取材依頼
取材依頼 YADOKARI株式会社 広報宛 メールアドレス:pr@yadokari.net
このプレスリリースには、メディア関係者向けの情報があります
メディアユーザー登録を行うと、企業担当者の連絡先や、イベント・記者会見の情報など様々な特記情報を閲覧できます。※内容はプレスリリースにより異なります。
すべての画像
