トンネル点検作業の効率化を追求した高所作業車 「トンネル点検プラットフォーム」レンタル開始
総合建設機械レンタルの株式会社アクティオ(本社:東京都中央区日本橋、代表取締役社長兼COO:小沼直人、以下アクティオ)は、トンネル内の点検作業に特化した高所作業車「トンネル点検プラットフォーム」のレンタルを2023年11月1日(水)から開始いたします。
なお、本商品は一般社団法人 日本建設機械施工協会 施工技術総合研究所(静岡県富士市、所長:真下英人)とグループ会社の岐阜工業株式会社(本社:岐阜県瑞穂市、代表取締役:宗像国義)が共同で開発しました。
なお、本商品は一般社団法人 日本建設機械施工協会 施工技術総合研究所(静岡県富士市、所長:真下英人)とグループ会社の岐阜工業株式会社(本社:岐阜県瑞穂市、代表取締役:宗像国義)が共同で開発しました。

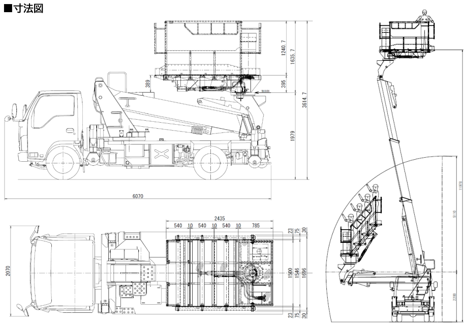
今回の「トンネル点検プラットフォーム」は、トンネル点検作業の効率化と作業員の作業負担軽減を目的に開発された高所作業車です。最大の特徴は、プラットフォームの作業台をトンネルのアーチに沿うよう階段状に変形する仕様にしたことで、点検の際に一度に広範囲の点検作業を行うことを可能にしました。
大型の作業台は作業床全長2,435mm、全幅1,500mm、全高1,240.7mm、傾斜角度は0度~50度まで可動し、最大積載荷重500kgのため、作業員複数名が同時に作業することができます。
アウトリガはローラージャッキ※を採用することで、作業姿勢のまま移動することができるため大幅な作業の削減が見込まれます。
※ローラージャッキ:トンネル内での作業等、長く続く現場での移動の際に、ブーム・ジャッキを格納する必要がないため、通常ジャッキ装備のタイプよりも効率的に作業を行える
アクティオは今後も「レンサルティング」のノウハウを活かし、生産性を向上させる製品やサービスを提供していきます。
■「トンネル点検プラットフォーム」特長
・階段状に変形し一度に広範囲の作業が可能
・最大積載荷重500kg。作業員複数名が同時に作業可能
・ローラージャッキ仕様のため作業姿勢のままで移動することが可能



■本商品に関するお問い合わせ先
株式会社アクティオ 産業機械事業部 ハイウェイメンテナンス部
TEL:03-6712‐3056
このプレスリリースには、メディア関係者向けの情報があります
メディアユーザーログイン既に登録済みの方はこちら
メディアユーザー登録を行うと、企業担当者の連絡先や、イベント・記者会見の情報など様々な特記情報を閲覧できます。※内容はプレスリリースにより異なります。
すべての画像
- 種類
- 商品サービス
- ダウンロード
