「FAVO#育てやすい。暮らしやすい。」、「新・家づくり発想 Lodina(ロディナ)」、「除菌機能付き全館ダクトレス空調システム」の3作品で受賞
第17回キッズデザイン賞
アイフルホーム FAVO#育てやすい。暮らしやすい。
アイフルホーム 新・家づくり発想Lodina
除菌機能付き 全館ダクトレス空調システム
■受賞した3作品
・子どもたちを産み育てやすいデザイン部門
アイフルホーム:「FAVO#育てやすい。暮らしやすい。」
アイフルホーム:「新・家づくり発想 Lodina(ロディナ)」
・ 子どもたちの安全・安心に貢献するデザイン部門
除菌機能付き全館ダクトレス空調システム
当社では今回の受賞を通じて、より一層「キッズデザイン」の認知拡大を目指すとともに、子どもの安全・安心を考え、環境に配慮した商品・サービスの開発を進めていきます。
■キッズデザイン賞

キッズデザイン賞は、多様なステークホルダーとともに子どもの未来が持続的で明るいものであるように、「子どもたちが安全に、そして安心して暮らす」「子どもたちが感性や創造性豊かに育つ」「子どもを産み育てやすい社会をつくる」という目的を満たす、製品・サービス・空間・活動・研究の中から、子どもや子育てに関わる社会課題解決に取り組む優れた作品を顕彰するものです。
【受賞した3作品の紹介】
●「FAVO#育てやすい。暮らしやすい。」の概要
「FAVO#育てやすい。暮らしやすい。」は、共働き世帯が増加傾向にある時代の変化に対応した、共働き子育て家族の暮らしを応援する住まいです。幼い子どもを育てながら働く一般女性を対象に組織化した「ママアンバサダー」の家事や育児の悩みや意見をもとに様々な工夫を取り入れて、育てやすく暮らしやすい住まいを目指しました。
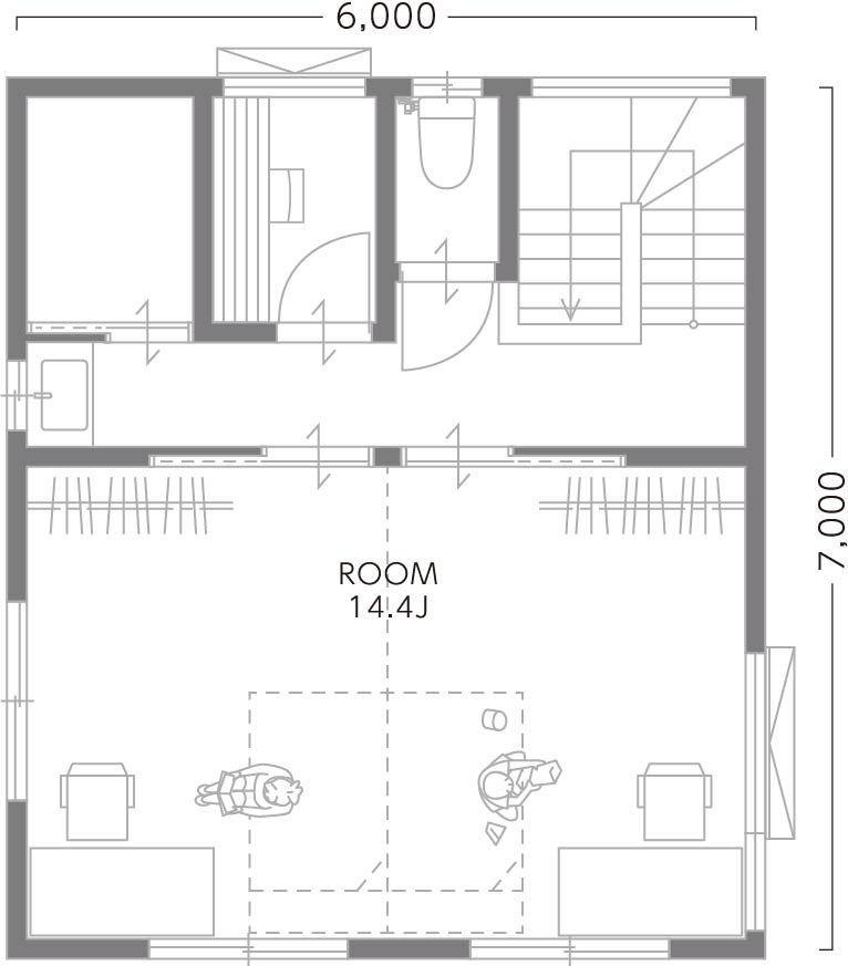
◆共働きママの意見を参考にした、育てやすく暮らしやすい間取りのポイント
①主寝室や水廻りを1階に集約したことにより、子どもが小さいときは「1階のみで生活が完結できる間取り」
②子どもたちが走り回ることができる「区切りのないワンフロア」
③「着替える→荷物をとる→家を出る」の動線がスムーズにできる「おでかけスムーズ動線」
④使用済みのオムツを外のゴミ置き場に置くことができる「オムツ替え動線」
⑤子どものおもちゃが片付けやすい「TV裏収納」
⑥1階の中心に子どもの着替えや道具が置ける「コックピット収納」
「FAVO#育てやすい。暮らしやすい。」の間取り
「FAVO#育てやすい。暮らしやすい。」の間取り
◆ママアンバサダーが共感した間取りのポイント TOP3
1位:寝室含め「1階だけで生活が完結できる間取り」
2位:子どものおもちゃを片付けやすくする「TV裏収納」
3位:お出かけがスムーズにできる「おでかけスムーズ動線」
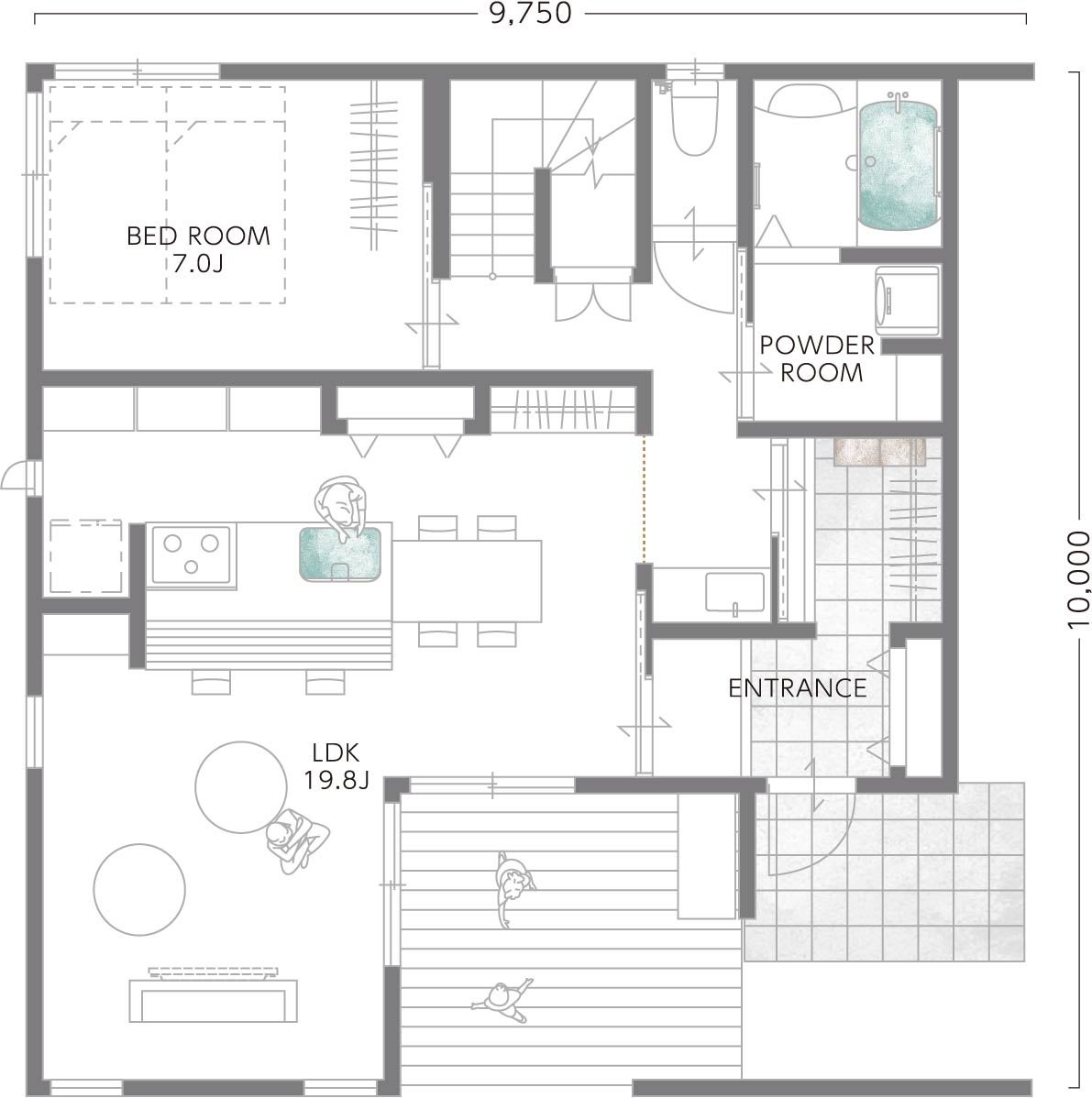
●「新・家づくり発想 Lodina(ロディナ)」の概要
新築住宅における無駄を省いて合理化を追求し、プランや仕様だけでなく、優れたタイムパフォーマンスとコストパフォーマンスを実現した、新しいカタチの「定額制セミオーダー住宅」です。
「新・家づくり発想Lodina」の平屋外観
◆共働き子育て世帯に調査した子育てしやすいプラン
・キッチンにいてもリビングにいる子どもを見守れる「見守りキッチン」
・子どもと同じ目線で遊んだり、スキンシップがとれる「床座リビング」
・子どもの成長に合わせて部屋の大きさを変更できる「子ども部屋」
◆定額制の仕組みを取り入れた、高いコストパフォーマンス
同じ坪数であれば間取りを変更しても価格は同じという「定額制」の仕組みを取り入れたことにより、当社の自由設計商品と比較して、同じ坪数で約40万円のコストダウンを実現しました。また、太陽光発電や高い断熱性により光熱費削減も叶います。
◆セミオーダー住宅による、高いタイムパフォーマンス
セミオーダー住宅の仕組みにより、決まった坪数、外観、設備、断熱仕様を選ぶだけなので、少ない打ち合わせで効率よく理想の住まいが実現できます。当社の自由設計の場合と比較しておよそ半分の期間での家づくりが可能です。
「新・家づくり発想Lodina」サイトURL:https://www.eyefulhome.jp/concept/lodina/
●「除菌機能付き全館ダクトレス空調システム」の概要
住宅の空気環境に着目し、換気・除菌・脱臭機能を強化した全館ダクトレス空調システムです。空気循環経路内に特許技術 光触媒担持チタンメッシュを採用した空気清浄装置を設置しています。ウイルス等による感染症リスクや臭いによるストレスを軽減し、住まう人の健康に寄与します。
◆製品特長
・階間空間を暖冷房するので、天井や床面からの輻射熱により、均一な室温になります。
・各部屋への送風がダクトレスなので、工事を簡素化でき、メンテナンスの手間が少なくすみます。
・各部屋のファンの風量を調整することで、 各部屋で温度調整が可能です。
・空気循環経路内に光触媒の空気清浄装置を設置しているので、家中がキレイな空気になります。
◆実物大実験(モデルハウス)による換気・除菌・脱臭性能の実証
・換気性能
ドライアイスを用いて室内にCO2を発生させ、30分・60分後のCO2濃度を濃度センサーにて測定した結果、60分でCO2濃度は正常値以下となりしっかりとした換気性能を確認できました。
換気性能の試験結果
・空間除菌性能
密閉したダイニング空間に乳酸菌を噴霧し、空気清浄装置を起動し、数十分間隔で内部空気をサンプリングした結果、装置起動後60分ですべての菌が死滅していることから、高い除菌効果があることが実証されました。
空間除菌性能の試験結果
・脱臭性能
室内にアンモニアを噴霧し、空気清浄装置を起動し、数十分間隔で内部空気をサンプリングした結果、装置起動後60分でにおわないレベルまで臭気が減衰していることから、脱臭効果があることが実証されました。
脱臭性能の試験結果
◆当社概要
会社名 株式会社LIXIL住宅研究所
代表者 代表取締役社長 加嶋 伸彦
本社所在地 〒141-0033 東京都品川区西品川1-1₋1 大崎ガーデンタワー
URL 【株式会社LIXIL住宅研究所】 https://www.lixil-jk.co.jp/
【アイフルホーム】 https://www.eyefulhome.jp/
◆LIXIL住宅研究所 概要
住宅及びビル建材・設備機器の製造販売・住宅フランチャイズチェーンの運営など、総合的な住生活関連事業を展開するLIXILの一員です。住宅フランチャイズチェーン事業の運営を担う企業として、アイフルホーム、フィアスホーム、GLホームの3ブランドを展開し、国内最大級の住宅フランチャイズチェーン事業を展開しています。
◆アイフルホーム 概要
1984年の創業以来、「より良い家を、より多くの人に、より合理的に提供する」との使命を掲げ、お客様の「良い家に住みたい」というご要望にお応えするため、だれもが安心して家を手に入れられる住宅のフランチャイズチェーンシステムを開発・導入したパイオニアです。高いコストパフォーマンスと統一品質の実現により、適正価格で高品質な住まいを提供し続け、これまでに17万棟を超える住まいを提供してきました。近年では、”共働き・子育て家族にやさしい家づくり”で、家族みんなの生活が豊かになるように取り組んでいます。
このプレスリリースには、メディア関係者向けの情報があります
メディアユーザー登録を行うと、企業担当者の連絡先や、イベント・記者会見の情報など様々な特記情報を閲覧できます。※内容はプレスリリースにより異なります。
すべての画像
